收藏本站
客户端
扫码下载客户端
官方微信
打开微信扫一扫
登录
|
注册
|
标题
标题
用户
全站首页
|
论坛导航
|
网络问政
|
招聘求职
|
买房租房
|
装修频道
|
生活服务
|
教育
|
相亲
|
亲子
|
美食
|
婚嫁
|
手机客户端
家有学子
|
母婴乐园
快捷导航
精彩推荐:
MY0511客户端下载
中信银行镇江分行
公益体彩 乐善人生
鹏龙鸿蒙
天然石材·人造石
»
梦溪论坛
»
家庭装修
» 毕业完工照出炉——美的城·第一个自己的小屋
家庭装修
>
[装修日记]
毕业完工照出炉——美的城·第一个自己的小屋
查看: 58866 回复: 189
快速回复
返回家庭装修
190
1/4
1
2
3
4
>
[装修日记]
毕业完工照出炉——美的城·第一个自己的小屋
查看: 58866 回复: 189
上一主题
|
下一主题
我是一只小鱼
来自 江苏省
精华 0
注册 2018-7-19
毕业完工照出炉——美的城·第一个自己的小屋
毕业照终于来啦~~
照片在文末
——————————————————————————————————
16年6月左右和当时还是男盆友的老公寻思着要买一套属于我们的房子~这是前提~因为本来爸妈就住在三茅宫。那天回家跟老爸话家常说到准备买个房子,老爸站在阳台上,手一指就说“买美的城吧!”
[
本帖最后由 我是一只小鱼 于 2019-5-31 09:22 编辑
]
已有 双羽木门专卖, 老友记装饰客服, 森香木门楼梯, 法诗雅移门
4
人打赏
2018-8-3 11:55
1楼
0511家装频道:本地家居服务平台,数万业主共同选择
只看该作者
分享本楼
郭沛德
来自 安徽省
精华 0
注册 2018-6-3
你爸这是指点江山呢
---发自OPPO R9---
2018-8-3 11:59
2楼
买房、卖房、租房上镇江房产网!
只看该作者
分享本楼
镇江大津硅藻泥
来自 0
精华
4
注册 2011-12-13
行业 基础设施
QUOTE:
原帖由
郭沛德
于 18-8-3 11:59 发表
你爸这是指点江山呢
2018-8-3 12:09
3楼
0511家装频道:本地家居服务平台,数万业主共同选择
只看该作者
分享本楼
赫章
来自 江苏省
精华 0
注册 2017-9-8
假不?
---发自梦溪论坛手机客户端---
2018-8-3 12:14
4楼
找工作,就上MY0511!
只看该作者
分享本楼
夜色的温柔
来自 江苏省
精华 0
注册 2011-1-16
行业 其它
假
---发自梦溪论坛手机客户端---
2018-8-3 12:24
5楼
MY0511相亲,一分钟注册,享一辈子幸福!
只看该作者
分享本楼
我是一只小鱼
来自 江苏省
精华 0
注册 2018-7-19
于是,我们就这样成为了美的城二期第一批购买的人之一~
两年后,也就是今年的6月30日,拿到了我们的小屋~着手开始了装修历程~
话说……我们之前是对装修一窍不通的,完全是从0开始的装修心路历程,记录下来,未来哪天要回来看看这个帖子,没准还觉得挺好玩的
2018-8-3 13:10
6楼
0511家装频道:本地家居服务平台,数万业主共同选择
只看该作者
分享本楼
我是一只小鱼
来自 江苏省
精华 0
注册 2018-7-19
当时不可能因为老爸一指,就决定买美的城了,他老人家也推荐过其他的房子。。我们一直在南京工作,自然南京的房子买不起,两个人也是商量了很久决定回镇江买的。。
只是觉得当时的情景还历历在目,有点喜感,才写出来,楼主绝对真实心理感触,绝不造假
我们花了一个多月左右的闲余时间看了周边其他的楼盘,最终选择了美的城,是因为有朋友在一期住过,当时美的城价格也没那么贵,才买下的。。
个中缘由因为是装修笔记,自然没有细数。。
2018-8-3 13:17
7楼
[联宇电脑] 电脑组装\维修\升级\企业单位电脑维护!
只看该作者
分享本楼
我是一只小鱼
来自 江苏省
精华 0
注册 2018-7-19
拿房当天人很多,拿房的业主、美的本身的服务人员、各大装饰公司的地推人员…事后一直觉得应该7.1或者改天再过来领钥匙。。从9点不到排队办各种手续,一直到下午两点才结束。。。
不过当时就只是想着能多块拿到钥匙,就多块最好。。
还有一点,提示大家:如果想早点开始装修,拿房前就可以多多物色装修公司,稍微了解下各家的特色更好。。
我们虽说一直想要拿到房就尽早装修,却一直都没考虑找装修公司,直到拿到房子了,才真正去了解。。又是在南京工作,后来7月基本一整个月都在研究这个事,花费了很多精力。。
2018-8-3 13:26
8楼
找工作,就上MY0511!
只看该作者
分享本楼
我是一只小鱼
来自 江苏省
精华 0
注册 2018-7-19
之前说了对装修不懂,所以现场的每一家做活动的,我们都在6.30-7.1这两天看了一圈,每一家都进去问过情况。(因为每一家都看了这个行为,还让个别装修公司的销售给我们贴了“广撒网”的标签。。这里不赘述)
因为个人性格也不是太会拒绝,所以跟先生两个人只要当时觉得态度还不错的装饰公司都加了微信。。。这算是第一次筛选吧,不太专业或者态度不好的公司的微信都没有加,觉得不错的也额外在手机便利贴记录了一下~
直到回南京了,才真正开始进行研究对比。。(我工作不算忙,所以基本上挑选装饰公司以及和他们沟通的事情都是我在做。。哈哈,看我周五还在发帖也就知道)
2018-8-3 13:40
9楼
[联宇电脑] 电脑组装\维修\升级\企业单位电脑维护!
只看该作者
分享本楼
DL设计
来自 江苏省
精华 0
注册 2016-11-18
行业 房产建筑
2018-8-3 14:04
10楼
0511家装频道:本地家居服务平台,数万业主共同选择
只看该作者
分享本楼
my0511小妖
版主
来自 江苏省
精华
9
注册 2005-10-29
楼主当时买房的时候还是挺合算的呢
2018-8-3 14:15
11楼
MY0511相亲,一分钟注册,享一辈子幸福!
只看该作者
分享本楼
布纸软装
来自 江苏省
精华 0
注册 2018-7-7
美的城蛮好的
---发自iPhone 7 Plus---
2018-8-3 14:30
12楼
[联宇电脑] 电脑组装\维修\升级\企业单位电脑维护!
只看该作者
分享本楼
莫干山衣柜
来自 江苏省
精华 0
注册 2012-8-13
行业 其它
美的城你买到的赚到了,房子不错
2018-8-3 14:33
13楼
MY0511相亲,一分钟注册,享一辈子幸福!
只看该作者
分享本楼
我是一只小鱼
来自 江苏省
精华 0
注册 2018-7-19
谢谢各位~后来确实是觉得买的是值的。。
网页上居然没找到怎么回复大家。。第一次在0511发帖,还没弄太明白
多说一句,当初注册0511,还是 因为想要好好研究筛选到最后剩下的几家装修公司孰优孰劣
之前都是看看帖子而已,异地手机号注册又不方便,一直没注册
2018-8-3 14:59
14楼
找工作,就上MY0511!
只看该作者
分享本楼
海文装饰客服
专版版主
来自 江苏省
精华
53
注册 2016-5-6
恭喜开贴
2018-8-3 15:12
15楼
找工作,就上MY0511!
只看该作者
分享本楼
我是一只小鱼
来自 江苏省
精华 0
注册 2018-7-19
7.2回到南京了,工作忙了两天左右,空闲下来的时候,自己又上知乎看别人家的装修,想着为何加的微信都没有动静。。就挨个自己联络了。。
(实际上,加我微信的没有很多,有三四家。。其他的都是加的先生的微信,后面让先生拉三个人的小群,把他那边的也可以建立联系)
我们7月的第一个周末因为工作原因,没有回镇江,跟每家都说明了我们的情况,希望能够先在微信建立前期比较良好的沟通。。把我们的需求阐述明白~对方可以出个简单的平面布置方案~
几家基本上分为三种情况:1、一直让我们去店里聊,微信不肯说太多的 ; 2、只要找他,对方回复态度各方面都挺好的,但说了各种需求后,就是不会进一步跟我们谈方案的; 3、表示理解,并能够把我们当作到门店的客户一样对待的。。(这个比较少,最后就剩了一家)
2018-8-3 15:30
16楼
找工作,就上MY0511!
只看该作者
分享本楼
我是一只小鱼
来自 江苏省
精华 0
注册 2018-7-19
因为身在南京,实在不方便去各家店面,如果前期不沟通筛选,光周末回去两天,一家家的跑,真就会成了“广撒网”,大海捞针了。。
或许很多装饰公司对于我们这种不上门,就想通过微信沟通方案的客户,并不是很在意,可能会觉得我们是在“骗方案”。。
但是我们真的是因为自身特殊原因,导致这种方式先去筛选一波现场加的~每一家我们留微信的公司,在初期的时候都是我们真实会考虑的选择
2018-8-3 15:35
17楼
买房、卖房、租房上镇江房产网!
只看该作者
分享本楼
我是一只小鱼
来自 江苏省
精华 0
注册 2018-7-19
其他渠道我们也有了解,一方面朋友亲戚装修的不错的推荐,有两家;
还有一个是我们上了土巴兔,请土巴兔推荐。(可惜土巴兔操作流程是,必须量房前两天才会提供推荐公司的联系方式。。也就是等我们快到回镇江之前两天才得到土巴兔这边的推荐。。)
当时跟两个筛选下来的公司聊的比较好了,方案基本确定了,就排除了土巴兔推荐的(But,土巴兔推荐的设计师加了微信,人真的很不错,即使后来没选咋,后面也有给我们一些材料的建议)
当然,我们最后选择的装饰公司,设计师人也是超好!!
2018-8-3 15:40
18楼
买房、卖房、租房上镇江房产网!
只看该作者
分享本楼
关亨木门
来自 江苏省
精华 0
注册 2010-5-8
行业 其它
恭喜楼主,朋友5-2906的,也在装修中
[
本帖最后由 关亨木门 于 18-8-3 16:32 编辑
]
2018-8-3 16:31
19楼
找工作,就上MY0511!
只看该作者
分享本楼
老友记装饰黄
来自 江苏省
精华 0
注册 2016-6-23
欢迎新同学
2018-8-3 17:07
20楼
0511家装频道:本地家居服务平台,数万业主共同选择
只看该作者
分享本楼
我是一只小鱼
来自 江苏省
精华 0
注册 2018-7-19
在后来回镇江的两个周末,我们去筛选后的三家公司,看了工地,工艺,以及跟设计师做了进一步的沟通,最后我们还是选择了在一开始就对我们态度认真并负责的设计师,进而在升级了辅材后,选择了他所在的金佰威装饰(之前也有些顾虑,在反复考虑和多次沟通后,还是选择了他家)楼主是个性情中人,但始终相信态度决定一切
---发自iPhone 8---
2018-8-3 17:58
21楼
买房、卖房、租房上镇江房产网!
只看该作者
分享本楼
我是一只小鱼
来自 江苏省
精华 0
注册 2018-7-19
不瞒大家,这个帖子是当初承诺金佰威写的,我想想记录这个也蛮好,一方面我们可以获得一部分活动减免;二方面,公开发表,对金佰威也有个监督作用(因为楼主绝对真实表达,毕竟费用确定了,接下来还是看质量);最后,记录下,也是个纪念
---发自iPhone 8---
2018-8-3 18:08
22楼
找工作,就上MY0511!
只看该作者
分享本楼
我是一只小鱼
来自 江苏省
精华 0
注册 2018-7-19
对啦,金佰威跟我们对接的设计师叫郭振,在这些家装饰公司中,他是唯一一个从前期仅仅微信接触,就耐心负责的对待我们的设计师。在我们回镇江前,就用将近一天的时间在微信跟我阐述方案,沟通调整方案。(从房屋结构讲到设计风格)后来见面后,不但在公司跟我们说了几个小时的方案,又冒着高温,花了整整一个下午开车接我们,带我们跑工地(我们两口子还没买车)
又再把我们送回家。很大程度上促成了我们最终的选择。因为相信这样的设计师,能从头至尾对我们的房子负责
---发自iPhone 8---
2018-8-3 18:32
23楼
找工作,就上MY0511!
只看该作者
分享本楼
我是一只小鱼
来自 江苏省
精华 0
注册 2018-7-19
发现自己写的太长了,还没进入正题~我们房子于7.28这天开工了,所以接下来开始忙碌的跑材料跑家具的日子~
后面又开始要多图预警了,正式进入装修环节。
现在在南京南站,又准备回镇江,开始新的一轮奔波的周末。
---发自iPhone 8---
2018-8-3 18:43
24楼
0511家装频道:本地家居服务平台,数万业主共同选择
只看该作者
分享本楼
依诺磁砖亿都店
来自 0
精华 0
注册 2018-6-5
恭喜开帖!
---发自vivo---
2018-8-3 20:56
25楼
买房、卖房、租房上镇江房产网!
只看该作者
分享本楼
卓高美缝天桥店
来自 江苏省
精华 0
注册 2018-4-19
装修愉快
2018-8-4 09:54
26楼
找工作,就上MY0511!
只看该作者
分享本楼
佳安舒适家
来自 江苏省
精华
55
注册 2017-2-10
恭喜楼主开工大吉~
2018-8-4 09:54
27楼
0511家装频道:本地家居服务平台,数万业主共同选择
只看该作者
分享本楼
21·设计范
来自 江苏省
精华 0
注册 2017-4-4
祝贺楼主
2018-8-4 10:01
28楼
MY0511相亲,一分钟注册,享一辈子幸福!
只看该作者
分享本楼
tot
来自 江苏省
精华 0
注册 2010-6-15
行业 房产建筑
真是赚到了
---发自iPhone 7---
2018-8-4 10:50
29楼
买房、卖房、租房上镇江房产网!
只看该作者
分享本楼
鸿鹄设计镇江站
专版版主
来自 江苏省
精华
222
注册 2016-11-15
行业 广告媒体
恭喜楼主
识别二维码查看完整实景图片
[
本帖最后由 鸿鹄设计镇江站 于 2018-9-7 16:23 编辑
]
2018-8-4 11:32
30楼
找工作,就上MY0511!
只看该作者
分享本楼
伊派爱马仕瓷砖
来自 江苏省
精华 0
注册 2014-10-9
行业 房产建筑
2018-8-4 11:59
31楼
买房、卖房、租房上镇江房产网!
只看该作者
分享本楼
未来舒适家
来自 江苏省
精华
114
注册 2017-6-19
行业 房产建筑
恭喜楼主开贴,装修是要辛苦一阵子了
2018-8-4 13:56
32楼
[联宇电脑] 电脑组装\维修\升级\企业单位电脑维护!
只看该作者
分享本楼
镇江京都榻榻米
来自 江苏省
精华 0
注册 2014-1-1
行业 房产建筑
邻居啊
2018-8-4 14:59
33楼
0511家装频道:本地家居服务平台,数万业主共同选择
只看该作者
分享本楼
爱斯特门窗公司
来自 江苏省
精华 0
注册 2018-4-7
祝开工大吉
2018-8-4 15:14
34楼
[联宇电脑] 电脑组装\维修\升级\企业单位电脑维护!
只看该作者
分享本楼
家装顾问沙
来自 江苏省
精华 0
注册 2017-3-12
恭喜楼主,其实装修不仅是锻炼自己,还有一点就是能免费减肥,因为实在是太辛苦啦!
---发自OPPO---
2018-8-4 23:37
35楼
买房、卖房、租房上镇江房产网!
只看该作者
分享本楼
我是一只小鱼
来自 0
精华 0
注册 2018-7-19
跑了一天,刚刚休息下来,看了一些其他人写的装修日记,借鉴了下格式,可以清楚的说明一些装修概况.
【小区名称】美的城二期
【楼层信息】1号楼04(西边户)
【建筑面积】105平(除去公摊面积)
【装修风格】北欧现代混搭
【装修形式】半包
【装修公司】金佰威装饰
【设 计 师】郭振
【开工日期】2018.07.28
【装修周期】预计3个月
---发自iPhone 8---
2018-8-5 00:36
36楼
[联宇电脑] 电脑组装\维修\升级\企业单位电脑维护!
只看该作者
分享本楼
我是一只小鱼
来自 0
精华 0
注册 2018-7-19
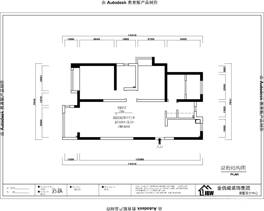
原始结构图如下
---发自iPhone 8---
2018-8-5 00:39
37楼
MY0511相亲,一分钟注册,享一辈子幸福!
只看该作者
分享本楼
我是一只小鱼
来自 0
精华 0
注册 2018-7-19
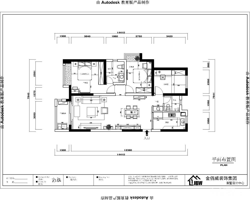
平面布置图
---发自iPhone 8---
2018-8-5 00:39
38楼
MY0511相亲,一分钟注册,享一辈子幸福!
只看该作者
分享本楼
我是一只小鱼
来自 0
精华 0
注册 2018-7-19
哈哈,偷了一张设计师的微信头像~(一看就是职业形象照,比较靠谱,所以自愿给他打个广告)
---发自iPhone 8---
2018-8-5 00:41
39楼
[联宇电脑] 电脑组装\维修\升级\企业单位电脑维护!
只看该作者
分享本楼
我是一只小鱼
来自 0
精华 0
注册 2018-7-19
7.28当天上午9:58正式开工了,从设计师朋友圈找到一个打码的合照
当天楼主小两口、楼主的爸妈(没错,这个爸就是当初“指点江山”的老爸)还有家里的表妹都到场啦!(毕竟第一套房子,激动嘛)
另外没打码的两位就是金佰威的设计师和我们屋子的项目经理了
---发自iPhone 8---
2018-8-5 00:46
40楼
[联宇电脑] 电脑组装\维修\升级\企业单位电脑维护!
只看该作者
分享本楼
我是一只小鱼
来自 0
精华 0
注册 2018-7-19
在开工鞭炮打响后,楼主和先生携手一起敲墙,开启了我们装修的正式篇章
当天,敲墙师傅入场,(赠送面积中间的一堵墙还有厨房门改移门所多出的一部分墙体需要敲)开始了前期的基建工作
---发自iPhone 8---
2018-8-5 00:51
41楼
买房、卖房、租房上镇江房产网!
只看该作者
分享本楼
我是一只小鱼
来自 0
精华 0
注册 2018-7-19
发几张敲墙结束的照片,楼主就先睡觉了,明天还要出去跑材料
---发自iPhone 8---
2018-8-5 00:53
42楼
0511家装频道:本地家居服务平台,数万业主共同选择
只看该作者
分享本楼
我是一只小鱼
来自 0
精华 0
注册 2018-7-19
也不知道现在还有没有人在看,哈哈,大家晚安啦
---发自iPhone 8---
2018-8-5 00:54
43楼
MY0511相亲,一分钟注册,享一辈子幸福!
只看该作者
分享本楼
我是一只小鱼
来自 江苏省
精华 0
注册 2018-7-19
兴致勃勃去阳台上拍了张照片…
当初老爸就是和我一起站在这儿,指的远方,蓝圈部分就是美的城了
---发自iPhone 8---
2018-8-5 08:49
44楼
[联宇电脑] 电脑组装\维修\升级\企业单位电脑维护!
只看该作者
分享本楼
宇祥装饰客服
来自 江苏省
精华
8
注册 2010-9-13
行业 房产建筑
恭喜楼主!开工大吉!
2018-8-5 09:15
45楼
0511家装频道:本地家居服务平台,数万业主共同选择
只看该作者
分享本楼
18362888595
来自 江苏省
精华 0
注册 2016-5-23
行业 其它
QUOTE:
原帖由
我是一只小鱼
于 2018-8-3 18:32 发表
对啦,金佰威跟我们对接的设计师叫郭振,在这些家装饰公司中,他是唯一一个从前期仅仅微信接触,就耐心负责的对待我们的设计师。在我们回镇江前,就用将近一天的时间在微信跟我阐述方案,沟通调整方案。(从房屋结 ...
应该的,再次感谢客户朋友的认可和信任
2018-8-5 11:52
46楼
MY0511相亲,一分钟注册,享一辈子幸福!
只看该作者
分享本楼
丁叮DJ
来自 0
精华 0
注册 2017-5-11
期待更新
---发自iPhone 6S Plus---
2018-8-5 11:56
47楼
买房、卖房、租房上镇江房产网!
只看该作者
分享本楼
18362888595
来自 江苏省
精华 0
注册 2016-5-23
行业 其它
和业主朋友沟通起来可谓是不谋而合,聊得很愉快,开工只是起点,服务才刚刚开始..........
2018-8-5 11:58
48楼
MY0511相亲,一分钟注册,享一辈子幸福!
只看该作者
分享本楼
18362888595
来自 江苏省
精华 0
注册 2016-5-23
行业 其它
QUOTE:
原帖由
我是一只小鱼
于 2018-8-5 00:46 发表
7.28当天上午9:58正式开工了,从设计师朋友圈找到一个打码的合照
当天楼主小两口、楼主的爸妈(没错,这个爸就是当初“指点江山”的老爸)还有家里的表妹都到场啦!(毕竟第一套房子,激动嘛)
...
开工大吉,开工大吉
2018-8-5 11:59
49楼
找工作,就上MY0511!
只看该作者
分享本楼
我是一只小鱼
来自 江苏省
精华 0
注册 2018-7-19
哈,楼上应该就是设计师郭振本人了
本周回来,一周的时间,敲墙结束,铲白灰结束,地固墙固结束。昨天周六早上8点,项目经理、设计师、水电师傅进场,跟我们一起确定水电查询开关定位。(这个时候,厨房橱柜我们已经找到了商家,出了厨房的水电图。所以,大家记住,要在水电进场前确定橱柜,还有家具的大概尺寸,心里要有个想法:床的尺寸,沙发的尺寸还有一些家具的尺寸确定下来,对插座开关的位置的精度有必要)
对了,开工当日,金佰威就拉了一个微信群,包括公司总负责人、监理、项目经理、设计师,和我们两口子。一般有什么事情和工作进度都会在群里沟通。
---发自iPhone 8---
2018-8-5 12:52
50楼
0511家装频道:本地家居服务平台,数万业主共同选择
只看该作者
分享本楼
返回家庭装修
190
1/4
1
2
3
4
>
快速回复主题
游客
您目前还是游客,请
登录
或
注册
您目前是游客,本帖已被系统设置了自动关闭,不可回复!
文明交流,理性发言
0/5000字
<
>
请在打开的新窗口中支付完成打赏
我已完成支付打赏
支付失败重新支付
其他金额
打赏金额:
元
确定
支付打赏
提 现
打赏人
打赏金额(元)
打赏时间
双羽木门专卖
1.00
2018-8-10 15:25
老友记装饰客服
1.00
2018-9-20 10:53
森香木门楼梯
1.00
2018-9-30 17:52
法诗雅移门
1.00
2018-12-3 16:07
Powered by
Discuz! X 2
0.097083 s
清除 Cookies
-
镇江网友之家
-
手机版
论坛导航
关闭
吃喝玩乐
饮食男女
镇江钓友之家
菜菜鸟户外
镇江单车俱乐部
镜头里的镇江
畅游天下
猫狗总动员
视觉Coffeeshop摄影部落
花鸟鱼虫
婚姻.亲子.家庭
家有学子
谈婚论嫁
女性天地
母婴乐园
婚姻生活
梦溪佳缘
装修
家庭装修
装修招标
镇江室内设计师交流
装修商家直通车
你好,镇江!
百姓话题
我要买房
0511爱心家园
市场监管•12315热线
分类信息
生活服务
闲置转让
镇江二手房/镇江租房
镇江招聘求职
教育培训
镇江二手车
商铺厂房写字楼租售
宠物市场
运动健身
卡券交易
电脑维修升级
杂货铺
其他分类信息区
兴趣爱好
HiFi音响江城沙龙
镇江市美术家协会
我爱模型
车友俱乐部
车迷之家
汽车驾培中心
运动俱乐部
镇江市冬泳、铁人三项协会
聚焦足球
镇江羽毛球
镇江乒乓球协会
镇江网球协会
镇江市自行车运动协会
热爱篮球
动力机车
合作栏目
维权热线
天翼时代
色觉影像摄影工作室
站务区
疑问与建议
网络问政
市政府工作部门
垂直管理部门
党群工作部门
其他重点单位
辖市(区)