收藏本站
客户端
扫码下载客户端
官方微信
打开微信扫一扫
登录
|
注册
|
标题
标题
用户
全站首页
|
论坛导航
|
网络问政
|
招聘求职
|
买房租房
|
装修频道
|
生活服务
|
教育
|
相亲
|
亲子
|
美食
|
婚嫁
|
手机客户端
家有学子
|
母婴乐园
快捷导航
精彩推荐:
MY0511客户端下载
中信银行镇江分行
公益体彩 乐善人生
鹏龙鸿蒙
天然石材·人造石
»
梦溪论坛
»
家庭装修
» 孟诚尚美苑--------北欧风格
家庭装修
>
[装修日记]
孟诚尚美苑--------北欧风格
查看: 8042 回复: 16
快速回复
返回家庭装修
[装修日记]
孟诚尚美苑--------北欧风格
查看: 8042 回复: 16
上一主题
|
下一主题
1大晨
来自 江苏省
精华 0
注册 2017-5-30
孟诚尚美苑--------北欧风格
【小区名称】: 孟诚尚美苑
【所在楼层】:8
【建筑面积】:75
【装修风格】:北欧
【包工方式】:半包
【设计公司】:恒久设计
【开工日期】:2018年8月
【装修预算】:35000
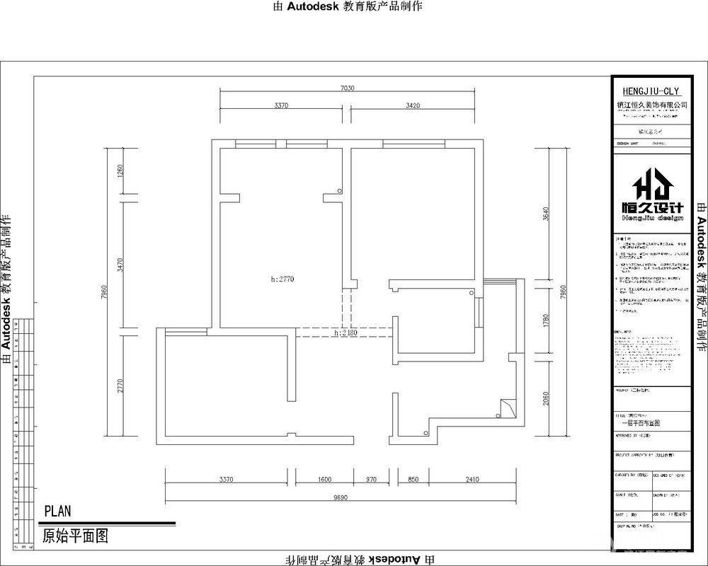
【户型展示】
:
原始结构图:
最终定的方案:
(因为厨房和卫生间小的原因,三个方案中纠结了好久才定下的方案。)
下面北欧风格效果图展示:
设计方面都完成啦
就等后期完成作啦
后期会持续更新情况哦~~
已有
0
人打赏
2018-8-23 15:56
1楼
MY0511相亲,一分钟注册,享一辈子幸福!
只看该作者
分享本楼
my0511小妖
版主
来自 江苏省
精华
9
注册 2005-10-29
半包预算3W5么。。
2018-8-23 15:58
2楼
买房、卖房、租房上镇江房产网!
只看该作者
分享本楼
红居装饰
专版版主
来自 江苏省
精华
421
注册 2016-10-30
行业 房产建筑
哈哈
QUOTE:
原帖由
my0511小妖
于 2018-8-23 15:58 发表
半包预算3W5么。。
全包还得了啊,恭喜楼主开工大吉
2018-8-23 16:02
3楼
[联宇电脑] 电脑组装\维修\升级\企业单位电脑维护!
只看该作者
分享本楼
霸王家的
来自 0
精华 0
注册 2017-2-6
3万5给装修公司的吧
。。。
---发自梦溪论坛手机客户端---
2018-8-23 16:19
4楼
[联宇电脑] 电脑组装\维修\升级\企业单位电脑维护!
只看该作者
分享本楼
1大晨
来自 江苏省
精华 0
注册 2017-5-30
QUOTE:
原帖由
my0511小妖
于 2018-8-23 15:58 发表
半包预算3W5么。。
是的
---发自梦溪论坛手机客户端---
2018-8-23 16:41
5楼
找工作,就上MY0511!
只看该作者
分享本楼
1大晨
来自 江苏省
精华 0
注册 2017-5-30
QUOTE:
原帖由
霸王家的
于 2018-8-23 16:19 发表
3万5给装修公司的吧。。。
嗯
---发自梦溪论坛手机客户端---
2018-8-23 16:43
6楼
[联宇电脑] 电脑组装\维修\升级\企业单位电脑维护!
只看该作者
分享本楼
1大晨
来自 江苏省
精华 0
注册 2017-5-30
QUOTE:
原帖由
红居装饰
于 2018-8-23 16:02 发表
全包还得了啊,恭喜楼主开工大吉
房间用的榻榻米 柜子也多
---发自梦溪论坛手机客户端---
2018-8-23 16:43
7楼
0511家装频道:本地家居服务平台,数万业主共同选择
只看该作者
分享本楼
如此设计客服
来自 江苏省
精华 0
注册 2018-8-21
恭喜开帖
2018-8-23 16:55
8楼
买房、卖房、租房上镇江房产网!
只看该作者
分享本楼
卓高美缝天桥店
来自 江苏省
精华 0
注册 2018-4-19
恭喜恭喜
2018-8-23 16:59
9楼
0511家装频道:本地家居服务平台,数万业主共同选择
只看该作者
分享本楼
霸王家的
来自 0
精华 0
注册 2017-2-6
QUOTE:
原帖由
1大晨
于 2018-8-23 16:43 发表
房间用的榻榻米 柜子也多
主卧别用,不透风,潮气非常大。。。这天睡一觉,席子都是湿的。书房可以用,储物空间炒鸡强大
---发自梦溪论坛手机客户端---
2018-8-23 19:58
10楼
MY0511相亲,一分钟注册,享一辈子幸福!
只看该作者
分享本楼
tot
来自 江苏省
精华 0
注册 2010-6-15
行业 房产建筑
我是看错了么?35000?
---发自iPhone 6S---
2018-8-23 20:00
11楼
0511家装频道:本地家居服务平台,数万业主共同选择
只看该作者
分享本楼
guo_459710655
禁止访问
来自 江苏省
精华 0
注册 2015-2-20
*** 作者因违反论坛规定,禁言处理,内容自动屏蔽 ***
详情参阅论坛注册条款:
http://bbs.my0511.com/f11b-t2789156z
2018-8-24 08:22
12楼
买房、卖房、租房上镇江房产网!
只看该作者
分享本楼
壹舍设计
来自 江苏省
精华
79
注册 2017-11-21
恭喜开贴
2018-8-24 09:36
13楼
MY0511相亲,一分钟注册,享一辈子幸福!
只看该作者
分享本楼
海文装饰客服
专版版主
来自 江苏省
精华
53
注册 2016-5-6
恭喜开贴, 效果图赞了
2018-8-24 10:34
14楼
MY0511相亲,一分钟注册,享一辈子幸福!
只看该作者
分享本楼
爱斯特门窗公司
来自 江苏省
精华 0
注册 2018-4-7
祝楼主开工大吉呀
2018-8-24 11:00
15楼
MY0511相亲,一分钟注册,享一辈子幸福!
只看该作者
分享本楼
1大晨
来自 江苏省
精华 0
注册 2017-5-30
1
---发自梦溪论坛手机客户端---
2018-8-24 12:16
16楼
买房、卖房、租房上镇江房产网!
只看该作者
分享本楼
爱斯特门窗公司
来自 江苏省
精华 0
注册 2018-4-7
祝装修顺利
2018-8-31 16:43
17楼
[联宇电脑] 电脑组装\维修\升级\企业单位电脑维护!
只看该作者
分享本楼
返回家庭装修
快速回复主题
游客
您目前还是游客,请
登录
或
注册
您目前是游客,本帖已被系统设置了自动关闭,不可回复!
文明交流,理性发言
0/5000字
<
>
请在打开的新窗口中支付完成打赏
我已完成支付打赏
支付失败重新支付
其他金额
打赏金额:
元
确定
支付打赏
提 现
打赏人
打赏金额(元)
打赏时间
Powered by
Discuz! X 2
0.073129 s
清除 Cookies
-
镇江网友之家
-
手机版
论坛导航
关闭
吃喝玩乐
饮食男女
镇江钓友之家
菜菜鸟户外
镇江单车俱乐部
镜头里的镇江
畅游天下
猫狗总动员
视觉Coffeeshop摄影部落
花鸟鱼虫
婚姻.亲子.家庭
家有学子
谈婚论嫁
女性天地
母婴乐园
婚姻生活
梦溪佳缘
装修
家庭装修
装修招标
镇江室内设计师交流
装修商家直通车
你好,镇江!
百姓话题
我要买房
0511爱心家园
市场监管•12315热线
分类信息
生活服务
闲置转让
镇江二手房/镇江租房
镇江招聘求职
教育培训
镇江二手车
商铺厂房写字楼租售
宠物市场
运动健身
卡券交易
电脑维修升级
杂货铺
其他分类信息区
兴趣爱好
HiFi音响江城沙龙
镇江市美术家协会
我爱模型
车友俱乐部
车迷之家
汽车驾培中心
运动俱乐部
镇江市冬泳、铁人三项协会
聚焦足球
镇江羽毛球
镇江乒乓球协会
镇江网球协会
镇江市自行车运动协会
热爱篮球
动力机车
合作栏目
维权热线
天翼时代
色觉影像摄影工作室
站务区
疑问与建议
网络问政
市政府工作部门
垂直管理部门
党群工作部门
其他重点单位
辖市(区)