| 标题
快捷导航

精彩推荐:MY0511客户端下载

    • 中信银行镇江分行

    • 公益体彩 乐善人生

    • 鹏龙鸿蒙

    • 天然石材·人造石

    » 梦溪论坛 » 家庭装修 » —————————————记录下老破小的装修过程————————————
    家庭装修  >  [装修日记] —————————————记录下老破小的装修过程————————————     
    查看: 14232  回复: 36
    [装修日记] —————————————记录下老破小的装修过程————————————      查看: 14232  回复: 36
    • 来自 江苏省
    • 精华 0
    • 注册 2011-9-14
    • 行业 其它
    •  
    —————————————记录下老破小的装修过程————————————


    有一天

    大房子换成了小家


    有一天

    追求舒适自由的心变得坚定


    有一天

    开始从平淡日子感受到快乐


    这就是

    我的一家五口想要的生活



    简单说一下基本信息:

    小区名称:花山湾

    建筑面积:92

    装修风格:跟着感觉走

    包工方式:半包

    开工日期:2018.9.19

    装修预算:有算过,但是肯定是要超滴

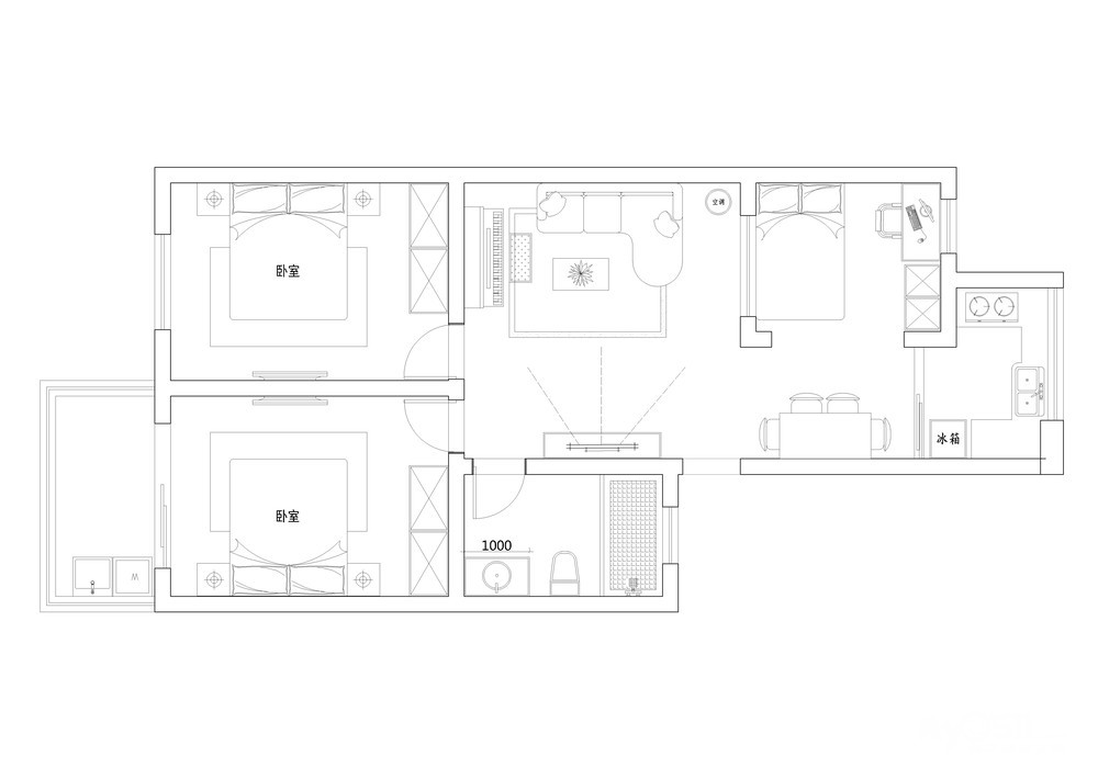
    户型图:









    [ 本帖最后由 xchlovezy 于 2019-1-5 17:07 编辑 ]





                      
    • 来自 江苏省
    • 精华 108
    • 注册 2015-11-2
    •  

    恭喜开工




    • 来自 江苏省
    • 精华 0
    • 注册 2018-9-5
    •  

    恭喜恭喜  开工大吉




    • 来自 江苏省
    • 精华 0
    • 注册 2015-6-25
    •  
    • 来自 江苏省
    • 精华 0
    • 注册 2010-6-15
    • 行业 房产建筑
    •  

    追续中……




    • 来自 江苏省
    • 精华 0
    • 注册 2011-9-14
    • 行业 其它
    •  


    QUOTE:
    原帖由 彭程苏宇 于 2018-9-20 16:56 发表
    多大面积
    91平




    • 来自 江苏省
    • 精华 0
    • 注册 2011-9-14
    • 行业 其它
    •  


    QUOTE:
    原帖由 华飞装饰客服 于 2018-9-20 16:29 发表
    恭喜开工
    谢谢




    • 来自 江苏省
    • 精华 0
    • 注册 2011-9-14
    • 行业 其它
    •  


    QUOTE:
    原帖由 北京高端美缝 于 2018-9-20 16:55 发表
    恭喜恭喜  开工大吉
    谢谢




    • 来自 江苏省
    • 精华 0
    • 注册 2018-7-30
    •  

    恭喜   开工大吉!




    • 来自 江苏省
    • 精华 0
    • 注册 2018-9-3
    •  
    • 来自 江苏省
    • 精华 0
    • 注册 2011-9-14
    • 行业 其它
    •  


    QUOTE:
    原帖由 牛仔布忙 于 2018-9-20 17:14 发表
    恭喜   开工大吉!
    谢谢




    • 来自 江苏省
    • 精华 155
    • 注册 2014-12-11
    • 行业 房产建筑
    •  

    开工大吉




    • 来自 江苏省
    • 精华 0
    • 注册 2011-11-11
    • 行业 商业贸易
    •  

    为了老婆孩子就应该买个大房子,学区房在镇江有个毛用!我自己还是实验小学毕业的,市区老破小严重降低生活质量。




    • 来自 江苏省
    • 精华 0
    • 注册 2015-8-16
    • 行业 房产建筑
    •  

    坚持最初的自己 楼主加油  有什么问题 我们也可以互相交流




    • 来自 江苏省
    • 精华 0
    • 注册 2018-9-14
    •  

    开工大吉




    • 来自 江苏省
    • 精华 0
    • 注册 2011-9-14
    • 行业 其它
    •  


    老房装修确实比新房还要繁琐呀




    • 来自 江苏省
    • 精华 0
    • 注册 2011-9-14
    • 行业 其它
    •  


    QUOTE:
    原帖由 52Y00 于 2018-9-20 20:11 发表
    为了老婆孩子就应该买个大房子,学区房在镇江有个毛用!我自己还是实验小学毕业的,市区老破小严重降低生活质量。
    每个人的出发点都是不一样的,在家长的角度上:给孩子创造好一点的平台是家长的责任,至于后面的学习成绩的好坏完全是取决于孩子后期的努力了,一个好的老师教出来的学生水平肯定都有不同,就算是清华毕业出来的,也有好坏之分吧!




    • 来自 江苏省
    • 精华 0
    • 注册 2011-9-14
    • 行业 其它
    •  


    QUOTE:
    原帖由 青藤门窗ygf 于 2018-9-21 01:38 发表
    开工大吉
    谢谢




    • 来自 江苏省
    • 精华 0
    • 注册 2011-9-14
    • 行业 其它
    •  


    QUOTE:
    原帖由 汇豪移门 于 2018-9-20 22:42 发表
    恭喜开工大吉
    谢谢




    • 来自 江苏省
    • 精华 0
    • 注册 2018-7-11
    •  

    恭喜恭喜




    • 来自 江苏省
    • 精华 0
    • 注册 2018-8-11
    •  

    开工大吉




    • 来自 江苏省
    • 精华 0
    • 注册 2008-9-1
    • 行业 商业贸易
    •  

    恭喜开贴




    • 来自 江苏省
    • 精华 0
    • 注册 2018-8-22
    •  

    恭喜开工




    • 来自 江苏省
    • 精华 0
    • 注册 2011-6-8
    • 行业 其它
    •  


    QUOTE:
    原帖由 52Y00 于 2018-9-20 20:11 发表
    为了老婆孩子就应该买个大房子,学区房在镇江有个毛用!我自己还是实验小学毕业的,市区老破小严重降低生活质量。
    90平的房子蛮大的了,三口人够住了,现在商品房起码120往上跑实用面积估计也就90多。不知道怎样才算大房子啊?




    • 来自 江苏省
    • 精华 0
    • 注册 2011-9-14
    • 行业 其它
    •  

    在我看来房子是身外之物,可有可无,只要家人在,哪里都是家!
    房子可以再换,方便最重要!所谓的什么生活质量,都是为了自己面子而已!




    • 来自 江苏省
    • 精华 0
    • 注册 2018-4-7
    •  

    恭喜,有装修施工不懂得地方可以问我,我以前在装修公司做过对装修还是挺专业的哦




    • 来自 江苏省
    • 精华 0
    • 注册 2018-8-8
    •  

    开工大吉




    • 来自 江苏省
    • 精华 222
    • 注册 2016-11-15
    • 行业 广告媒体
    •  

    期待更新




    • 来自 江苏省
    • 精华 1
    • 注册 2009-9-8
    • 行业 其它
    •  

    恭喜恭喜!




    • 来自 江苏省
    • 精华 0
    • 注册 2011-9-14
    • 行业 其它
    •  


    QUOTE:
    原帖由 家装超人 于 2018-9-23 10:49 发表
    恭喜恭喜!
    谢谢




    • 来自 江苏省
    • 精华 0
    • 注册 2011-9-14
    • 行业 其它
    •  


    QUOTE:
    原帖由 鸿鹄设计镇江站 于 2018-9-23 10:42 发表
    期待更新
    最近都在拆除,更新会有点慢哦!

    [ 本帖最后由 xchlovezy 于 2018-9-23 11:21 编辑 ]




    • 来自 江苏省
    • 精华 0
    • 注册 2007-8-18
    • 行业 教育科研
    •  

    找的装潢公司推荐下给我啊




    • 来自 江苏省
    • 精华 222
    • 注册 2016-11-15
    • 行业 广告媒体
    •  






    • 来自 江苏省
    • 精华 0
    • 注册 2011-9-14
    • 行业 其它
    •  

    好多天没有来更新了


    拆除完的样子:












    [ 本帖最后由 xchlovezy 于 2018-10-14 10:00 编辑 ]




    • 来自 江苏省
    • 精华 0
    • 注册 2018-4-7
    •  

    恭喜楼主开贴




    查看积分策略说明快速回复主题
    您目前还是游客,请 登录注册
    您目前是游客,本帖已被系统设置了自动关闭,不可回复!

    0/5000字

     
    < >
     

    Powered by Discuz! X 2 0.085473 s 清除 Cookies - 镇江网友之家 - 手机版
    论坛导航 关闭