今年房子价格一直在掉,但是也有相信房子还要再涨价。不管了,本来就是刚需,涨跌随缘吧!因为在京口区上班,所以一直只考虑中建大观或吾悦!可吾悦广场未满2年,国家的税太高了。。。吾悦128平,净得给128W都不肯卖,也是没办法了。。。或许跟吾悦没有缘分吧!而中建北区一直没房子在卖。。。等了一个多月,正好有个客户家在卖房子,正好接手咯,这才是真正的缘分吧!

本来不想写装修日记的,觉得有点烦也怕自己坚持不到底。。。可我对象是个细致的人,说一直在给别人装修,自己装修了不写下?话有点啰嗦,直接进入主题!按照网友们写日记的范例是先发下小区照片?那就来几张吧
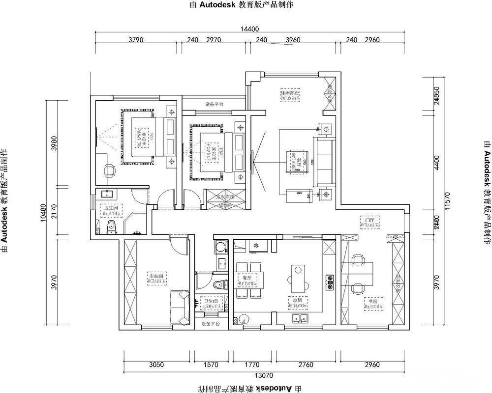
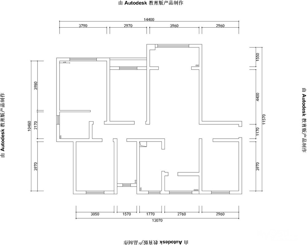
图在电脑上是正的 为什么上传了就反了?
[
本帖最后由 高颜值设计师 于 2018-11-24 18:26 编辑 ]