
项目地址:彩虹城
户型面积:顶复180P+阁楼
装修风格:现代港式
设计师:戴永菲
对于这户,整个公司都有特别的印象,因为是新店开业主动上门的第一户业主。
三月底周末的下午,母子两人一同来的,简单接待了解大致情况之后,就说再去看看,
过了大概一个小时不到又回来了,这回请我们老板下来亲自主谈,
(在公司老板忌我们喊老板,他只想做好自己的设计职位)
在这还是说戴老师吧~
聊的很好,隔天下午就去量房了,前前后后沟通确定方案到签合同开工,半个月时间没到。
全程男业主并未参与,因为工作原因,国内外经常出差,基本成型之后才碰过面。
当时业主有说很喜欢公司原来一楼的工业风,但实际和他家装修并无多大关系,沟通图纸也有说,我们的图纸细节比别家做的好。
业主家儿子在成都上大学,原本是要等7月份毕业之后再装,意外的提前了。
可能那段时间大家感觉比较好,温度很好,心情也不错,
人生很多事儿都是讲个感觉,感觉到了,一切都很顺。

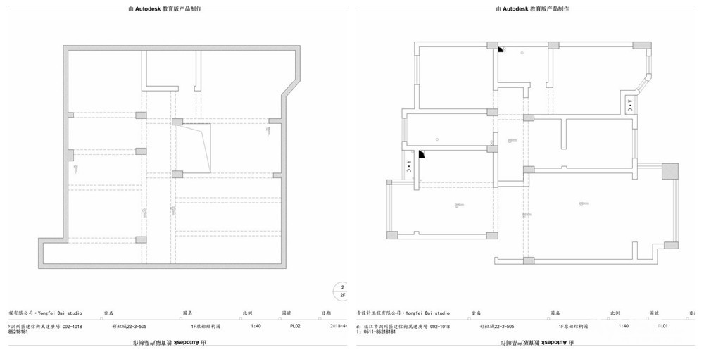
原始平面图

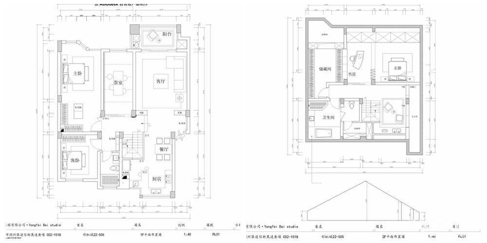
平面方案图
[ 本帖最后由 my0511唐老鸭 于 2019-5-17 09:54 编辑 ]









































油烟管道是因为客户的原因哦,暂时没有装上。
已经入住了,但是业主一直未采购安装,等下去不知道等到什么时候呢,楼梯扶手一到就去拍了,展现的也是家里生活的真实状态。



