| 标题
快捷导航

精彩推荐:MY0511客户端下载

    • 中信银行镇江分行

    • 公益体彩 乐善人生

    • 鹏龙鸿蒙

    • 天然石材·人造石

    » 梦溪论坛 » 家庭装修 » 新家的感觉
    家庭装修  >  [装修日记] 新家的感觉     
    查看: 16290  回复: 40
    [装修日记] 新家的感觉      查看: 16290  回复: 40
    • 来自 江苏省
    • 精华 0
    • 注册 2019-6-7
    •  
    新家的感觉

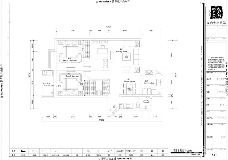
    【小区名称】:御带河花园

    【所在楼层】:顶楼
          【建筑面积】:98

    【装修风格】:简约
          【包工方式】:全包

    【装修公司】:风尚大宅装饰公司

    【开工日期】:2019年6月2日

    【装修预算】:19W
          【户型图片】:户型图

    先传给大家看看,评价一下,比较简单

       














                      
    • 来自 江苏省
    • 精华 0
    • 注册 2017-3-31
    •  

    占楼,哈哈哈楼主出租给你




    • 来自 江苏省
    • 精华 1
    • 注册 2009-6-19
    • 行业 其它
    •  
    • 来自 江苏省
    • 精华 0
    • 注册 2019-6-7
    •  

    我是第一次装修,我非常迷茫,不知道要如何选择装修公司,有人打电话,也有人直接推荐,还有人在小区推销,自己也在网上关注过,但是心里依然还是没底,几个朋友一起吃饭,聊起这个话题,朋友推荐了一家叫风尚大宅的装修公司,抽时间去了这家公司,门面看起来还挺大的,聊了一个多小时,他还是挺细心的,讲解了公司的理念,一起去看房子,验了房,小伙子忙了一个下午,这是第一次接触,没过两天他们约我,第二次去他们公司又带我去了工地,去工地的过程中,他说做装修的,一定要为客户设身处地的去考虑,花钱了能达到业主想要的结果,满意了才是最好。工地转了一圈看下来我还是挺满意的,后来我回家之后和家人商量了下,感觉他家还不错,工地做的也挺规整的,当时我心里还是没底,决定再去看看有好感的其他几家公司,几天跑下来累死了,风尚大宅给我的感觉更好一点,回家再商量商量,一致确定选择风尚大宅,这里对其他几家公司的热情接待表示感谢




    • 来自 江苏省
    • 精华 87
    • 注册 2017-9-7
    •  

    非常感谢您选择我们公司,我们的服务和施工肯定会让您满意的




    • 来自 江苏省
    • 精华 5
    • 注册 2019-3-30
    • 行业 基础设施
    •  

    恭喜恭喜




    • 来自 江苏省
    • 精华 0
    • 注册 2018-12-12
    • 行业 其它
    •  

    恭喜开帖,有空来指导指导




    • 来自 江苏省
    • 精华 0
    • 注册 2019-4-8
    • 行业 其它
    •  

    恭喜开工大吉




    • 来自 江苏省
    • 精华 0
    • 注册 2019-6-7
    •  
    工地陆陆续续上传照片





















    抽空去一趟工地,太热了,水电做的还满意,希望后面的工作继续谢谢师傅




    • 来自 江苏省
    • 精华 0
    • 注册 2018-4-17
    •  

    恭喜




    • 来自 江苏省
    • 精华 0
    • 注册 2012-8-15
    • 行业 工业制造
    •  
    • 来自 江苏省
    • 精华 0
    • 注册 2018-12-12
    • 行业 其它
    •  

    恭喜恭喜,不错




    • 来自 江苏省
    • 精华 0
    • 注册 2016-11-7
    •  






    • 来自 江苏省
    • 精华 0
    • 注册 2019-3-15
    •  

    恭喜恭喜开工大吉




    • 来自 江苏省
    • 精华 0
    • 注册 2010-5-8
    • 行业 其它
    •  






    • 来自 江苏省
    • 精华 0
    • 注册 2019-6-7
    •  

    昨天装饰公司通知我过来看防水,上班之前抽空看一下,两三天没来墙都砌好了,速度挺快的







    • 来自 江苏省
    • 精华 0
    • 注册 2007-8-29
    • 行业 IT 通信
    •  






    • 来自 江苏省
    • 精华 0
    • 注册 2018-4-7
    •  

    速度快的




    • 来自 江苏省
    • 精华 0
    • 注册 2009-2-28
    • 行业 房产建筑
    •  

    恭喜开工!




    • 来自 江苏省
    • 精华 1
    • 注册 2009-6-19
    • 行业 其它
    •  
    • 来自 江苏省
    • 精华 0
    • 注册 2010-5-8
    • 行业 其它
    •  






    • 来自 江苏省
    • 精华 0
    • 注册 2017-7-1
    •  


    QUOTE:
    原帖由 业余的感觉 于 2019-6-14 09:35 发表
    昨天装饰公司通知我过来看防水,上班之前抽空看一下,两三天没来墙都砌好了,速度挺快的
    速度可以




    • 来自 江苏省
    • 精华 0
    • 注册 2018-12-12
    • 行业 其它
    •  
    • 来自 江苏省
    • 精华 0
    • 注册 2019-6-7
    •  

    谢谢大家关心,最近天气太热了,实在跑不动了,补发一下之前溜过去拍的照片,





    • 来自 江苏省
    • 精华 0
    • 注册 2019-6-7
    •  

    在发一下他们家瓦工贴砖,当时选他们装修公司也是看到这种新式贴法,反正是给他家设计师一顿介绍,脑袋当时晕乎乎的,听上去挺有道理;去的时候厨房已经贴的差不多,先发上来大家给看看贴的好不好




    • 来自 江苏省
    • 精华 0
    • 注册 2019-6-7
    •  

    占楼




    • 来自 江苏省
    • 精华 0
    • 注册 2019-6-7
    •  

    哈哈,占楼啦




    • 来自 江苏省
    • 精华 0
    • 注册 2008-11-4
    • 行业 商业贸易
    •  

    恭喜恭喜




    • 来自 江苏省
    • 精华 0
    • 注册 2018-5-3
    • 行业 其它
    •  

    爬楼关注




    • 来自 江苏省
    • 精华 0
    • 注册 2014-8-14
    • 行业 商业贸易
    •  

    恭喜开贴




    • 来自 江苏省
    • 精华 0
    • 注册 2017-4-20
    •  

    恭喜楼主




    • 来自 江苏省
    • 精华 0
    • 注册 2019-6-7
    •  
    今天休息又去看了一下,瓷砖都差不多了,发了张图片让大家帮忙参考下













    今天休息去了下工地,没想到进度还挺快的,为师傅点赞,目前工地还比较满意,希望后面继续

    [ 本帖最后由 业余的感觉 于 2019-6-22 17:16 编辑 ]




    • 来自 江苏省
    • 精华 0
    • 注册 2019-6-7
    •  



    前两天瓦工结束,装潢公司叫我去验收,就看到他们在忙活,我也不知道验收哪些东西,求各位大神指点




    • 来自 江苏省
    • 精华 0
    • 注册 2017-4-20
    •  

    恭喜楼主,顺顺利利




    • 来自 江苏省
    • 精华 0
    • 注册 2018-10-28
    •  






    • 来自 江苏省
    • 精华 0
    • 注册 2018-10-29
    • 行业 其它
    •  

    恭喜恭喜




    • 来自 江苏省
    • 精华 0
    • 注册 2018-5-3
    • 行业 其它
    •  






    • 来自 江苏省
    • 精华 0
    • 注册 2017-5-16
    •  

    *** 作者因违反论坛规定,禁言处理,内容自动屏蔽 ***

    详情参阅论坛注册条款:
    http://bbs.my0511.com/f11b-t2789156z


    查看积分策略说明快速回复主题
    您目前还是游客,请 登录注册
    您目前是游客,本帖已被系统设置了自动关闭,不可回复!

    0/5000字

     
    < >
     

    Powered by Discuz! X 2 0.088720 s 清除 Cookies - 镇江网友之家 - 手机版
    论坛导航 关闭