【小区名称】:中南锦园
【建筑面积】:400㎡
【装修风格】:混搭
【包工方式】:半包
【设计单位】:造物设计
【施工单位】:造物施工
接到这个案例时,业主希望我们做出属于他的风格。
希望家中既有中式的沉稳气息的同时又可以融入现代的高级感,并且希望用简约的笔法勾勒他对家的期待。
业主不希望家里是浮夸的装饰主义,在材质选择上,我们提出使用贴近自然的材料,
用自然的感觉创造温馨的家居氛围,同时利用自然景观和室内互动。
让生活回归自然,返璞归真。
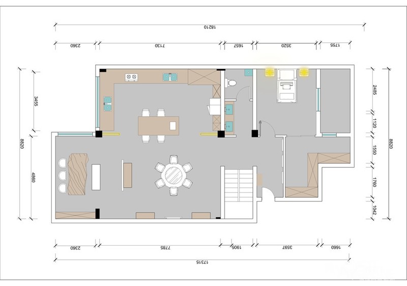
平面布置图

地下室,改变了常规思路,将餐厅和厨房这两个重要功能实现在这里。
这样一楼的空间就会被间接放大,且餐厨体验也将是别一番的享受。

由于餐厨的功能下移到地下室,我们多处用屏风对空间进行半隐形隔断,保留了这个超大空间的通透感。
入户前我们做了一块缓冲区,可以在进门前放置雨具,大件物品,这样在日后的生活中,入户后的门厅可以一直保持干净整洁。

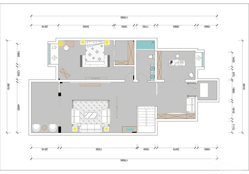
二楼根据本屋主的人员结构,我们划分了两个房间。
考虑到区域面积比较大,增加了主卧套房的面积,使用感受更优。
[ 本帖最后由 my0511唐老鸭 于 2019-6-12 13:48 编辑 ]



































