| 标题
快捷导航

精彩推荐:MY0511客户端下载

    • 中信银行镇江分行

    • 公益体彩 乐善人生

    • 鹏龙鸿蒙

    • 天然石材·人造石

    » 梦溪论坛 » 家庭装修 » 静享时光——半岛别墅完工实景
    家庭装修  >  [完工毕业照] 静享时光——半岛别墅完工实景     
    查看: 93550  回复: 44
    [完工毕业照] 静享时光——半岛别墅完工实景      查看: 93550  回复: 44
    • 来自 江苏省
    • 精华 3
    • 注册 2013-8-6
    • 行业 IT 通信
    •  
    静享时光——半岛别墅完工实景

    项目名称:静享时光

    建筑面积:400㎡

    设计机构:锋意贾峰云别墅设计工作室

    主持设计:贾峰云


    我们要创作出一个别墅场景

    通透明亮,精致格调

    于是

    电视背景采用爵士白瓷砖配以灰木纹板装饰柜

    增加空间的层次感与装饰性


    壁炉增加客厅的动感跳跃的火苗

    温暖的家与良好的亲子氛围

    实木隔板与灰陶花瓶相得益彰


    我们采用意式极简家具陈设刻意打造空间的品质以此来丰富生活的内涵



    [ 本帖最后由 my0511唐老鸭 于 2019-9-16 13:31 编辑 ]





                      
    • 来自 江苏省
    • 精华 3
    • 注册 2013-8-6
    • 行业 IT 通信
    •  

    错层挑高的空间用金色艺术吊灯来雕刻生活美学方格吊顶设计避免空间的单调

    灰杏色墙壁调和明暗对比


    夜幕降临 点亮落地灯读本三毛的旅行笔记

    身在别墅 心在天涯


    深胡桃色栏杆压低了色彩

    使空间的黑白灰层次更加分明



    [ 本帖最后由 my0511唐老鸭 于 2019-9-16 13:22 编辑 ]




    • 来自 江苏省
    • 精华 3
    • 注册 2013-8-6
    • 行业 IT 通信
    •  

    边厅设计了休息区品鉴艺术 思想交流抽象画暗示了业主自由不鹜的心灵

    翱翔宇宙



    [ 本帖最后由 my0511唐老鸭 于 2019-9-16 13:23 编辑 ]




    • 来自 江苏省
    • 精华 3
    • 注册 2013-8-6
    • 行业 IT 通信
    •  

    本案拥有宽大的餐厨空间餐桌椅选用灰木纹材质

    呼应客厅的格调


    二楼起居室清新雅致分享学习

    交流欢乐


    静思室冷静放松可阅读可静默尽享独处时光



    [ 本帖最后由 my0511唐老鸭 于 2019-9-16 13:24 编辑 ]




    • 来自 江苏省
    • 精华 3
    • 注册 2013-8-6
    • 行业 IT 通信
    •  

    卧室格调优雅米灰床具配以红色麻布窗帘为安静的休息空间增添些许私密感

    深色地板沉淀了色彩



    [ 本帖最后由 my0511唐老鸭 于 2019-9-16 13:25 编辑 ]




    • 来自 江苏省
    • 精华 3
    • 注册 2013-8-6
    • 行业 IT 通信
    •  

    TIPS

    业主是位活泼开朗的女孩子,喜欢户外活动。

    不过也有安静的一面,对家庭环境有自己独到的见解。


    从设计之初就极度配合设计师的思路,

    不过这都是基于前期的深入良好沟通,

    让甲方乙方寻找到统一的价值观与美学观。


    做别墅设计这么多年,深感设计前沟通的必要性。

    “认真”是好作品诞生的必要条件。设计公司再大的规模,再好的品牌,

    再多的奖项都比不过主设计师对设计职业全情投入的精神

    与站在业主立场不断钻研的工作思路。


    与业主价值观的匹配能够让设计师更加容易进入角色,

    在空间尚未施工的时候即可以在脑海中构建出完整的竣工场景。


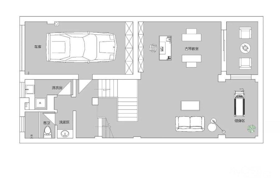
    负一楼平面▼


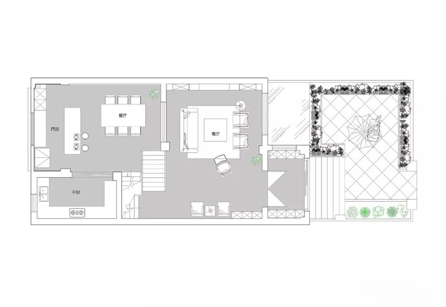
    一楼平面▼


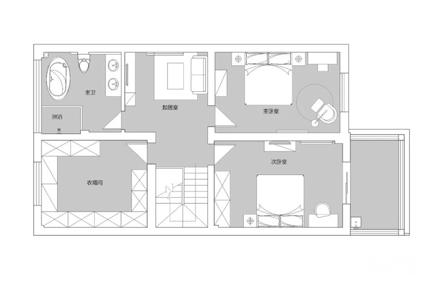
    二楼平面 ▼



    三楼平面▼




    [ 本帖最后由 my0511唐老鸭 于 2019-9-16 13:28 编辑 ]




    • 来自 江苏省
    • 精华 3
    • 注册 2013-8-6
    • 行业 IT 通信
    •  






    • 来自 江苏省
    • 精华 5
    • 注册 2019-3-30
    • 行业 基础设施
    •  






    • 来自 江苏省
    • 精华 1
    • 注册 2009-6-19
    • 行业 其它
    •  
    • v8
    • 专版版主
    • 来自 江苏省
    • 精华 120
    • 注册 2006-4-13
    • 行业 其它
    •  

    感谢推荐




    • 来自 江苏省
    • 精华 87
    • 注册 2017-9-7
    •  

    前排支持




    • 来自 江苏省
    • 精华 0
    • 注册 2019-6-14
    •  

    业主是位活泼开朗的女孩子,需不需要男朋友!?




    • v8
    • 专版版主
    • 来自 江苏省
    • 精华 120
    • 注册 2006-4-13
    • 行业 其它
    •  

    人家已婚




    • 来自 江苏省
    • 精华 0
    • 注册 2011-8-30
    • 行业 商业贸易
    •  

    家具哪里买的啊 好看




    • 来自 江苏省
    • 精华 0
    • 注册 2013-8-28
    • 行业 其它
    •  

    哇,好像看到我家空调暖气了呢




    • 来自 江苏省
    • 精华 5
    • 注册 2019-3-30
    • 行业 基础设施
    •  






    • v8
    • 专版版主
    • 来自 江苏省
    • 精华 120
    • 注册 2006-4-13
    • 行业 其它
    •  
    • v8
    • 专版版主
    • 来自 江苏省
    • 精华 120
    • 注册 2006-4-13
    • 行业 其它
    •  


    QUOTE:
    原帖由 下个路口左转 于 2019-9-21 15:05 发表
    哇,好像看到我家空调暖气了呢





    • 来自 江苏省
    • 精华 1
    • 注册 2009-6-19
    • 行业 其它
    •  
    • 来自 江苏省
    • 精华 0
    • 注册 2016-4-21
    •  
    • 来自 江苏省
    • 精华 45
    • 注册 2016-6-22
    • 行业 房产建筑
    •  






    • 来自 江苏省
    • 精华 45
    • 注册 2016-6-22
    • 行业 房产建筑
    •  






    • 来自 江苏省
    • 精华 45
    • 注册 2016-6-22
    • 行业 房产建筑
    •  






    • 来自 江苏省
    • 精华 45
    • 注册 2016-6-22
    • 行业 房产建筑
    •  






    • 来自 江苏省
    • 精华 45
    • 注册 2016-6-22
    • 行业 房产建筑
    •  






    • 来自 江苏省
    • 精华 45
    • 注册 2016-6-22
    • 行业 房产建筑
    •  






    • 来自 江苏省
    • 精华 45
    • 注册 2016-6-22
    • 行业 房产建筑
    •  






    • 来自 江苏省
    • 精华 45
    • 注册 2016-6-22
    • 行业 房产建筑
    •  






    • 来自 江苏省
    • 精华 0
    • 注册 2022-7-2
    •  

    很喜欢这种小美的风格   整体的色彩搭配   也很喜欢  我猜业主应该是一位是从事艺术工作的美女




    • 来自 江苏省
    • 精华 45
    • 注册 2016-6-22
    • 行业 房产建筑
    •  






    • 来自 江苏省
    • 精华 45
    • 注册 2016-6-22
    • 行业 房产建筑
    •  






    • 来自 江苏省
    • 精华 45
    • 注册 2016-6-22
    • 行业 房产建筑
    •  






    • 来自 江苏省
    • 精华 45
    • 注册 2016-6-22
    • 行业 房产建筑
    •  






    • 来自 江苏省
    • 精华 0
    • 注册 2022-7-2
    •  






    • 来自 江苏省
    • 精华 0
    • 注册 2007-4-25
    • 行业 其它
    •  
    • 来自 江苏省
    • 精华 0
    • 注册 2022-7-2
    •  

       优雅,是永不褪色的魅力 ,无论现在还是将来




    • 来自 江苏省
    • 精华 0
    • 注册 2007-4-25
    • 行业 其它
    •  
    • 来自 江苏省
    • 精华 0
    • 注册 2022-7-2
    •  






    • 来自 江苏省
    • 精华 45
    • 注册 2016-6-22
    • 行业 房产建筑
    •  






    • 来自 江苏省
    • 精华 45
    • 注册 2016-6-22
    • 行业 房产建筑
    •  






    • 来自 江苏省
    • 精华 45
    • 注册 2016-6-22
    • 行业 房产建筑
    •  






    • 来自 江苏省
    • 精华 0
    • 注册 2022-7-2
    •  

    2019年的作品,现在看起来  还是那么的优雅,美是永不褪色的




    查看积分策略说明快速回复主题
    您目前还是游客,请 登录注册
    您目前是游客,本帖已被系统设置了自动关闭,不可回复!

    0/5000字

     
    < >
     

    Powered by Discuz! X 2 0.061056 s 清除 Cookies - 镇江网友之家 - 手机版
    论坛导航 关闭