收藏本站
客户端
扫码下载客户端
官方微信
打开微信扫一扫
登录
|
注册
|
标题
标题
用户
全站首页
|
论坛导航
|
网络问政
|
招聘求职
|
买房租房
|
装修频道
|
生活服务
|
教育
|
相亲
|
亲子
|
美食
|
婚嫁
|
手机客户端
家有学子
|
母婴乐园
快捷导航
精彩推荐:
MY0511客户端下载
中信银行镇江分行
公益体彩 乐善人生
鹏龙鸿蒙
天然石材·人造石
»
梦溪论坛
»
家庭装修
» 第一套房装修,简单记录下,便于以后回味
家庭装修
>
[装修日记]
第一套房装修,简单记录下,便于以后回味
查看: 13674 回复: 42
快速回复
返回家庭装修
[装修日记]
第一套房装修,简单记录下,便于以后回味
查看: 13674 回复: 42
上一主题
|
下一主题
柳色青青酱
来自 江苏省
精华 0
注册 2020-3-27
第一套房装修,简单记录下,便于以后回味
欢迎加入家装官方微信群!加小编微信:13655287775 拉进群
官方QQ群: 群号:34092208
大宅群: 群号:565444352
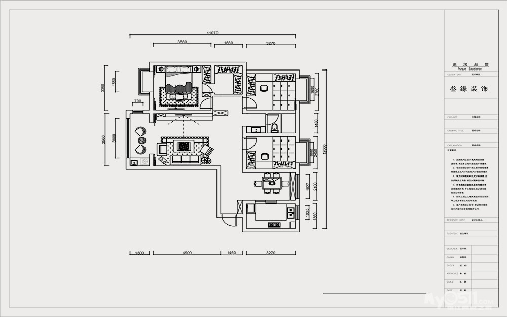
第一套房装修,也算是大事了吧,好记性不如烂笔头记下。
【
小区名称】:长香水岸
【所在楼层】:26
【建筑面积】:100平(实用)
【装修风格】:想要现代
【包工方式】:全包(怕烦)
【装修公司】:叁缘堂私享设计
【开工日期】:
【装修预算】:一分一分花
平面布置
[
本帖最后由 my0511唐老鸭 于 2020-5-7 14:48 编辑
]
已有 红居装饰, 镇江德尔地板
2
人打赏
2020-4-20 10:38
1楼
MY0511相亲,一分钟注册,享一辈子幸福!
只看该作者
分享本楼
柳色青青酱
来自 江苏省
精华 0
注册 2020-3-27
过完年就说开工了,谁知道今年的年时间这么长,开工日期我也不知道写哪一天了,感觉错过了一件大事
[
本帖最后由 柳色青青酱 于 2020-4-29 09:17 编辑
]
2020-4-20 10:39
2楼
[联宇电脑] 电脑组装\维修\升级\企业单位电脑维护!
只看该作者
分享本楼
柳色青青酱
来自 江苏省
精华 0
注册 2020-3-27
2020-4-20 10:40
3楼
[联宇电脑] 电脑组装\维修\升级\企业单位电脑维护!
只看该作者
分享本楼
柳色青青酱
来自 江苏省
精华 0
注册 2020-3-27
2020-4-20 10:40
4楼
MY0511相亲,一分钟注册,享一辈子幸福!
只看该作者
分享本楼
柳色青青酱
来自 江苏省
精华 0
注册 2020-3-27
大于10秒
2020-4-20 10:40
5楼
买房、卖房、租房上镇江房产网!
只看该作者
分享本楼
柳色青青酱
来自 江苏省
精华 0
注册 2020-3-27
2020-4-20 10:41
6楼
找工作,就上MY0511!
只看该作者
分享本楼
柳色青青酱
来自 江苏省
精华 0
注册 2020-3-27
2020-4-20 10:41
7楼
找工作,就上MY0511!
只看该作者
分享本楼
柳色青青酱
来自 江苏省
精华 0
注册 2020-3-27
8楼
2020-4-20 10:41
8楼
找工作,就上MY0511!
只看该作者
分享本楼
柳色青青酱
来自 江苏省
精华 0
注册 2020-3-27
差不多了
2020-4-20 10:41
9楼
[联宇电脑] 电脑组装\维修\升级\企业单位电脑维护!
只看该作者
分享本楼
柳色青青酱
来自 江苏省
精华 0
注册 2020-3-27
可以了
2020-4-20 10:42
10楼
[联宇电脑] 电脑组装\维修\升级\企业单位电脑维护!
只看该作者
分享本楼
镇江风尚大宅
来自 江苏省
精华
87
注册 2017-9-7
开工大吉
---发自梦溪论坛手机客户端---
2020-4-20 12:03
11楼
找工作,就上MY0511!
只看该作者
分享本楼
科度定制门窗
来自 江苏省
精华 0
注册 2020-4-17
恭喜恭喜
2020-4-20 12:35
12楼
找工作,就上MY0511!
只看该作者
分享本楼
可可虎家装监理
来自 江苏省
精华 0
注册 2018-3-31
行业 其它
开工大吉~~恭喜恭喜
2020-4-20 13:52
13楼
MY0511相亲,一分钟注册,享一辈子幸福!
只看该作者
分享本楼
红居装饰
专版版主
来自 江苏省
精华
421
注册 2016-10-30
行业 房产建筑
开工大吉哦楼主
2020-4-20 14:48
14楼
买房、卖房、租房上镇江房产网!
只看该作者
分享本楼
镇江德尔地板
专版版主
来自 江苏省
精华
1
注册 2019-8-30
行业 房产建筑
---发自iPhone 6---
2020-4-20 14:52
15楼
MY0511相亲,一分钟注册,享一辈子幸福!
只看该作者
分享本楼
泽一设计
专版版主
来自 江苏省
精华
74
注册 2018-3-2
行业 房产建筑
恭喜楼主
2020-4-21 09:11
16楼
0511家装频道:本地家居服务平台,数万业主共同选择
只看该作者
分享本楼
展志天华木门
来自 江苏省
精华 0
注册 2019-6-5
恭喜楼主开工大吉
---发自vivo---
2020-4-21 09:59
17楼
买房、卖房、租房上镇江房产网!
只看该作者
分享本楼
关亨木门
来自 江苏省
精华 0
注册 2010-5-8
行业 其它
恭喜恭喜开工大吉
2020-4-21 10:53
18楼
买房、卖房、租房上镇江房产网!
只看该作者
分享本楼
镇江德国都芳漆
来自 江苏省
精华 0
注册 2014-5-17
行业 商业贸易
恭喜楼主
2020-4-21 10:53
19楼
0511家装频道:本地家居服务平台,数万业主共同选择
只看该作者
分享本楼
玛莎名品家具
来自 江苏省
精华
1
注册 2017-8-10
行业 其它
恭喜开贴
2020-4-21 14:03
20楼
[联宇电脑] 电脑组装\维修\升级\企业单位电脑维护!
只看该作者
分享本楼
伊慕装饰
专版版主
来自 江苏省
精华 0
注册 2014-10-16
欢迎新同学
2020-4-21 14:10
21楼
0511家装频道:本地家居服务平台,数万业主共同选择
只看该作者
分享本楼
星月神防盗门A
来自 江苏省
精华 0
注册 2019-11-21
行业 基础设施
恭喜
---发自iPhone XS Max---
2020-4-21 14:43
22楼
找工作,就上MY0511!
只看该作者
分享本楼
镇江红意硅藻泥
来自 江苏省
精华 0
注册 2018-6-4
---发自华为---
2020-4-21 15:02
23楼
MY0511相亲,一分钟注册,享一辈子幸福!
只看该作者
分享本楼
芬驰水管
来自 江苏省
精华 0
注册 2018-4-27
行业 基础设施
2020-4-21 15:54
24楼
MY0511相亲,一分钟注册,享一辈子幸福!
只看该作者
分享本楼
百胜装饰
专版版主
来自 江苏省
精华
155
注册 2014-12-11
行业 房产建筑
祝楼主装修路途愉快
2020-4-21 22:30
25楼
[联宇电脑] 电脑组装\维修\升级\企业单位电脑维护!
只看该作者
分享本楼
柳色青青酱
来自 江苏省
精华 0
注册 2020-3-27
谢谢各路大神,请你们的安了,家里有神兽开学,我也开学中,等我歇歇再来整理
2020-4-22 10:09
26楼
MY0511相亲,一分钟注册,享一辈子幸福!
只看该作者
分享本楼
Xeqtrrr
来自 上海
精华 0
注册 2004-8-28
行业 娱乐餐饮
全包日记不错,付款入住结束
2020-4-22 10:40
27楼
[联宇电脑] 电脑组装\维修\升级\企业单位电脑维护!
只看该作者
分享本楼
yadilo雅帝乐
来自 江苏省
精华 0
注册 2018-12-12
行业 其它
恭喜开帖
---发自iPhone 7 Plus---
2020-4-22 10:46
28楼
买房、卖房、租房上镇江房产网!
只看该作者
分享本楼
法坚尼高端门窗
来自 江苏省
精华 0
注册 2019-6-21
2020-4-22 11:09
29楼
找工作,就上MY0511!
只看该作者
分享本楼
关亨木门
来自 江苏省
精华 0
注册 2010-5-8
行业 其它
2020-4-22 16:07
30楼
MY0511相亲,一分钟注册,享一辈子幸福!
只看该作者
分享本楼
星月神防盗门A
来自 江苏省
精华 0
注册 2019-11-21
行业 基础设施
恭喜楼主开工大吉
---发自iPhone XS Max---
2020-4-24 05:43
31楼
MY0511相亲,一分钟注册,享一辈子幸福!
只看该作者
分享本楼
卡洛尼曼
来自 江苏省
精华 0
注册 2018-5-3
行业 其它
2020-4-24 09:01
32楼
0511家装频道:本地家居服务平台,数万业主共同选择
只看该作者
分享本楼
关亨木门
来自 江苏省
精华 0
注册 2010-5-8
行业 其它
2020-4-24 11:11
33楼
买房、卖房、租房上镇江房产网!
只看该作者
分享本楼
柳色青青酱
来自 江苏省
精华 0
注册 2020-3-27
有没有大神能告诉我 上班,神兽,装修,怎么做到的
2020-4-29 09:12
34楼
0511家装频道:本地家居服务平台,数万业主共同选择
只看该作者
分享本楼
柳色青青酱
来自 江苏省
精华 0
注册 2020-3-27
开个小差,发些水电图片,有没有大神看看,咱也不懂啊
[
本帖最后由 柳色青青酱 于 2020-4-29 09:14 编辑
]
2020-4-29 09:13
35楼
MY0511相亲,一分钟注册,享一辈子幸福!
只看该作者
分享本楼
XPLWJ
来自 江苏省
精华 0
注册 2005-6-10
横平竖直,比较规范!
---发自iPhone 6---
2020-4-29 09:24
36楼
找工作,就上MY0511!
只看该作者
分享本楼
关亨木门
来自 江苏省
精华 0
注册 2010-5-8
行业 其它
2020-4-29 11:13
37楼
0511家装频道:本地家居服务平台,数万业主共同选择
只看该作者
分享本楼
兰舍硅藻泥-镇江
来自 江苏省
精华 0
注册 2020-4-30
不错
---发自华为---
2020-5-1 10:18
38楼
MY0511相亲,一分钟注册,享一辈子幸福!
只看该作者
分享本楼
yadilo雅帝乐
来自 江苏省
精华 0
注册 2018-12-12
行业 其它
五一快乐!
---发自iPhone 7 Plus---
2020-5-1 10:38
39楼
MY0511相亲,一分钟注册,享一辈子幸福!
只看该作者
分享本楼
柳色青青酱
来自 江苏省
精华 0
注册 2020-3-27
大家五一快乐
2020-5-1 10:46
40楼
[联宇电脑] 电脑组装\维修\升级\企业单位电脑维护!
只看该作者
分享本楼
柳色青青酱
来自 江苏省
精华 0
注册 2020-3-27
感觉不够用,特别是脑子,瓷砖直接手机敲定了,毕竟全包么,信任我的设计师
,今天溜了趟工地,等瓷砖进场了
[
本帖最后由 柳色青青酱 于 2020-5-1 10:53 编辑
]
2020-5-1 10:50
41楼
买房、卖房、租房上镇江房产网!
只看该作者
分享本楼
关亨木门
来自 江苏省
精华 0
注册 2010-5-8
行业 其它
2020-5-1 12:20
42楼
MY0511相亲,一分钟注册,享一辈子幸福!
只看该作者
分享本楼
柳色青青酱
来自 江苏省
精华 0
注册 2020-3-27
墙砖已经贴好了,工作迅速
[
本帖最后由 柳色青青酱 于 2020-5-9 09:07 编辑
]
2020-5-9 09:05
43楼
MY0511相亲,一分钟注册,享一辈子幸福!
只看该作者
分享本楼
返回家庭装修
快速回复主题
游客
您目前还是游客,请
登录
或
注册
您目前是游客,本帖已被系统设置了自动关闭,不可回复!
文明交流,理性发言
0/5000字
<
>
请在打开的新窗口中支付完成打赏
我已完成支付打赏
支付失败重新支付
其他金额
打赏金额:
元
确定
支付打赏
提 现
打赏人
打赏金额(元)
打赏时间
红居装饰
1.00
2020-4-20 14:48
镇江德尔地板
1.11
2020-4-21 22:48
Powered by
Discuz! X 2
0.085725 s
清除 Cookies
-
镇江网友之家
-
手机版
论坛导航
关闭
吃喝玩乐
饮食男女
镇江钓友之家
菜菜鸟户外
镇江单车俱乐部
镜头里的镇江
畅游天下
猫狗总动员
视觉Coffeeshop摄影部落
花鸟鱼虫
婚姻.亲子.家庭
家有学子
谈婚论嫁
女性天地
母婴乐园
婚姻生活
梦溪佳缘
装修
家庭装修
装修招标
镇江室内设计师交流
装修商家直通车
你好,镇江!
百姓话题
我要买房
0511爱心家园
市场监管•12315热线
分类信息
生活服务
闲置转让
镇江二手房/镇江租房
镇江招聘求职
教育培训
镇江二手车
商铺厂房写字楼租售
宠物市场
运动健身
卡券交易
电脑维修升级
杂货铺
其他分类信息区
兴趣爱好
HiFi音响江城沙龙
镇江市美术家协会
我爱模型
车友俱乐部
车迷之家
汽车驾培中心
运动俱乐部
镇江市冬泳、铁人三项协会
聚焦足球
镇江羽毛球
镇江乒乓球协会
镇江网球协会
镇江市自行车运动协会
热爱篮球
动力机车
合作栏目
维权热线
天翼时代
色觉影像摄影工作室
站务区
疑问与建议
网络问政
市政府工作部门
垂直管理部门
党群工作部门
其他重点单位
辖市(区)