| 标题
快捷导航

精彩推荐:MY0511客户端下载

    • 中信银行镇江分行

    • 公益体彩 乐善人生

    • 鹏龙鸿蒙

    • 天然石材·人造石

    » 梦溪论坛 » 家庭装修 » [2021万家基和装饰杯]姚庄——猫舍
    家庭装修  >  [装修日记] [2021万家基和装饰杯]姚庄——猫舍     
    查看: 36988  回复: 15
    [装修日记] [2021万家基和装饰杯]姚庄——猫舍      查看: 36988  回复: 15
    • 来自 江苏省
    • 精华 0
    • 注册 2019-8-25
    •  
    [2021万家基和装饰杯]姚庄——猫舍


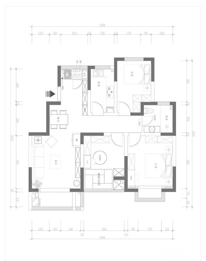
    小区名称】:姚庄

    【建筑面积】:100平

    【装修风格】:现代简约

    包工方式】:半包

    【装修公司】:江苏境远装饰

    【装修设计】:赵志斌

    【开工日期】:2021年3月6日




    [ 本帖最后由 my0511唐老鸭 于 2021-4-1 08:37 编辑 ]





                      
    • 来自 江苏省
    • 精华 0
    • 注册 2019-8-25
    •  
    姚庄——猫舍


    给我家猫主子的小窝开始动工啦!




    • 来自 江苏省
    • 精华 0
    • 注册 2016-8-15
    •  

    给猫买了一套房?




    • 来自 江苏省
    • 精华 0
    • 注册 2019-8-25
    •  






    • 来自 江苏省
    • 精华 0
    • 注册 2019-8-25
    •  
    姚庄——猫舍

    猫主人的窝窝开始拆除啦!








    [ 本帖最后由 wenjiu 于 2021-3-19 11:21 编辑 ]




    • 来自 江苏省
    • 精华 0
    • 注册 2016-10-20
    • 行业 其它
    •  

    这猫生好幸福啊




    • 来自 江苏省
    • 精华 0
    • 注册 2019-7-30
    •  

    开工大吉:clapping:




    • 来自 江苏省
    • 精华 0
    • 注册 2021-3-16
    •  

    活的不如猫




    • 来自 江苏省
    • 精华 0
    • 注册 2019-8-24
    •  

    我也养了两只美短,萌极了,回到家就撸猫




    • 来自 江苏省
    • 精华 0
    • 注册 2021-3-18
    •  

    期待哦




    • 来自 江苏省
    • 精华 0
    • 注册 2019-8-25
    •  
    姚庄——猫舍

    谢谢各位的祝福,也不是特意给猫的房子,猫猫是跟我们住在一起,只是为它们开辟一块地方,给它们生活游玩
    今天下雨,特意看了一下,师傅已经开始刷保护层了,这速度可以!





    • 来自 江苏省
    • 精华 0
    • 注册 2019-9-7
    • 行业 房产建筑
    •  






    • 来自 江苏省
    • 精华 0
    • 注册 2019-8-25
    •  

    马上水电了,设计师直接喊我到现场,把布局再确认一下,真的很用心,很负责。




    • 来自 江苏省
    • 精华 0
    • 注册 2019-8-25
    •  













    水电要好了




    • 来自 江苏省
    • 精华 0
    • 注册 2019-8-25
    •  

    很久没更新了,这段时间比较忙昨天特意去看了下工地,瓷砖上墙,师傅手艺真不错,而且贴完瓷砖干干净净的,赞一个














    • 来自 江苏省
    • 精华 0
    • 注册 2020-10-22
    •  

    姚庄舒苑?邻居啊,我家也在装修呢




    查看积分策略说明快速回复主题
    您目前还是游客,请 登录注册
    您目前是游客,本帖已被系统设置了自动关闭,不可回复!

    0/5000字

     
    < >
     

    Powered by Discuz! X 2 0.082410 s 清除 Cookies - 镇江网友之家 - 手机版
    论坛导航 关闭