| 标题
快捷导航

精彩推荐:MY0511客户端下载

    • 中信银行镇江分行

    • 公益体彩 乐善人生

    • 鹏龙鸿蒙

    • 天然石材·人造石

    » 梦溪论坛 » 家庭装修 » 所见略同——美式轻奢完工实景
    家庭装修  >  [完工毕业照] 所见略同——美式轻奢完工实景     
    查看: 32532  回复: 21
    [完工毕业照] 所见略同——美式轻奢完工实景      查看: 32532  回复: 21
    • 来自 江苏省
    • 精华 3
    • 注册 2013-8-6
    • 行业 IT 通信
    •  
    所见略同——美式轻奢完工实景


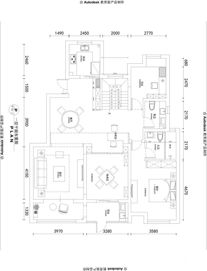
    户型信息

    项目地址:红星檀宫叠加

    项目面积:270㎡

    设计风格:美式轻奢

    设计施工:三鬼设计*三月装饰


    平面布置图


    户型方案解析

    有人说家还是简约风好舒适不张扬,

    也有人说美式类风格更温馨饱满一些,

    还有人说中式类更具显骨子里的情怀。

    而我觉得其实也都一样,

    不过每个人喜欢带着自己的偏见去看待一切,彼此碰撞后疏远又紧密相连,这样也才能有多样且丰富的生活方式。



    二楼卧室区域


    厨卫区域



    公司地址:镇江丁卯吾悦商业广场写字楼20栋912室

    联系电话:18094493399

    联系邮箱:【此处为站外链接,请谨慎打开】

    微信号码:18094493399(三鬼设计)


    如果你也想拥有这样一套品位与品质共存的案例

    请联系我们


    更多三鬼设计案例请点击:

    http://bbs.my0511.com/f1206b



    [ 本帖最后由 my0511唐老鸭 于 2021-4-6 09:23 编辑 ]





                      
    • 来自 江苏省
    • 精华 1
    • 注册 2019-8-30
    • 行业 房产建筑
    •  

    {:鼓掌:}{:鼓掌:}




    • 来自 江苏省
    • 精华 108
    • 注册 2017-10-9
    • 行业 房产建筑
    •  


    QUOTE:
    原帖由 镇江德尔地板 于 2021-4-6 22:02 发表
    谢谢关注




    • 来自 江苏省
    • 精华 6
    • 注册 2009-7-29
    • 行业 商业贸易
    •  

    漂亮 大片




    • 来自 江苏省
    • 精华 0
    • 注册 2015-6-25
    •  

    不丑,很大气。




    • 来自 江苏省
    • 精华 0
    • 注册 2009-7-2
    • 行业 其它
    •  

    设计和装修费用怎么算的?




    • 来自 浙江省
    • 精华 0
    • 注册 2006-10-27
    • 行业 基础设施
    •  

    *** 作者因违反论坛规定,禁言处理,内容自动屏蔽 ***

    详情参阅论坛注册条款:
    http://bbs.my0511.com/f11b-t2789156z


    • 来自 江苏省
    • 精华 108
    • 注册 2017-10-9
    • 行业 房产建筑
    •  


    QUOTE:
    原帖由 西门不庆 于 2021-4-7 10:13 发表
    漂亮 大片
    谢谢关注 支持哦




    • 来自 江苏省
    • 精华 108
    • 注册 2017-10-9
    • 行业 房产建筑
    •  


    QUOTE:
    原帖由 不喝茶会犯困 于 2021-4-7 10:34 发表
    不丑,很大气。
    谢谢  喜欢关注哦  具体微信详聊哦




    • 来自 江苏省
    • 精华 108
    • 注册 2017-10-9
    • 行业 房产建筑
    •  


    QUOTE:
    原帖由 小二哥 于 2021-4-7 15:17 发表
    设计和装修费用怎么算的?
    您好,已经私信您了哦 具体微信详聊哦




    • 来自 江苏省
    • 精华 108
    • 注册 2017-10-9
    • 行业 房产建筑
    •  


    QUOTE:
    原帖由 姿三四郎 于 2021-4-8 12:41 发表
    沙发什么品牌
    玛莎家具




    • 来自 江苏省
    • 精华 0
    • 注册 2016-5-8
    •  

    请问厨房橱柜是在哪里定制的?







    • 来自 江苏省
    • 精华 0
    • 注册 2016-5-8
    •  

    请问厨房橱柜是在哪里定制的?







    • 来自 江苏省
    • 精华 2
    • 注册 2004-8-12
    • 行业 广告媒体
    •  

    不错,我的房子要等几年后才装,能否短个落地价价格




    • 来自 江苏省
    • 精华 0
    • 注册 2016-6-22
    •  

    喜欢这种风格。完美大气!




    • 来自 江苏省
    • 精华 0
    • 注册 2005-11-2
    •  

    漂亮,喜欢这种风格,能否短个价格




    • 来自 江苏省
    • 精华 108
    • 注册 2017-10-9
    • 行业 房产建筑
    •  


    QUOTE:
    原帖由 兔子在奔跑 于 2021-4-9 11:32 发表
    请问厨房橱柜是在哪里定制的?
    详细微信咨询哦,不好涉嫌广告




    • 来自 江苏省
    • 精华 108
    • 注册 2017-10-9
    • 行业 房产建筑
    •  


    QUOTE:
    原帖由 兔子在奔跑 于 2021-4-9 11:34 发表
    请问厨房橱柜是在哪里定制的?
    微信详询哦,




    • 来自 江苏省
    • 精华 108
    • 注册 2017-10-9
    • 行业 房产建筑
    •  


    QUOTE:
    原帖由 jszjcm 于 2021-4-10 20:17 发表
    不错,我的房子要等几年后才装,能否短个落地价价格
    您好,详细请扫微信码,详询哦




    • 来自 江苏省
    • 精华 108
    • 注册 2017-10-9
    • 行业 房产建筑
    •  


    QUOTE:
    原帖由 颐颐高高 于 2021-4-14 09:31 发表
    喜欢这种风格。完美大气!
    谢谢,感谢




    • 来自 江苏省
    • 精华 108
    • 注册 2017-10-9
    • 行业 房产建筑
    •  


    QUOTE:
    原帖由 真真真真真 于 2021-4-15 17:59 发表
    漂亮,喜欢这种风格,能否短个价格
    具体微信详询哦




    • 来自 江苏省
    • 精华 1
    • 注册 2009-10-30
    • 行业 房产建筑
    •  

    [quote]原帖由 兔子在奔跑 于 2021-4-8 15:32 发表
    请问厨房橱柜是在哪里定制的?
    请微信细聊哦 不高广告啊




    查看积分策略说明快速回复主题
    您目前还是游客,请 登录注册
    您目前是游客,本帖已被系统设置了自动关闭,不可回复!

    0/5000字

     
    < >
     

    Powered by Discuz! X 2 0.037158 s 清除 Cookies - 镇江网友之家 - 手机版
    论坛导航 关闭