收藏本站
客户端
扫码下载客户端
官方微信
打开微信扫一扫
登录
|
注册
|
标题
标题
用户
全站首页
|
论坛导航
|
网络问政
|
招聘求职
|
买房租房
|
装修频道
|
生活服务
|
教育
|
相亲
|
亲子
|
美食
|
婚嫁
|
手机客户端
家有学子
|
母婴乐园
快捷导航
精彩推荐:
MY0511客户端下载
中信银行镇江分行
公益体彩 乐善人生
鹏龙鸿蒙
天然石材·人造石
»
梦溪论坛
»
家庭装修
» [2021万家基和装饰杯]装修日记
家庭装修
>
[装修日记]
[2021万家基和装饰杯]装修日记
查看: 29236 回复: 48
快速回复
返回家庭装修
[装修日记]
[2021万家基和装饰杯]装修日记
查看: 29236 回复: 48
上一主题
|
下一主题
张哲律
来自 江苏省
精华 0
注册 2013-9-14
[2021万家基和装饰杯]装修日记
2021年3月27日,开工大吉
[
本帖最后由 my0511唐老鸭 于 2021-4-6 09:04 编辑
]
---发自iPhone X---
已有 森香木门楼梯
1
人打赏
2021-4-4 15:08
1楼
找工作,就上MY0511!
只看该作者
分享本楼
张哲律
来自 江苏省
精华 0
注册 2013-9-14
目前土建阶段,敲墙…
---发自iPhone X---
2021-4-4 15:10
2楼
0511家装频道:本地家居服务平台,数万业主共同选择
只看该作者
分享本楼
张哲律
来自 江苏省
精华 0
注册 2013-9-14
面目全非,一片狼藉
---发自iPhone X---
2021-4-4 15:11
3楼
[联宇电脑] 电脑组装\维修\升级\企业单位电脑维护!
只看该作者
分享本楼
漫游镇江
来自 陕西省
精华 0
注册 2017-7-7
这是装修吗?拆了重新建设吧?
---发自iPhone 8---
2021-4-4 16:05
4楼
MY0511相亲,一分钟注册,享一辈子幸福!
只看该作者
分享本楼
伊慕装饰
专版版主
来自 江苏省
精华 0
注册 2014-10-16
欢迎新同学
2021-4-4 16:07
5楼
0511家装频道:本地家居服务平台,数万业主共同选择
只看该作者
分享本楼
1+1等于爱
来自 江苏省
精华 0
注册 2016-3-21
真能敲
---发自梦溪论坛手机客户端---
2021-4-4 17:48
6楼
0511家装频道:本地家居服务平台,数万业主共同选择
只看该作者
分享本楼
素颜如水@
来自 江苏省
精华 0
注册 2018-6-7
期待下次更新
---发自vivo---
2021-4-5 13:33
7楼
MY0511相亲,一分钟注册,享一辈子幸福!
只看该作者
分享本楼
镇江风尚大宅
来自 江苏省
精华
87
注册 2017-9-7
2021-4-5 13:48
8楼
MY0511相亲,一分钟注册,享一辈子幸福!
只看该作者
分享本楼
镇江德国都芳漆
来自 江苏省
精华 0
注册 2014-5-17
行业 商业贸易
---发自华为---
2021-4-5 22:09
9楼
[联宇电脑] 电脑组装\维修\升级\企业单位电脑维护!
只看该作者
分享本楼
张哲律
来自 江苏省
精华 0
注册 2013-9-14
---发自iPhone X---
2021-4-6 12:47
10楼
0511家装频道:本地家居服务平台,数万业主共同选择
只看该作者
分享本楼
张哲律
来自 江苏省
精华 0
注册 2013-9-14
楼梯终于要拆完了
---发自iPhone X---
2021-4-6 12:47
11楼
买房、卖房、租房上镇江房产网!
只看该作者
分享本楼
芬驰水管
来自 江苏省
精华 0
注册 2018-4-27
行业 基础设施
恭喜开工
---发自梦溪论坛手机客户端---
2021-4-6 12:49
12楼
找工作,就上MY0511!
只看该作者
分享本楼
张哲律
来自 江苏省
精华 0
注册 2013-9-14
QUOTE:
原帖由
漫游镇江
于 2021-4-4 16:05 发表
这是装修吗?拆了重新建设吧?
土建动的比较大
---发自iPhone X---
2021-4-6 13:38
13楼
[联宇电脑] 电脑组装\维修\升级\企业单位电脑维护!
只看该作者
分享本楼
张哲律
来自 江苏省
精华 0
注册 2013-9-14
QUOTE:
原帖由 于 2021-4-5 09:06 发表
准备装中央空调和地暖,还没看
[
本帖最后由 my0511唐老鸭 于 2021-4-6 13:42 编辑
]
---发自iPhone X---
2021-4-6 13:39
14楼
[联宇电脑] 电脑组装\维修\升级\企业单位电脑维护!
只看该作者
分享本楼
张哲律
来自 江苏省
精华 0
注册 2013-9-14
QUOTE:
原帖由于 2021-4-5 10:15 发表
肯定要门窗的,土建做完去看
[
本帖最后由 my0511唐老鸭 于 2021-4-6 13:42 编辑
]
---发自iPhone X---
2021-4-6 13:41
15楼
[联宇电脑] 电脑组装\维修\升级\企业单位电脑维护!
只看该作者
分享本楼
张哲律
来自 江苏省
精华 0
注册 2013-9-14
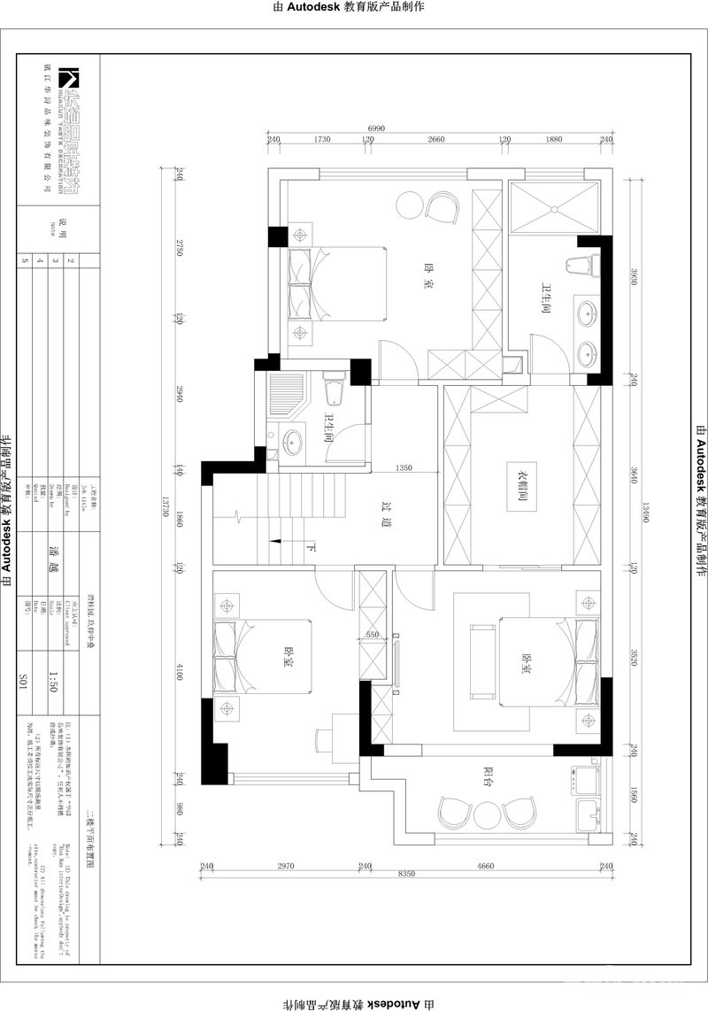
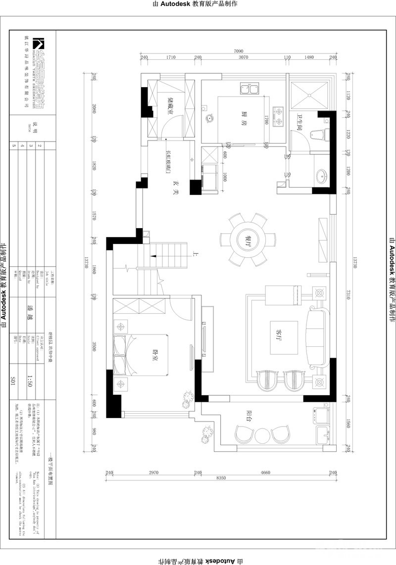
功能规划
---发自iPhone X---
2021-4-6 13:45
16楼
买房、卖房、租房上镇江房产网!
只看该作者
分享本楼
镇江德尔地板
专版版主
来自 江苏省
精华
1
注册 2019-8-30
行业 房产建筑
---发自iPhone 6---
2021-4-6 22:00
17楼
[联宇电脑] 电脑组装\维修\升级\企业单位电脑维护!
只看该作者
分享本楼
森达木业
来自 江苏省
精华 0
注册 2020-3-27
2021-4-7 10:23
18楼
找工作,就上MY0511!
只看该作者
分享本楼
张哲律
来自 江苏省
精华 0
注册 2013-9-14
市场上做封阳台门窗的真的太多了,砌墙现浇还没开始,已经有十几个做窗户的联系我了,又贵有便宜,一窍不通,头西昏,慢慢比较,慢慢了解吧…
---发自iPhone X---
2021-4-8 17:05
19楼
0511家装频道:本地家居服务平台,数万业主共同选择
只看该作者
分享本楼
张哲律
来自 江苏省
精华 0
注册 2013-9-14
水泥 黄沙 石子进场
---发自iPhone X---
2021-4-9 15:27
20楼
买房、卖房、租房上镇江房产网!
只看该作者
分享本楼
张哲律
来自 江苏省
精华 0
注册 2013-9-14
楼梯方案就这么定了吧
---发自iPhone X---
2021-4-9 15:28
21楼
找工作,就上MY0511!
只看该作者
分享本楼
张哲律
来自 江苏省
精华 0
注册 2013-9-14
房间效果图
---发自iPhone X---
2021-4-9 15:31
22楼
找工作,就上MY0511!
只看该作者
分享本楼
张哲律
来自 江苏省
精华 0
注册 2013-9-14
现浇列模
---发自iPhone X---
2021-4-12 16:27
23楼
[联宇电脑] 电脑组装\维修\升级\企业单位电脑维护!
只看该作者
分享本楼
张哲律
来自 江苏省
精华 0
注册 2013-9-14
目前头疼,天然气管道在阳台里面,没法封阳台…已打12345,等相关部门回复
---发自iPhone X---
2021-4-13 14:28
24楼
MY0511相亲,一分钟注册,享一辈子幸福!
只看该作者
分享本楼
张哲律
来自 江苏省
精华 0
注册 2013-9-14
今日,现浇扎钢筋
---发自iPhone X---
2021-4-14 16:54
25楼
0511家装频道:本地家居服务平台,数万业主共同选择
只看该作者
分享本楼
张哲律
来自 江苏省
精华 0
注册 2013-9-14
---发自iPhone X---
2021-4-14 16:55
26楼
0511家装频道:本地家居服务平台,数万业主共同选择
只看该作者
分享本楼
张哲律
来自 江苏省
精华 0
注册 2013-9-14
楼梯,房间,现浇做好了,浇水…
---发自iPhone X---
2021-4-16 10:50
27楼
找工作,就上MY0511!
只看该作者
分享本楼
as571832718
来自 江苏省
精华 0
注册 2015-12-12
行业 工业制造
恭喜开工
2021-4-21 09:57
28楼
找工作,就上MY0511!
只看该作者
分享本楼
佰丽爱家
来自 江苏省
精华 0
注册 2019-4-8
行业 其它
恭喜开工
---发自iPhone 11---
2021-4-21 11:22
29楼
买房、卖房、租房上镇江房产网!
只看该作者
分享本楼
张哲律
来自 江苏省
精华 0
注册 2013-9-14
砌墙…
---发自iPhone X---
2021-4-22 18:09
30楼
[联宇电脑] 电脑组装\维修\升级\企业单位电脑维护!
只看该作者
分享本楼
张哲律
来自 江苏省
精华 0
注册 2013-9-14
纠结了很久的门窗终于也订了
---发自iPhone X---
2021-4-22 18:10
31楼
[联宇电脑] 电脑组装\维修\升级\企业单位电脑维护!
只看该作者
分享本楼
张哲律
来自 江苏省
精华 0
注册 2013-9-14
下一步,看橱柜,地暖 中央空调 新风系统 瓷砖
---发自iPhone X---
2021-4-22 18:11
32楼
找工作,就上MY0511!
只看该作者
分享本楼
欧睿宇邦橱柜
来自 江苏省
精华 0
注册 2019-5-18
---发自OPPO---
2021-4-23 14:50
33楼
找工作,就上MY0511!
只看该作者
分享本楼
张哲律
来自 江苏省
精华 0
注册 2013-9-14
谁家买房子阳台不封,天然气管道直接插在阳台中间,燃气公司的设计简直丧心病狂…
---发自iPhone X---
2021-4-24 17:02
34楼
找工作,就上MY0511!
只看该作者
分享本楼
森香木门楼梯
来自 江苏省
精华 0
注册 2018-4-17
恭喜开工
---发自iPhone XR---
2021-4-24 23:20
35楼
买房、卖房、租房上镇江房产网!
只看该作者
分享本楼
张哲律
来自 江苏省
精华 0
注册 2013-9-14
---发自iPhone X---
2021-4-26 13:26
36楼
0511家装频道:本地家居服务平台,数万业主共同选择
只看该作者
分享本楼
张哲律
来自 江苏省
精华 0
注册 2013-9-14
选橱柜真的是一件头大的事…
---发自iPhone X---
2021-4-27 19:38
37楼
找工作,就上MY0511!
只看该作者
分享本楼
张哲律
来自 江苏省
精华 0
注册 2013-9-14
停工两天了,有点拖…
---发自iPhone X---
2021-4-29 20:44
38楼
找工作,就上MY0511!
只看该作者
分享本楼
张哲律
来自 江苏省
精华 0
注册 2013-9-14
---发自iPhone X---
2021-4-29 20:45
39楼
0511家装频道:本地家居服务平台,数万业主共同选择
只看该作者
分享本楼
张哲律
来自 江苏省
精华 0
注册 2013-9-14
工期停工三天,原本以为三天把砌墙结束,没想到还是有个尾巴没完成,加上五一放假五天,一起停工八天了…五一过后,水电进场…
---发自iPhone X---
2021-4-30 16:39
40楼
[联宇电脑] 电脑组装\维修\升级\企业单位电脑维护!
只看该作者
分享本楼
张哲律
来自 江苏省
精华 0
注册 2013-9-14
---发自iPhone X---
2021-4-30 16:40
41楼
找工作,就上MY0511!
只看该作者
分享本楼
镇江风尚大宅
来自 江苏省
精华
87
注册 2017-9-7
---发自iPhone 6---
2021-4-30 19:43
42楼
MY0511相亲,一分钟注册,享一辈子幸福!
只看该作者
分享本楼
张哲律
来自 江苏省
精华 0
注册 2013-9-14
五一过后,继续停工两天,原因天然气管道挡着一面墙,水电没法施工
---发自iPhone X---
2021-5-7 22:18
43楼
0511家装频道:本地家居服务平台,数万业主共同选择
只看该作者
分享本楼
张哲律
来自 江苏省
精华 0
注册 2013-9-14
拆模块,下一步水电
---发自iPhone X---
2021-5-10 22:11
44楼
0511家装频道:本地家居服务平台,数万业主共同选择
只看该作者
分享本楼
张哲律
来自 江苏省
精华 0
注册 2013-9-14
停工16天,真特么无语…
---发自iPhone X---
2021-5-13 12:29
45楼
0511家装频道:本地家居服务平台,数万业主共同选择
只看该作者
分享本楼
张哲律
来自 江苏省
精华 0
注册 2013-9-14
换了项目经理,工地还是拖拖拉拉…大公司就是忙,一百多家工地要施工,根本就顾不上你家…
---发自iPhone X---
2021-5-20 09:48
46楼
0511家装频道:本地家居服务平台,数万业主共同选择
只看该作者
分享本楼
张哲律
来自 江苏省
精华 0
注册 2013-9-14
一星期,水电定位,弹个线,坐等开槽…
---发自iPhone X---
2021-5-20 09:49
47楼
MY0511相亲,一分钟注册,享一辈子幸福!
只看该作者
分享本楼
张哲律
来自 江苏省
精华 0
注册 2013-9-14
橱柜效果图
---发自iPhone X---
2021-6-7 17:59
48楼
0511家装频道:本地家居服务平台,数万业主共同选择
只看该作者
分享本楼
小番茄CJ
来自 江苏省
精华 0
注册 2017-8-6
恭喜开工大吉
---发自iPhone XR---
2021-6-9 17:27
49楼
0511家装频道:本地家居服务平台,数万业主共同选择
只看该作者
分享本楼
返回家庭装修
快速回复主题
游客
您目前还是游客,请
登录
或
注册
您目前是游客,本帖已被系统设置了自动关闭,不可回复!
文明交流,理性发言
0/5000字
<
>
请在打开的新窗口中支付完成打赏
我已完成支付打赏
支付失败重新支付
其他金额
打赏金额:
元
确定
支付打赏
提 现
打赏人
打赏金额(元)
打赏时间
森香木门楼梯
1.11
2021-4-25 08:24
Powered by
Discuz! X 2
0.066715 s
清除 Cookies
-
镇江网友之家
-
手机版
论坛导航
关闭
吃喝玩乐
饮食男女
镇江钓友之家
菜菜鸟户外
镇江单车俱乐部
镜头里的镇江
畅游天下
猫狗总动员
视觉Coffeeshop摄影部落
花鸟鱼虫
婚姻.亲子.家庭
家有学子
谈婚论嫁
女性天地
母婴乐园
婚姻生活
梦溪佳缘
装修
家庭装修
装修招标
镇江室内设计师交流
装修商家直通车
你好,镇江!
百姓话题
我要买房
0511爱心家园
市场监管•12315热线
分类信息
生活服务
闲置转让
镇江二手房/镇江租房
镇江招聘求职
教育培训
镇江二手车
商铺厂房写字楼租售
宠物市场
运动健身
卡券交易
电脑维修升级
杂货铺
其他分类信息区
兴趣爱好
HiFi音响江城沙龙
镇江市美术家协会
我爱模型
车友俱乐部
车迷之家
汽车驾培中心
运动俱乐部
镇江市冬泳、铁人三项协会
聚焦足球
镇江羽毛球
镇江乒乓球协会
镇江网球协会
镇江市自行车运动协会
热爱篮球
动力机车
合作栏目
维权热线
天翼时代
色觉影像摄影工作室
站务区
疑问与建议
网络问政
市政府工作部门
垂直管理部门
党群工作部门
其他重点单位
辖市(区)