收藏本站
客户端
扫码下载客户端
官方微信
打开微信扫一扫
登录
|
注册
|
标题
标题
用户
全站首页
|
论坛导航
|
网络问政
|
招聘求职
|
买房租房
|
装修频道
|
生活服务
|
教育
|
相亲
|
亲子
|
美食
|
婚嫁
|
手机客户端
家有学子
|
母婴乐园
快捷导航
精彩推荐:
MY0511客户端下载
中信银行镇江分行
公益体彩 乐善人生
鹏龙鸿蒙
天然石材·人造石
»
梦溪论坛
»
家庭装修
» 装修日记
家庭装修
>
[装修日记]
装修日记
查看: 15024 回复: 26
快速回复
返回家庭装修
[装修日记]
装修日记
查看: 15024 回复: 26
上一主题
|
下一主题
nade
来自 江苏省
精华 0
注册 2018-9-9
装修日记
【小区名称】:象山花园
【所在楼层】:12
【建筑面积】:125
【装修风格】:现代简约
【包工方式】:半包
【装修公司】:风尚大宅
【开工日期】:2022年4月26日
---发自iPhone 11---
已有
0
人打赏
2022-5-15 15:11
1楼
[联宇电脑] 电脑组装\维修\升级\企业单位电脑维护!
只看该作者
分享本楼
nade
来自 江苏省
精华 0
注册 2018-9-9
本来不想写装修日记的,我老公说我反正闲着也是闲着,找个事情做做,顺便记录一下,以后自己看还方便
---发自iPhone 11---
2022-5-15 15:12
2楼
MY0511相亲,一分钟注册,享一辈子幸福!
只看该作者
分享本楼
nade
来自 江苏省
精华 0
注册 2018-9-9
去选房子的时候就收到了好多名片,还加了好多微信,没多少朋友的微信一下多了好多人。但是,我不喜欢主动找我推销的,我喜欢自己找的,就算万一以后被坑了,也是自己找的,所以一拿到房子自己就找了好几家装潢公司比较比较
---发自iPhone 11---
2022-5-15 15:18
3楼
0511家装频道:本地家居服务平台,数万业主共同选择
只看该作者
分享本楼
nade
来自 江苏省
精华 0
注册 2018-9-9
装潢公司一开始我选了伊慕和老友记,最后两家都没选,觉得特别不好意思,伊慕的高工和老友记的宋工为我家跑前跑后,最后我谁都没定
---发自iPhone 11---
2022-5-15 15:23
4楼
MY0511相亲,一分钟注册,享一辈子幸福!
只看该作者
分享本楼
XPLWJ
来自 江苏省
精华 0
注册 2005-6-10
恭喜开工,装友加油!
---发自vivo---
2022-5-15 15:24
5楼
0511家装频道:本地家居服务平台,数万业主共同选择
只看该作者
分享本楼
nade
来自 江苏省
精华 0
注册 2018-9-9
我们选择风尚大宅是个偶然啊,一开始抱着我肯定不会选他家,他家太贵了的心态去看设计方案,谁知道李老师的设计方案我和我爸觉得都不错,比较适合我们,然后心里就默默的想着怎么和装潢公司讨价还价了
---发自iPhone 11---
2022-5-15 15:26
6楼
0511家装频道:本地家居服务平台,数万业主共同选择
只看该作者
分享本楼
nade
来自 江苏省
精华 0
注册 2018-9-9
QUOTE:
原帖由
XPLWJ
于 2022-5-15 15:24 发表
恭喜开工,装友加油!
谢谢
---发自iPhone 11---
2022-5-15 15:29
7楼
MY0511相亲,一分钟注册,享一辈子幸福!
只看该作者
分享本楼
nade
来自 江苏省
精华 0
注册 2018-9-9
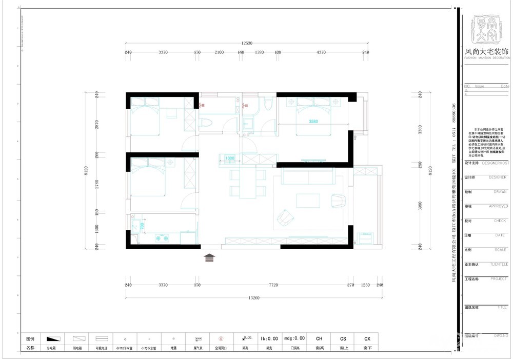
盗个图
---发自iPhone 11---
2022-5-15 15:29
8楼
0511家装频道:本地家居服务平台,数万业主共同选择
只看该作者
分享本楼
伊慕装饰
专版版主
来自 江苏省
精华 0
注册 2014-10-16
欢迎新同学
2022-5-15 15:32
9楼
MY0511相亲,一分钟注册,享一辈子幸福!
只看该作者
分享本楼
nade
来自 江苏省
精华 0
注册 2018-9-9
前期拆墙铲墙灰特大,我都没拍照片,只能用装修群里的照片应付应付了
---发自iPhone 11---
2022-5-15 15:33
10楼
MY0511相亲,一分钟注册,享一辈子幸福!
只看该作者
分享本楼
nade
来自 江苏省
精华 0
注册 2018-9-9
---发自iPhone 11---
2022-5-15 15:33
11楼
找工作,就上MY0511!
只看该作者
分享本楼
nade
来自 江苏省
精华 0
注册 2018-9-9
QUOTE:
原帖由
伊慕装饰
于 2022-5-15 15:32 发表
欢迎新同学
谢谢谢谢,高工人特好,最后没选你家很抱歉,希望以后有机会能合作
---发自iPhone 11---
2022-5-15 15:38
12楼
[联宇电脑] 电脑组装\维修\升级\企业单位电脑维护!
只看该作者
分享本楼
茆嘉鑫
来自 福建省
精华
1
注册 2015-4-11
留
---发自荣耀---
2022-5-15 23:31
13楼
MY0511相亲,一分钟注册,享一辈子幸福!
只看该作者
分享本楼
nade
来自 江苏省
精华 0
注册 2018-9-9
我们家一开始就不太顺利,开工的时候电梯好巧不巧的就坏了,项目经理拎着凳子哼次哼次的爬了12楼
---发自iPhone 11---
2022-5-16 12:44
14楼
[联宇电脑] 电脑组装\维修\升级\企业单位电脑维护!
只看该作者
分享本楼
nade
来自 江苏省
精华 0
注册 2018-9-9
水电完工的照片
---发自iPhone 11---
2022-5-16 12:46
15楼
[联宇电脑] 电脑组装\维修\升级\企业单位电脑维护!
只看该作者
分享本楼
nade
来自 江苏省
精华 0
注册 2018-9-9
电线是金貂的,水管是拓乐的
---发自iPhone 11---
2022-5-16 12:51
16楼
MY0511相亲,一分钟注册,享一辈子幸福!
只看该作者
分享本楼
nade
来自 江苏省
精华 0
注册 2018-9-9
空气开关我买的施耐德的a9系列,在金之桥装饰城一家写着大大的德力西几个字红颜色的门头的那家店买的,这家店真是坑,我买的那天给老板看了我要的几个型号,付了钱,叫我第二天早上去拿,原因是施耐德太贵了他不备货。
---发自iPhone 11---
2022-5-16 12:56
17楼
找工作,就上MY0511!
只看该作者
分享本楼
nade
来自 江苏省
精华 0
注册 2018-9-9
第二天我去拿了之后给电工送过去。再之后电工装的时候发现老板发的不对,发错型号了,叫我拿去换,然后电工就是干等我一下午
---发自iPhone 11---
2022-5-16 13:00
18楼
0511家装频道:本地家居服务平台,数万业主共同选择
只看该作者
分享本楼
nade
来自 江苏省
精华 0
注册 2018-9-9
---发自iPhone 11---
2022-5-16 13:00
19楼
买房、卖房、租房上镇江房产网!
只看该作者
分享本楼
nade
来自 江苏省
精华 0
注册 2018-9-9
我联系老板,我打电话给他说明情况,他觉得不可思议,他是专业的不会犯这种错误,叫我拍照片给他,我就联系项目经理,项目经理联系电工叫他拍照。我把照片发给老板,老板说我拍的不清楚,叫我把正面拍给他看看,我就又联系项目经理,以此往复
---发自iPhone 11---
2022-5-16 13:07
20楼
MY0511相亲,一分钟注册,享一辈子幸福!
只看该作者
分享本楼
nade
来自 江苏省
精华 0
注册 2018-9-9
---发自iPhone 11---
2022-5-16 13:13
21楼
买房、卖房、租房上镇江房产网!
只看该作者
分享本楼
nade
来自 江苏省
精华 0
注册 2018-9-9
没办法只能哼次哼次先去房子拿发错的空气开关,第三天一大早去金之桥换。最奇葩的是我一大早去换老板还是给我发错货了,心里一千只草泥马,就空气开关这么小小的十几个分不清吗,老板叫我第四天早上来拿,顺便还要加50块钱
---发自iPhone 11---
2022-5-16 13:17
22楼
[联宇电脑] 电脑组装\维修\升级\企业单位电脑维护!
只看该作者
分享本楼
nade
来自 江苏省
精华 0
注册 2018-9-9
第四天一大早终于如愿换到了空气开关,老板还跟我叫苦他邮费都花了多少多少钱啦,叫我补50块钱给他,一大早的我头都晕最后补了40给他。如大家有需要买空气开关的,避个坑吧
---发自iPhone 11---
2022-5-16 13:20
23楼
0511家装频道:本地家居服务平台,数万业主共同选择
只看该作者
分享本楼
镇江风尚大宅
来自 江苏省
精华
87
注册 2017-9-7
开工大吉
---发自iPhone 6---
2022-5-16 21:52
24楼
[联宇电脑] 电脑组装\维修\升级\企业单位电脑维护!
只看该作者
分享本楼
关亨木门
来自 江苏省
精华 0
注册 2010-5-8
行业 其它
2022-5-17 10:49
25楼
0511家装频道:本地家居服务平台,数万业主共同选择
只看该作者
分享本楼
沃斯卡门窗
来自 江苏省
精华 0
注册 2021-12-5
2022-5-17 13:13
26楼
买房、卖房、租房上镇江房产网!
只看该作者
分享本楼
镇江德国都芳漆
来自 江苏省
精华 0
注册 2014-5-17
行业 商业贸易
---发自华为---
2022-5-18 07:04
27楼
MY0511相亲,一分钟注册,享一辈子幸福!
只看该作者
分享本楼
返回家庭装修
快速回复主题
游客
您目前还是游客,请
登录
或
注册
您目前是游客,本帖已被系统设置了自动关闭,不可回复!
文明交流,理性发言
0/5000字
<
>
请在打开的新窗口中支付完成打赏
我已完成支付打赏
支付失败重新支付
其他金额
打赏金额:
元
确定
支付打赏
提 现
打赏人
打赏金额(元)
打赏时间
Powered by
Discuz! X 2
0.101164 s
清除 Cookies
-
镇江网友之家
-
手机版
论坛导航
关闭
吃喝玩乐
饮食男女
镇江钓友之家
菜菜鸟户外
镇江单车俱乐部
镜头里的镇江
畅游天下
猫狗总动员
视觉Coffeeshop摄影部落
花鸟鱼虫
婚姻.亲子.家庭
家有学子
谈婚论嫁
女性天地
母婴乐园
婚姻生活
梦溪佳缘
装修
家庭装修
装修招标
镇江室内设计师交流
装修商家直通车
你好,镇江!
百姓话题
我要买房
0511爱心家园
市场监管•12315热线
分类信息
生活服务
闲置转让
镇江二手房/镇江租房
镇江招聘求职
教育培训
镇江二手车
商铺厂房写字楼租售
宠物市场
运动健身
卡券交易
电脑维修升级
杂货铺
兴趣爱好
HiFi音响江城沙龙
镇江市美术家协会
我爱模型
车友俱乐部
车迷之家
汽车驾培中心
运动俱乐部
镇江市冬泳、铁人三项协会
聚焦足球
镇江羽毛球
镇江乒乓球协会
镇江网球协会
镇江市自行车运动协会
热爱篮球
动力机车
合作栏目
维权热线
天翼时代
色觉影像摄影工作室
站务区
疑问与建议
网络问政
市政府工作部门
垂直管理部门
党群工作部门
其他重点单位
辖市(区)