对于第一套自己参与装修的房子,我深知自己在装修的路上还是小白,所以从装修开始自己将大部分精力用于了自身擅长的IT领域,此贴主要是将自己装修的理念和配套的设计进行落地,欢迎大家一起交流讨论。
标题为什么提到极客:极客是美国俚语Geek音标[ɡiːk]的音译。随着互联网文化的兴起,这个词含有智力超群和努力的意思,又被用于形容对计算机和网络技术有狂热兴趣并投入大量时间钻研的人。现代的Geek含义虽然与过去有所不同,但大多仍相似,Geek更多是指在互联网时代创造全新的商业模式、尖端技术与时尚潮流的人(百度词条)。很显然自己的水平还够不上“极客”的标签,但是自己平时喜欢对感兴趣的事物研究到极致,恰恰自己研究的领域涉及到IT居多,同时自己又有着一股钻研的劲,暂且以“极客”自称,还请各位前辈多多指教。

为什么加入极客文化:之前看过苹果流媒体自制剧《基地》:改编自一部旷世科幻巨著,叙述了一段跨越多个银河的千年史诗,故事的开始主角二人被帝国流放,达到了外围星域端点星,在那里他们重建人类文明,后人称其为《基地》。自己当时就被其所描绘的宏伟世界观所吸引,基地不光是人类智慧的殿堂也是自我救赎的摇篮,既神圣又悲壮。自己在装修房屋时就在思考,如何让新家也能成为自己和家人的精神基地,承载自己和家人生活点滴的同时带给所有人快乐。于是在家人的理解和支持下,我将极客文化加了进来。
装修理念:装修再高的颜值也会过时,带给我和家人情感上的互动才是永恒,这个家既承载了家人的回忆也为来客呈现丰富的多功能性,具备会客交友的属性,这样的家既安静又欢乐。
对于智能家居的理解: (1)Matter协议的问世
话不多说进入正题,装修主要分成5大块介绍:
1.网络方案
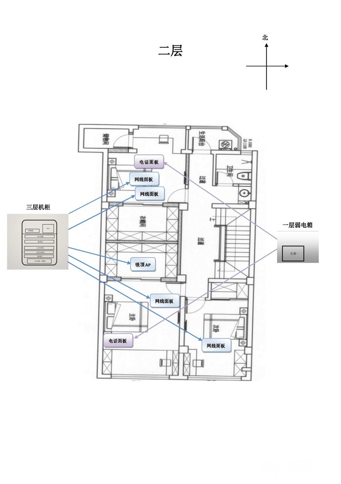
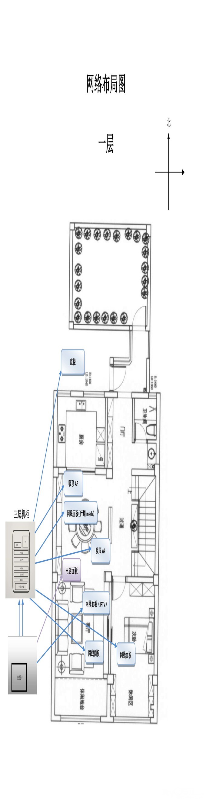
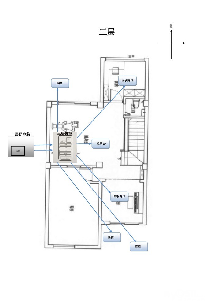
(1)家庭网络机柜中枢(unifi全家桶室内与室外5G wifi6高速覆盖)
(2)智能入户系统(nest门铃与eufy门锁)
(3)智能中控与跃层传呼系统(智能hub与墙充)
(4)智能监控系统(Unifi与家庭nas)
(5)HomeAssistant搭建(长期更新)
2.娱乐方案
(3)家庭无线串流(手机、平板、电脑、电视、音箱、xbox互串)
(4)家庭Emby与infuse媒体库(万部电影)
(5)室外观影棚与智慧投影(半永久帐篷)
(6)室外烤炉与移动泳池
3.全屋净水方案
4.全屋温控方案
(1)中央空调与远程控制
5.细节设计等
(1)嵌入式轨道插座
(2)水吧台暗管(管线机)
(3)“骊住”水槽与kvk水龙头系列
(4)台面无下挂无挡水条,门板加长
(5)入户廊厅流水线性灯,餐厅阴角线性灯
(6)预埋无边出风口
[ 本帖最后由 real1player 于 2024-4-19 16:52 编辑 ]











































































理工男的装修贴,看不懂也觉得很牛的样子

















