| 标题
快捷导航

精彩推荐:MY0511客户端下载

    • 中信银行镇江分行

    • 公益体彩 乐善人生

    • 鹏龙鸿蒙

    • 天然石材·人造石

    » 梦溪论坛 » 家庭装修 » 冲动消费-“惊喜”不断的装修之路
    家庭装修  >  [装修日记] 冲动消费-“惊喜”不断的装修之路     
    查看: 14956  回复: 22
    [装修日记] 冲动消费-“惊喜”不断的装修之路      查看: 14956  回复: 22
    • 来自 江苏省
    • 精华 0
    • 注册 2011-5-31
    • 行业 其它
    •  
    冲动消费-“惊喜”不断的装修之路

    百感交集……

            如果在原先没有接到这么多“惊喜”的情况下,我肯定会抱有满怀憧憬,无限期待自己的改善住房能一步步落地实现。

            可是,从买房到收房,一年多的时间里经历了很多很多让人心累,无可奈何,令人发指的事情。心态已崩,憧憬破灭,但还是要继续向前~

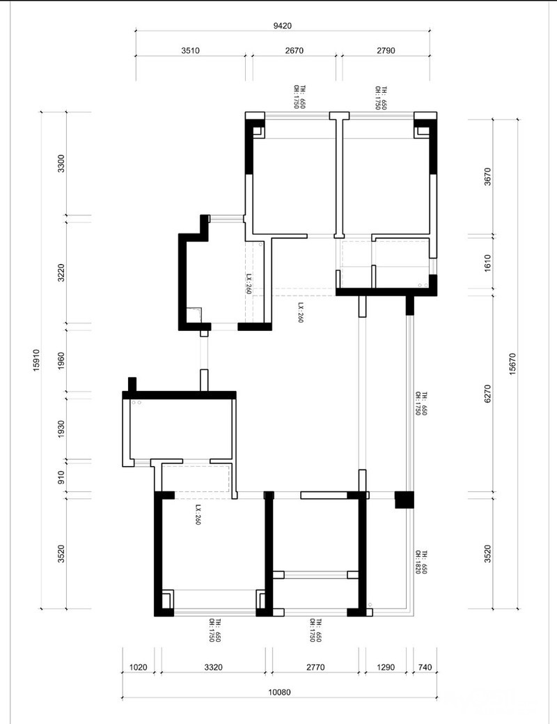
            先放一张户型图镇楼吧。
            这个奇葩的户型,奇葩的水池承重墙以及奇葩厨房承重墙,还有不足够的客厅长度,导致原先的设计方案几乎要推翻重做,开工延期……






                      
    • 来自 江苏省
    • 精华 0
    • 注册 2011-5-31
    • 行业 其它
    •  
    • 来自 江苏省
    • 精华 0
    • 注册 2011-5-31
    • 行业 其它
    •  
    • 来自 江苏省
    • 精华 0
    • 注册 2011-5-31
    • 行业 其它
    •  
    • 来自 江苏省
    • 精华 0
    • 注册 2018-9-23
    •  

    买房子为啥买这么奇葩的户型呢?买之前不是都能看到图




    • 来自 江苏省
    • 精华 108
    • 注册 2015-11-2
    •  

    尚书房153户型吧




    • 来自 江苏省
    • 精华 0
    • 注册 2019-10-28
    •  

    全是豆腐块




    • 来自 江苏省
    • 精华 0
    • 注册 2011-5-31
    • 行业 其它
    •  

    原先看中这套房子完全是因为样板间的洗脑。南北各两个卧室,四叶草/飞机户型,还有现在流行的横厅,非常洋气。想着万一以后老的要跟着一起生活,在空间上也能满足。
            在没拿到实际户型图的时候,只有厨房半边墙是承重,通过调整,也可以合理利用起来,平面布局如下。




    • 来自 江苏省
    • 精华 0
    • 注册 2011-5-31
    • 行业 其它
    •  


    QUOTE:
    原帖由 华飞装饰客服 于 2023-7-14 12:52 发表
    尚书房153户型吧
    是的




    • 来自 江苏省
    • 精华 0
    • 注册 2021-8-7
    •  

    没什么过道空间浪费,设计还挺重要




    • 来自 江苏省
    • 精华 0
    • 注册 2018-10-22
    •  

    153的户型,3个房间宽只有2米67,再装修,床2米2,哎,想想都狭窄




    • 来自 江苏省
    • 精华 0
    • 注册 2005-6-10
    •  


    QUOTE:
    原帖由 苏小小婉 于 2023-7-15 16:56 发表
    原先看中这套房子完全是因为样板间的洗脑。南北各两个卧室,四叶草/飞机户型,还有现在流行的横厅,非常洋气。想着万一以后老的要跟着一起生活,在空间上也能满足。
            在没拿到实际户型图的时候,只有厨房半 ...
    样板间家具,床都是定制的,尺寸要比正常的小一号!




    • 来自 北京
    • 精华 0
    • 注册 2021-2-28
    •  


    QUOTE:
    原帖由 ydygq8 于 2023-7-16 11:07 发表
    153的户型,3个房间宽只有2米67,再装修,床2米2,哎,想想都狭窄
    2米67,感觉床尾的墙上即使不安装电视,走路过去都窄得不行了觉得宽度至少得2米8吧




    • 来自 江苏省
    • 精华 1
    • 注册 2003-9-29
    • 行业 其它
    •  

    当初买房子的时候也去看了,和楼主一模一样户型,当时就觉得户型布局奇怪




    • 来自 江苏省
    • 精华 0
    • 注册 2016-1-28
    •  

    多少钱一平




    • 来自 江苏省
    • 精华 0
    • 注册 2017-11-2
    •  

    自己选的户型,含着泪也要装完




    • 来自 江苏省
    • 精华 7
    • 注册 2009-8-28
    • 行业 房产建筑
    •  

    我做了个这个户型的设计很好看。我自己非常喜欢




    • 来自 江苏省
    • 精华 7
    • 注册 2009-8-28
    • 行业 房产建筑
    •  

    我也做了个这个户型的方案 我自己非常喜欢




    • 来自 江苏省
    • 精华 0
    • 注册 2011-5-31
    • 行业 其它
    •  


    QUOTE:
    原帖由 山林隐者 于 2023-7-17 09:11 发表
    自己选的户型,含着泪也要装完
    你说的没错




    • 来自 江苏省
    • 精华 0
    • 注册 2011-5-31
    • 行业 其它
    •  

    聊一聊装修设想的心路历程吧~

    买了房子后,没想到还在论坛上找到了业主群。虽然我的房子要第二批才能交付,但丝毫不影响我积极参与和第一批交付业主的各种话题的讨论。最让人心痒痒的无非就是拿到房后如何如何装修,大家在里面畅所欲言,尤其是一位邻居,在拿房前已经定好装修公司,确定了装修方案,出了效果图,连各种主材都定得差不多了。

    我跟老公一合计,觉得美女邻居的做法可以借鉴,正好中间也有大半年的时间,时间充裕,准备工作也可以做得比较齐全。

    那么接下来的第一步就是确认自己想要什么,什么需求,什么风格~结合了老房子的一些经验教训,以及刷某博某书上看到的装修方案,脑海里已经有了大概的雏形,效果图如下:




    • 来自 江苏省
    • 精华 0
    • 注册 2011-5-31
    • 行业 其它
    •  

    说一说选装修公司的过程吧~

            通过业主群,亲朋好友以及论坛上的推荐,结合邻居们的效果图,论坛上的效果图(尤其是与落地图的对比),筛选出了几家意向装修公司。

            我把自己的要求,意向装修效果做了一个备忘录,分别发给几家公司先开始了微信交流。大多数装修公司都非常愿意前期通过微信沟通,有平面方案后再上门沟通,提高沟通效率,但也有的装修公司,无论电话还是微信里都一定要你先上门,再开始出平面方案。虽然理解这种做法,但休息日非常宝贵,我不能接受。

    WJJH
            这家装修公司,是当时小区签约比较多多的,各户型效果图也是比较多的。和设计师沟通比较顺畅,在面对面沟通时,还着重强调了灯光的设计与运用,让人觉得比较有想法。与此同时,匹配平面方案的初步报价单也做好了,自信和专业度还是不错的。但因为超出了我的预算范围,后续就没继续深入聊了。

    DYRS
            这家装修公司和WJJH应该不相上下,业主群里的签单量也不少。在邻居的极力推荐下,我加了他们的设计师开始先一步的沟通。这位设计师也比较资深,对我的要求理解得很到位,并且参考之前YQ居家,提了几个装修改善点,说明是认真生活的人。在平面方案图出好后,我们就约着上门聊了。因为时间上比较有限定在了晚上,在这里感谢设计师和销售为我们加班。
            一进门后,我们以为就直接坐下来聊了,没想到销售直接在前台给我们上了一课,包括公司组成,人员结构,展厅里各工艺的出样自己讲解,虽然这很能展现公司的专业程度,但也消耗了我的很多时间,尤其是作为第一次上门的我来说,我觉得可以,但完全没有必要。
             我想,如果我非常中意他们家,可以在平面方案确定之后,再深入讲解各工序工艺及材料规格,会更好。因为先期印象,没有聊初版报价,就PASS了。


    TR
            这是一家版主推荐的设计型工作室,先微信一直没加上,加上后聊了就约了上门的时间。当时下大雪,我和老公两个人去在寒风中瑟瑟发抖的打了几个电话,差点要放弃的时候,没想到联系上了。可能因为我先入为主的以为,或者是他们家的特色,没有在电脑上呈现平面图,而是在A3纸上手绘后描述。后来没有过多的沟通,也PASS了。

    MF
            这也一家版主推荐给我的设计型工作室,刚开始微信沟通后就通了电话,对微信里的要求进行了辅助说明,算是前期对接要求比较细致的了。老板很实在,也有很多回头客,我们来来回回沟通的三四次,是我们三家比价中的一家,后来因为老公的一点想法,婉言拒绝了。

    LYJ
            这家装修公司是才乔迁新居的亲戚推荐了,她说报价很实在,不会抬高价格再打大折。我又看了一下论坛上的介绍,发现原先给我们装修老房子的设计师也在他们家,就对接起来了。
            先给我分配了一位女设计师,平面方案看了好几版,就是感觉很普通,差一点说不出来的想法,后来老板给我换成了设计总监。
             他和WJJH的设计师一样,对自己的方案也挺自信的,出方案的同时初版报价也好了,费用超出了我们预算范围一点,但我相信后续都是可以谈的。
            这是我们三家比价的第二家,后来家里人觉得他们家的设计和落地,比较黑白灰,和我们想要的有一些差异,最终也婉拒了。

    YM
            这家装修公司被人为贴上了“网红”的标签。看了几位邻居的效果图,真是为他们的设计感到惊艳,尤其是一位邻居,想法比较大胆,且愿意为提高自己的生活质量而投入,把YM推上了风口浪尖。我以为这家公司的收费标准会比较高,前期没敢过多接触,后来拿到房以后,很多疑难杂症,必须要请大师来试试看,就约了时间上门拜访。
             没想到,设计师没有想象中的高冷,想法也很多,三下五除二,我们聊了两个方案,结合家里的实际情况,做了一个类似大平层的方案。后来收到报价,发现也没有想象中的那么高价格,属于咬一咬牙,也能承担的范围。但因为设计比较大胆,改了一个卧室变为餐厅,家里人比较保守,只能又婉拒了。
            我想,如果有人愿意尝试不一样的风格,可以把他们家列入选择范围。

    DM
            这是一家我自己在论坛上找到的装修公司,先看了几个案例,是我想要的“温馨,暖色”的风格,我就加了老板微信。才聊没几句(当时实际我还没有拿房),老板就安排上门实际去测量尺寸验房了,并且标注了空鼓的位置。不得不说,这让我还蛮有好感的。
              后来就是一来二去的沟通,看方案,看工地,这是三家比价的第三家。因为有了前面跑几家装修公司的经验和预算水平,似乎跟他们家合作也就比较水到渠成。
            没有不停短信轰炸,也没有频繁邀请上门再聊;家里人认为要有合理的利润才能保证施工质量,同时符合我们心里价位,也就没有来回砍价。
             最终定他们家还有一个原因,他们家是分阶段验收后付款,前期签约的时候也不用付30%-50%预付款,这让钱包比较紧张的我松了一口气,最后签合同的时候,老板也很实在地打了个折。
            双方的合作就这样正式开始了。



    以上仅代表个人观点,不存在对各装修公司和各性别的设计师的恶意评价及不尊重,请理性看文及回复,谢谢。




    • 来自 江苏省
    • 精华 2
    • 注册 2016-12-14
    • 行业 房产建筑
    •  






    • 来自 江苏省
    • 精华 0
    • 注册 2018-4-12
    •  

    一名。真的方案好赞。就是确实比较超前。哈哈哈




    查看积分策略说明快速回复主题
    您目前还是游客,请 登录注册
    您目前是游客,本帖已被系统设置了自动关闭,不可回复!

    0/5000字

     
    < >
     

    Powered by Discuz! X 2 0.075350 s 清除 Cookies - 镇江网友之家 - 手机版
    论坛导航 关闭