
家装去哪儿?
无体验,不装修!
想零距离参观正在装修或装修好的样板房?
想了解施工知识,解决装修疑问、体验装修实录?
请到这里来:
万家基和装饰样板房直通车系列活动,为您的装修长途一路护航,引你遇见未来的家!
细致造就差别
真诚打动人心
每一个工地都凝结了设计师和施工人员的智慧和汗水
进步就是永不停步!
样板房活动详情如下
【集合时间】:2017年11月12号上午9点(星期日)
【集合地点】:万家基和装饰公司(学府路欧尚超市旁中国银行楼上)
【活动流程】:
9:00公司签到
9:30出发参观样板房
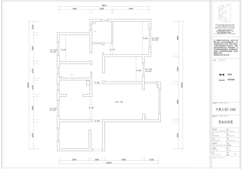
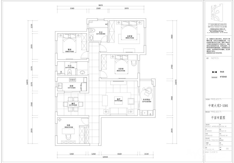
9:45参观水电工艺:中建大观7-1501,深入了解核心水电工艺
10:30参观成品:江山名洲152-501,软装家居全部进场,欣赏设计之美
11:30用餐
12:30装修大课堂
13:30设计咨询
【报名方式】:QQ报名:
电话报名:0511—88985388 18061185108
微信报名:

为了保证参观和学习的效果,限20户,以先报名为先装修课堂主讲人张总

课堂主题:六大预防核心工艺分享

往届样板房活动展示


公司地址:
关注我们了解更多
[ 本帖最后由 万家基和客服 于 17-11-2 10:35 编辑 ]






半成品水电参观:中间大观7-1501

















部分工艺展示

























































