【案例地址】:优山美地
【建筑面积】:150㎡
【案例风格】:新中式
【设计师】:龚庆华
更多案例欣赏请关注官网:【此处为站外链接,请谨慎打开】
开工留影


户型赏析
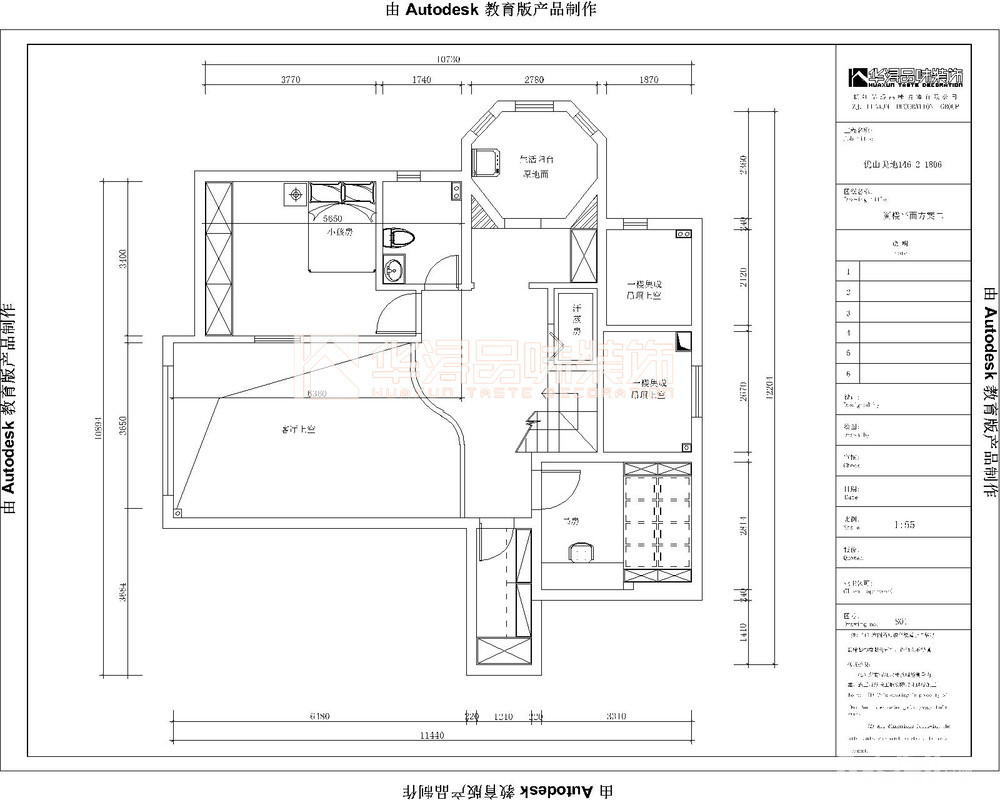
一楼原始结构图

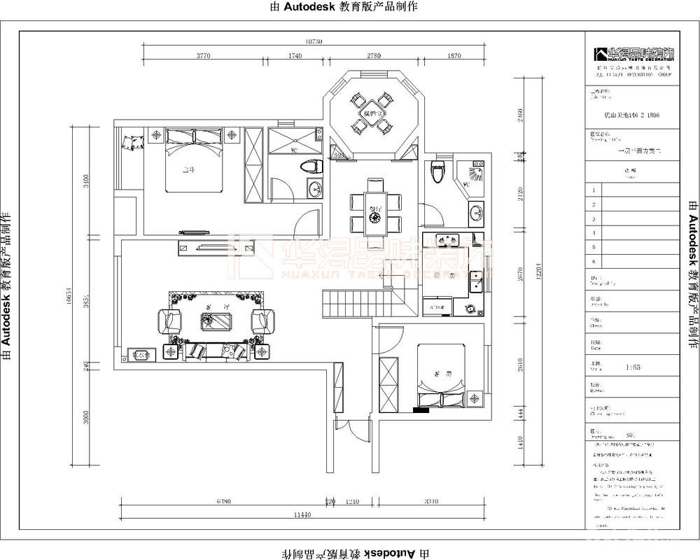
一楼方案设计图

阁楼方案设计图

[ 本帖最后由 广东华浔装饰 于 17-7-7 16:21 编辑 ]
【案例地址】:优山美地
【建筑面积】:150㎡
【案例风格】:新中式
【设计师】:龚庆华
更多案例欣赏请关注官网:【此处为站外链接,请谨慎打开】
开工留影


户型赏析
一楼原始结构图

一楼方案设计图

阁楼方案设计图
