【案例地址】:孔雀城
【建筑面积】:250㎡
【案例风格】:混 搭
【设计师】:夏 雨
更多案例欣赏请关注官网:【此处为站外链接,请谨慎打开】
户型赏析
一楼原始结构图
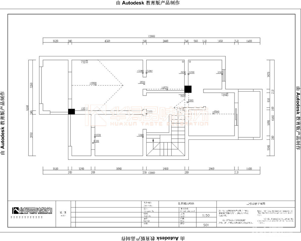
二楼原始结构图

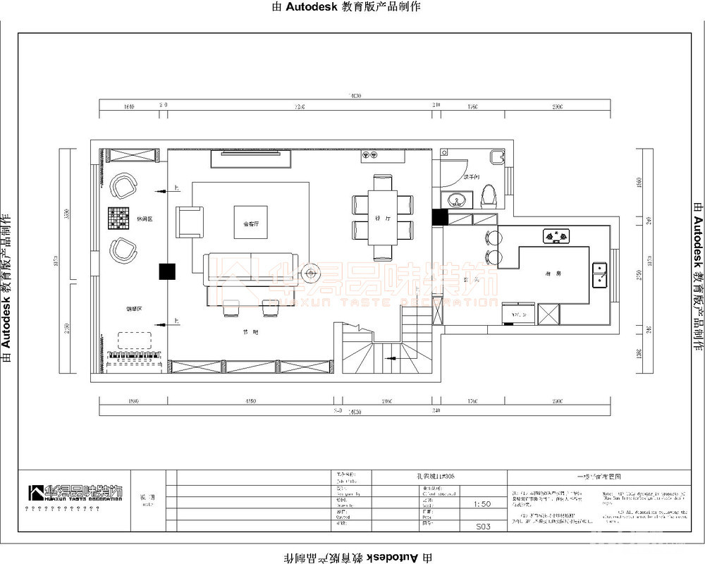
一楼方案设计图

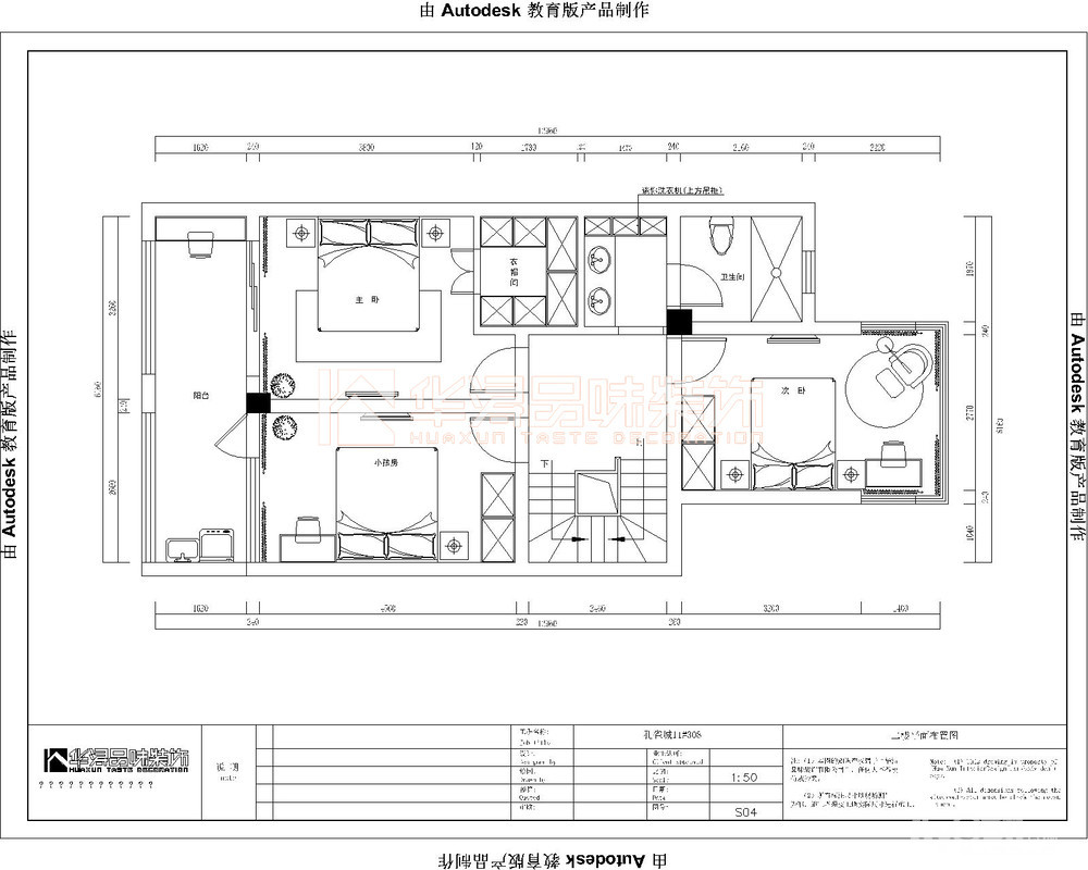
二楼方案设计图

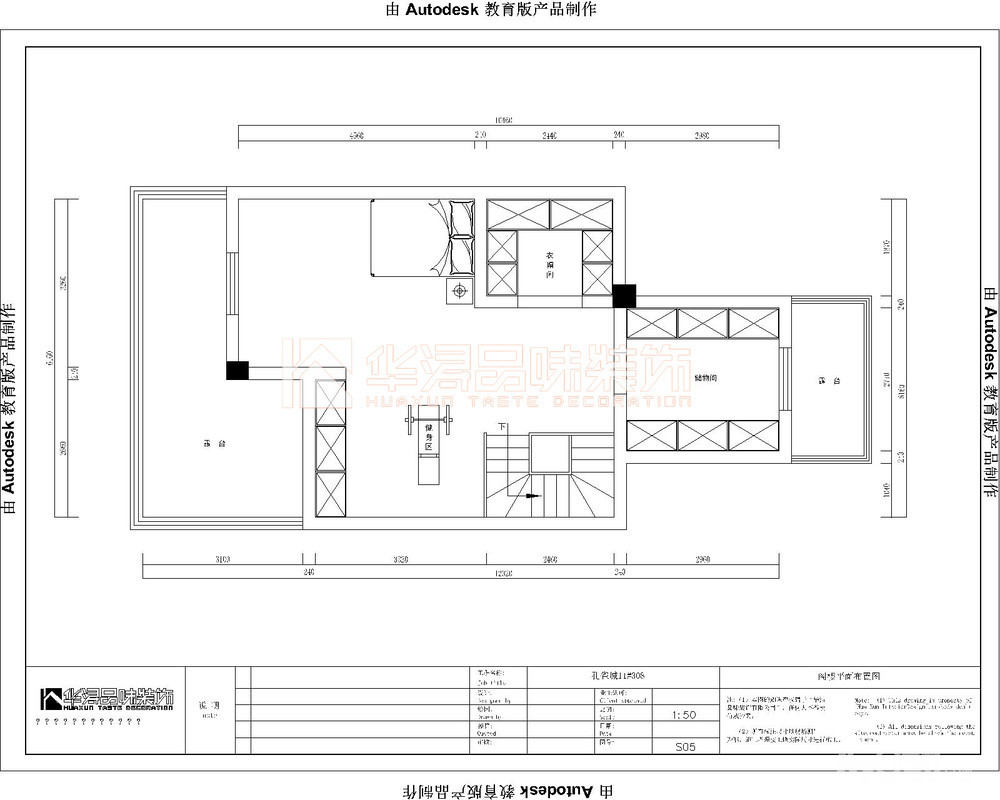
阁楼方案设计图

[ 本帖最后由 广东华浔装饰 于 17-7-7 16:31 编辑 ]












