【案例地址】:优山美地135
【建筑面积】:230㎡
【案例风格】:简 美
【设计师】:王 菲
更多案例欣赏请关注官网:【此处为站外链接,请谨慎打开】
户型赏析
一楼原始结构图
二楼原始结构图
阁楼原始结构图
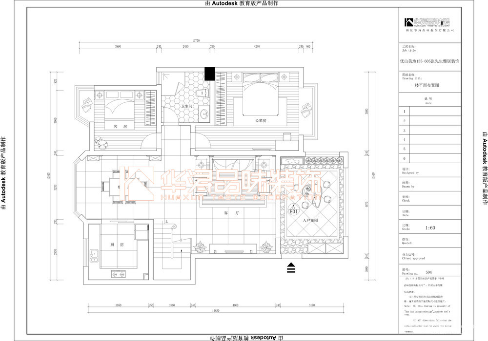
一楼方案设计图

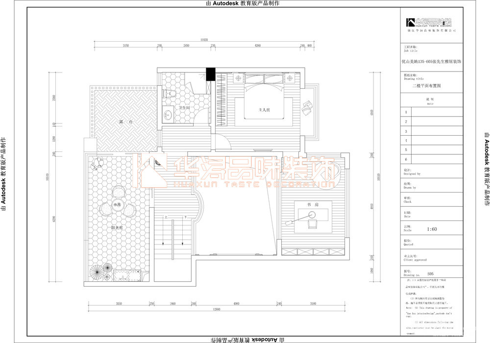
二楼方案设计图

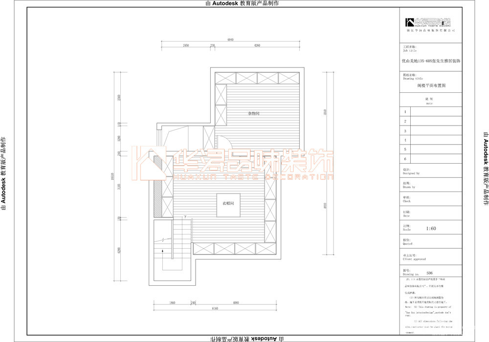
阁楼方案设计图

[ 本帖最后由 广东华浔装饰 于 17-7-8 16:28 编辑 ]











