【建筑面积】:300㎡
【建筑类型】:大平层
【设计风格】:新中式
【首席设计师】:王丹
作品名称:《恰逢此刻》
设计说明:相同磁场的人总会在不经意间遇见,于是我们确定方案以后就开始了。前后经历快3年的时间,考虑预算成本,考虑时间对接,这套案子就在我和业主三个人的空闲时间磨出来了。拍摄的时间也是,夏天很热,我们都觉得等天气好一些吧,于是等到天空变成克莱因蓝,等到橘子熟了,天气很好的一天下午我们开拍,一切都刚好。本案例设计之初定位的方向为新中式。考虑到主人的职业和年龄层次,摒弃纯中式的厚重,提炼中式元素为主,作为整套案例的基调。湛蓝作为大色块跳色,整体冷静大气。木饰面整体采用中性调系,作为辅助家具的延伸。电视背景墙以雅士白岩板为大基调,不突兀,让隐形门更好的过渡。
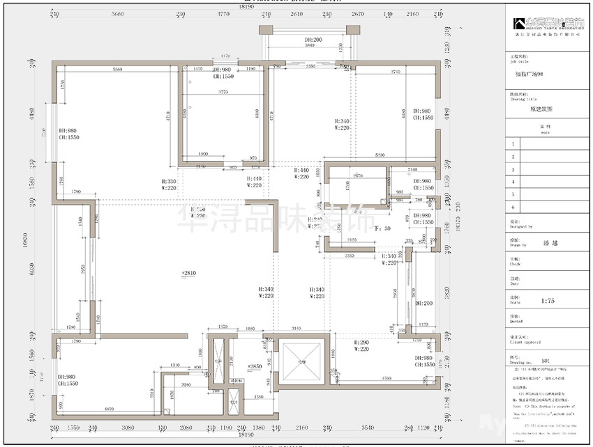
原件结构

平面结构

实景案例
客厅



餐厅


玄关


书房

主卧


效果图
客厅


餐厅

玄关

书房

卧室

咨询热线:88881389/88881379
公司地址:丁卯桥路168号江南世家11-13(华浔品味装饰)
[ 本帖最后由 广东华浔装饰 于 2021-11-17 17:11 编辑 ]







