
江山名洲六期,即江山府,交付时间在12月底前,预计会提前哦,因为小编五月份去过现场,就等外围绿化设施建立完善了。
这次有四个高层,其余都是联排及双拼,高层为253-255-256-257四栋,其中253-255两栋为9层的,256-257两栋为18层的。
这次我们只对四栋高层进行了解析,因联排空间改造较大,需与客户一对一沟通需求,做专属方案哦。
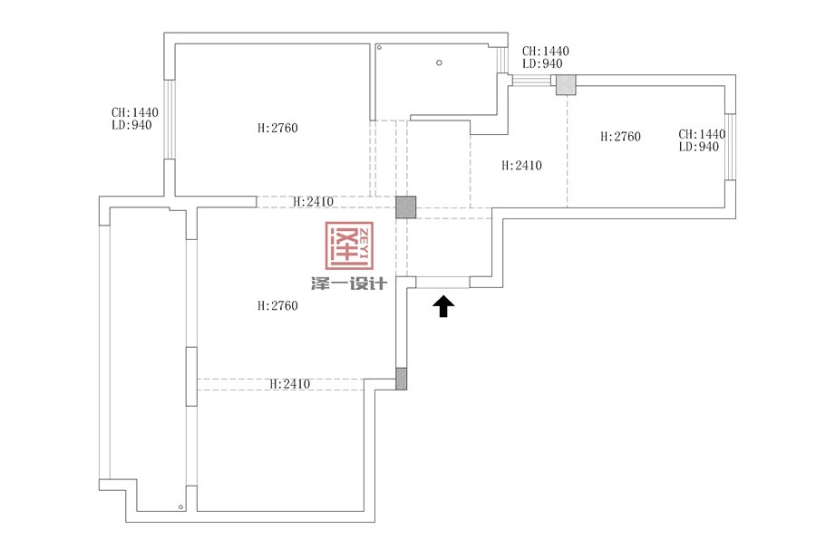
高层户型共有5个,93㎡、117㎡、123㎡、145㎡、152㎡。


户型优点
三房朝南
户型缺点
典型的手枪型户型,入户位置尴尬,原始布局中客餐厅关联性差,整个空间动线不合理,南北不通透

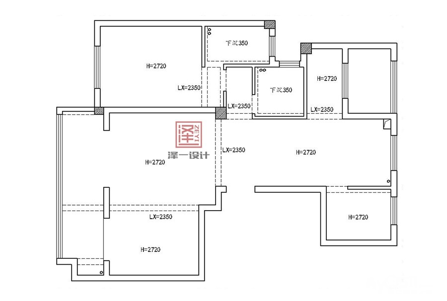
设计说明
1、将客厅位置上移,以承重柱为边界,划分动静区域,客餐厅及厨房实现南北通透;
2、以折叠门划分厨餐厅区域,美观又实用,厨房为开放式,U型橱柜保证操作台面及各类电器摆放,餐桌靠窗摆放灵活美观;
3、将原始客厅次卧区重新划分为主次卧区,由入户门厅、过厅进入静区;
4、主卧保留阳台方便晾晒,两排储物柜保证收纳功能;
5、次卧则将阳台纳入房间,布置写字台,兼具卧室及书房的功能。
整个户型面积虽小却五脏俱全,该方案无论是单身贵族,新婚夫妻,三口之家都可合理应用。

[ 本帖最后由 泽一设计 于 2019-6-30 14:30 编辑 ]























