中南·公园物语是中南入驻镇江十年来的全新力作,自2016年开盘至18年交付,
看着它呈现在镇江人民的面前,除了毛坯还有精装修。
去年有做过前期交付的户型解析,五月份我们也去现场调研过,
目前即将交付的楼号是64#-68#、71#。
这次的解析的户型总共有5个,洋房和去年交付的户型相同。


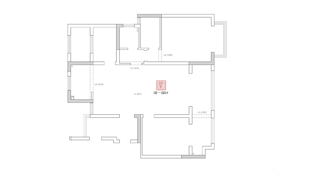
户型优点:
1、户型工整方正
2、功能区齐全
3、开发商赠送面积较多
4、紧凑型三房
户型缺点:
1、客厅空间不足,电视背景墙不完整
2、开发商赠送的北房间面积太小,且没有门

设计说明:
1、针对客厅空间不足,将南阳台空间缩小,在保证生活阳台洗衣机柜空间的前提下,把多余的空间纳入客厅中,扩大了客厅空间及电视背景墙尺寸;
2、针对儿童房空间小且没有门的问题,在保证主卧空间的前提下,儿童房占用主卧部分空间,儿童房也可以在过道处开门,满足客户三房需求。
[ 本帖最后由 泽一设计 于 2020-2-24 10:07 编辑 ]
























