泽一 落地设计
Choose Only One

HOME ·「 Between Square And Circle 方圆之间 」
项目面积 / Area:299㎡(实际设计面积)
项目风格 / Style:现代风格
服务模式 / Service Pattern:设计+基装施工
项目地址 / Project Address:丹阳国骅·天波

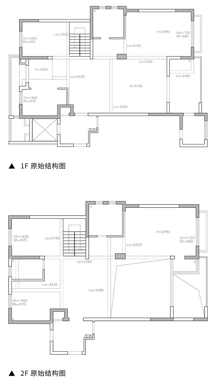
原始户型痛点分析
入户门厅过大且楼梯正对大门,入户仪式感较差,空间浪费过大;
厨房餐厅太过标准化,使得两区域空间小;
厨房储藏空间较少,餐厅通过性较差;
室内只有一条南北方向的动线,光线,通风等都受限制。

平面布局优化改造
将楼梯中置,切入原门厅区域,使得门厅更有仪式感,空间浪费少,并将楼梯隐藏在私区,私密性更强;
楼梯位置改善后,南北方向增加卧室区一条动线,使卧室可独立与公区外,南北方向单独对流,光线,通风,动线都大幅改善;
厨房与餐厅一体化,北侧空间被打开,储藏功能及动线得到很好的优化。
















拆除阶段

现浇阶段

砌墙阶段

水电阶段

木工阶段

瓦工阶段

漆工阶段

安装阶段
由于疫情影响,本案将安排在年后进行拍摄,预计明年年初将会呈现落地效果,搓搓小手期待着~

冷暖相得益彰的居住空间
A living space that complements each other
抛去繁复
Throw away the complexity
品味高级与艺术
Taste high and art
[ 本帖最后由 泽一设计 于 2023-2-16 15:39 编辑 ]








