泽一 落地设计
Choose Only One

HOME ·「 Good Year 好年 」
项目面积 / Area:169㎡(实际设计面积)
项目地址 / Project Address:南山浅水湾
项目风格 / Style:美式
服务模式 / Service Pattern:设计+全案

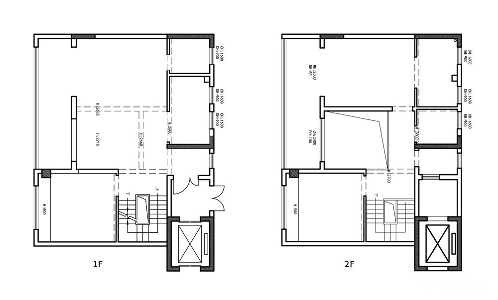
原始户型痛点分析
◦ 原有楼梯缺少光线,占用空间较大;
◦ 一层卧室储物空间缺少;
◦ 二层原有空间切分较碎,无法形成比较好的套房空间。

平面布局优化改造
◦ 将楼梯南移,引入更多的光线到一层空间;
◦ 将卧室和客厅空间进行置换,增加卧室储物空间的同时,提升卧室的隐私性;
◦ 将二层空间进行重组,形成东西各一个套房,增强空间的联系性。
效果图
全景效果图









施工阶段

拆除阶段

现浇阶段


砌墙阶段

水电阶段


瓦工阶段


木工阶段


油漆阶段


安装阶段
本期作品已全部安装到位,趁着业主及家人即将搬入新宅之际,我们正在准备毕业照拍摄计划,
实拍成品将在次月呈现在大家面前,敬请期待
用喜欢的视角
From a preferred perspective,
记录家里的春秋冬夏
record the spring, autumn, winter, and summer at home.
泽一设计
-COO Design-
[ 本帖最后由 泽一设计 于 2025-9-1 14:35 编辑 ]








