泽一 落地设计
Choose Only One

HOME ·「 Light shadow 光影相拥 」
项目面积 / Area:130㎡(实际设计面积)
项目地址 / Project Address:中南 · 聆江阁
项目风格 / Style:简约自然主义
服务模式 / Service Pattern:全案设计

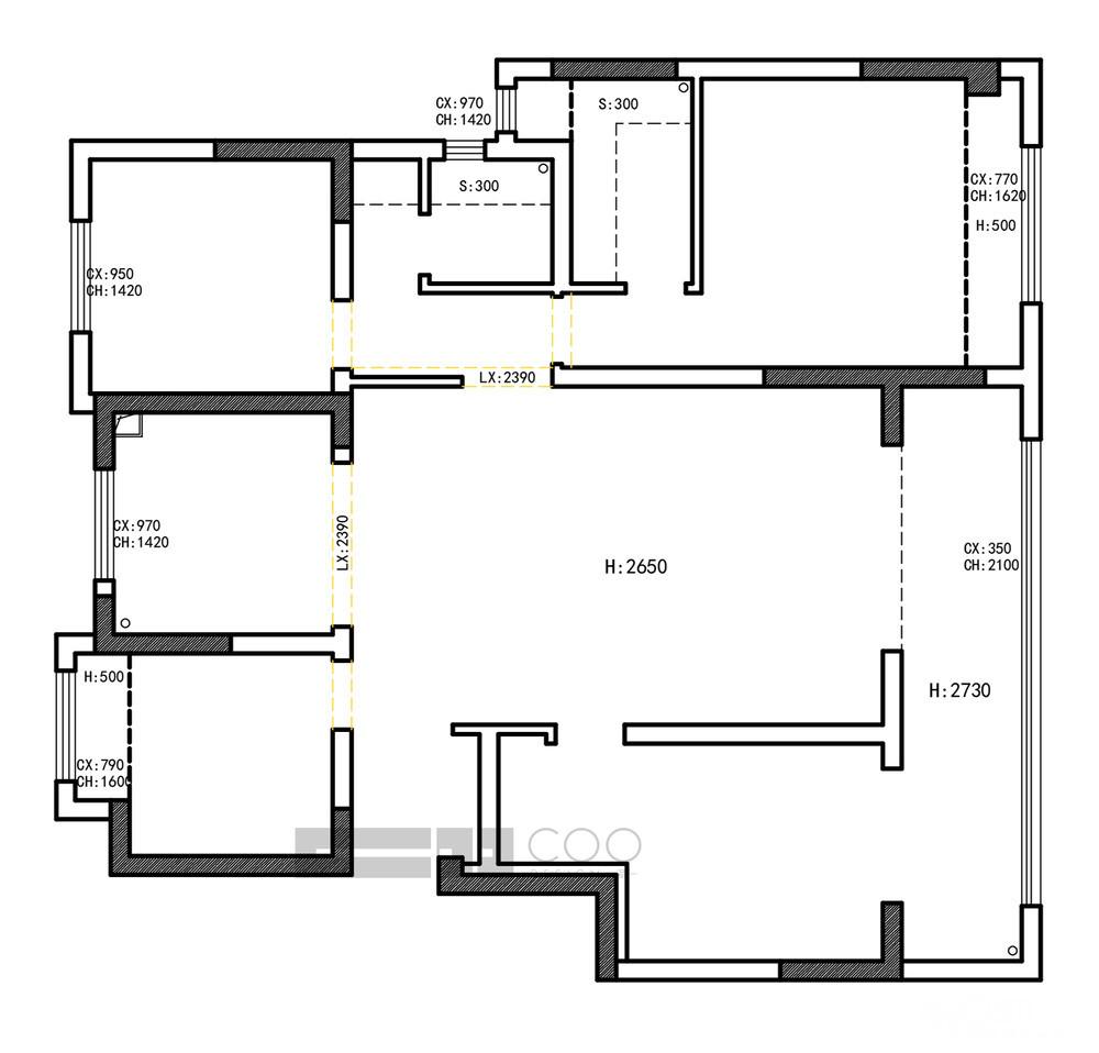
原始户型痛点分析
标准四叶草户型,功能间多但面积小,入户及北侧狭窄,单个利用均不方便;
中间公区空间浪费多,尤其是餐厅区域,餐桌不论如何放置都显拥挤;
开门见桌,缺少仪式感,且入户一边过道打满柜子后会和另一边墙体形成窄巷效应,又窄又长,带来十足的压抑感;
入户南侧房间通风较差,南北对流不能实现,且不能对北侧书房进行光线补足;
电视背景因卧室门不能实现完整,且不能与沙发背景形成中心对称。

平面布局优化改造
将相应区域进行调整,与公区配合优化,提高空间利用率;
将入户区和餐厨区打开后重新规划,生活动线清晰,空间宽敞后使用更方便;
门厅区域以镂空玄关造型墙及餐厅吊灯,提升入户仪式感,同时满足餐厅背景及实用需求,入户两侧分离动线,有效避开动线交叉;
打开入户及两侧房间功能区,做到此条线的南北对流,将光线引入,开阔了入户空间;
卧室门方向调整,沙发背景可与电视背景中心对称,保留其完整性。
效果图
全景效果图








施工阶段

拆除阶段


砌墙阶段

水电阶段

木工阶段

瓦工阶段


油漆阶段


安装阶段
本期全案作品已处于家具进场调整阶段,成品实拍即将呈现在大家面前,小小期待一下吧
一旦热爱生活
Once you love life,
生活就会教你治愈一切的魔法
life will teach you the magic to heal everything.
泽一设计
-COO Design-

[ 本帖最后由 泽一设计 于 2024-8-28 16:24 编辑 ]







