《寻觅之境》
小区:新城尚府
面积:162㎡
风格:工业风
格局:平层
方式:半包
设计、施工单位:泽一设计
如今,工业风以简约、宽敞、冷峻的特点深受年轻人的欢迎。
可是,家装如果也是工业风,怕是有点难以想象吧?但事实告诉我们,脑洞有多大,舞台就有多大。



概况:本案是一套顶楼+阁楼的户型,业主对于装修有很多自己的想法,要求是有个性且简单随性的设计风。
业主要求:吧台、星空顶、主卧大套房
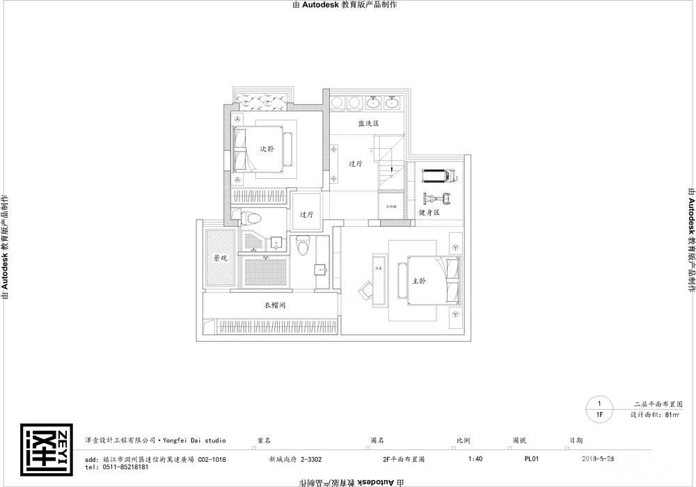
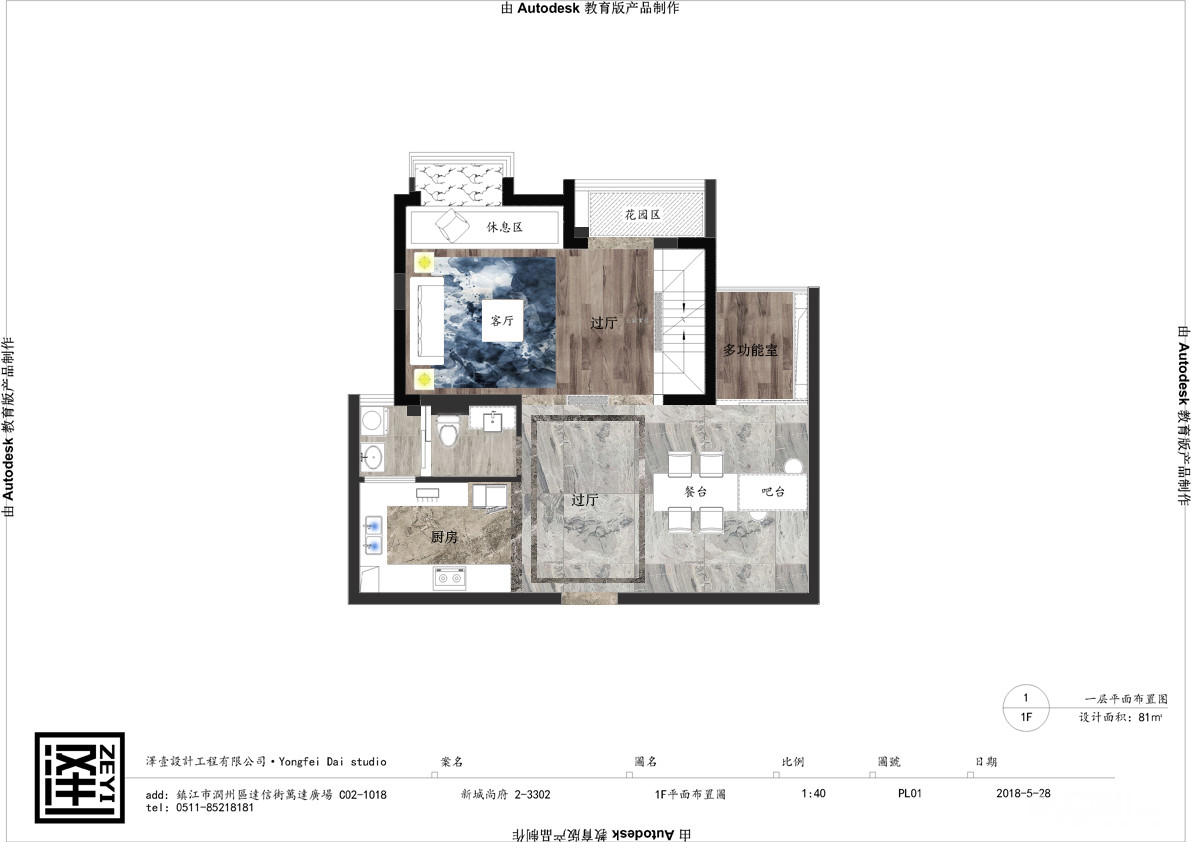
原始结构图:


设计师选取了工业风,出来的效果很有格调,且硬装花费不多,软装效果很突出。
设计思路:在户型改造中打破了原有格局的定向思维,改变原有楼梯位置,使空间布局更合理,动静分离。
客厅电视背景墙、餐厅餐桌和吧台的结合是本案的一大亮点,也是得益于和客户很好的沟通,所以才能呈现这么一套作品。




持续更新中,不要急哦。。。
[ 本帖最后由 泽一设计 于 2018-10-20 16:44 编辑 ]







