《Le Petit Prince》
中文《小王子》
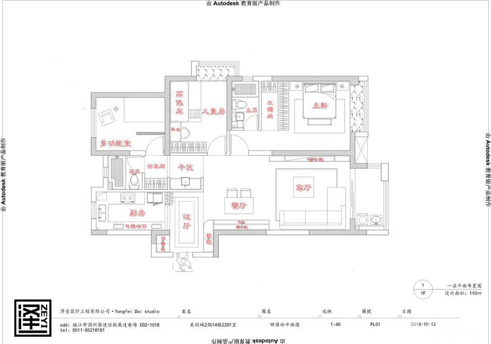
小区:美的城
面积:110㎡
风格:现代地中海
格局:平层
方式:半包
设计、施工单位:泽一设计


概况:本案是美的城二期高层的边户,户型方正,功能间齐全。
业主对于装修也是做足了功课,从地中海到现代,业主找了大量自己喜欢的元素做参考。
在本案改造中,也是完全考虑了业主的想法和喜欢,在方案沟通中很快的达成了合作意向。
原始结构图:

改造后:

平面彩图:

持续更新中。。。
[ 本帖最后由 泽一设计 于 2018-12-19 10:52 编辑 ]







