写在开头:
我家的地址:户主地址:中南御景城,28栋 (具体哪一间,就不透露了哈哈)
楼层户型:顶层小复式
面积大小:建筑面积 ,实用面积
装修风格:北欧风
装修方式:半包
装修公司:前程装饰公司
预算: 个人感觉会在30万左右
欢迎加入家装官方VIP别墅QQ群 群号:565444352
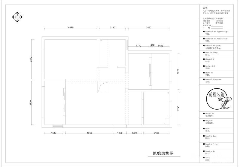
呼呼呼~我的房子终于终于终于在5月1号开工了~~满怀激动地心情开了成长贴跟大家分享~~嘻嘻。话不多说先给大家看户型图:


这是个小复式,从小就喜欢复式的房子,当时看房的时候,就看中这套房子在顶层,阳光充足,顶层也安静。相当于在闹市中寻找出了一片净土~
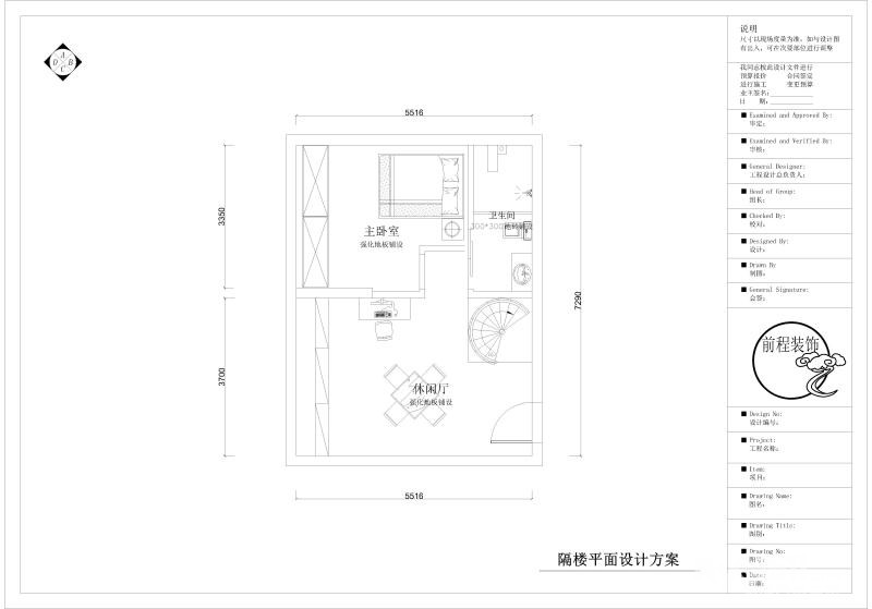
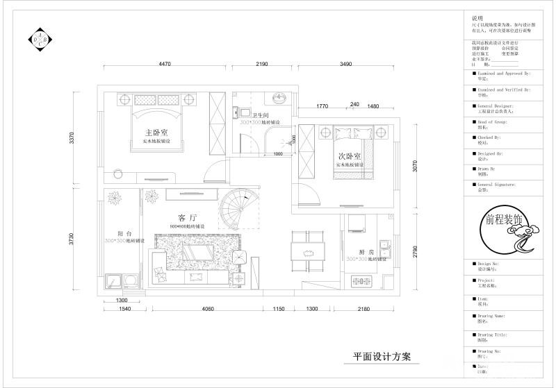
放设计图


个人感觉复式房子的话,楼梯的位置很关键,它应该不仅仅是连接上下两层的桥梁,还要放在那儿,既节省空间又能起到美观的作用。当初选择前程也是因为他们在楼梯设计这一点蛮和我心意的。
放开工图 鞭炮声声开工啦~~ 


5月2号开始砸墙。。 最近天气不好,灰层不容易消散,辛苦师傅们拉~~
为什么今天才发(前两天手机坏了
)
[ 本帖最后由 my0511菲雪 于 18-7-10 08:52 编辑 ]









恭祝楼楼开工大吉
,中南为啥双休还不让装修。今天才开始砌墙


,前两天还给我加插座不收钱哈哈。谢谢啦

