
◆ 项目地址:梦溪嘉苑
◆ 项目面积:370㎡
◆ 设 计 师:吕颖
◆ 摄影单位:ingallery
这套案例说来也是一种缘份,我们的客源基本都是老客户推荐,这套也不例外,这次应该算是业主爸妈对我们“一见钟情”。
叔叔应该是我见过最时尚的老爷子,游泳、健身、机车...样样精通。
还有阿姨包的饺子好吃还怎么下都不会烂!
还记得当初一家五口来看平面方案,全家一致认可,自那以后,叔叔就不再过问装修的事了,全权放手。
忙碌了一年收获了很多,终于有点时间静下来拍一些自己的作品了。
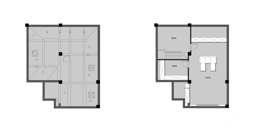
一场疫情让我们都窝在了家里,视听室,健身房,大浴缸,烤箱...以前觉得可有可无的都派上了用场。
好在年前拍完照,入住了进去。
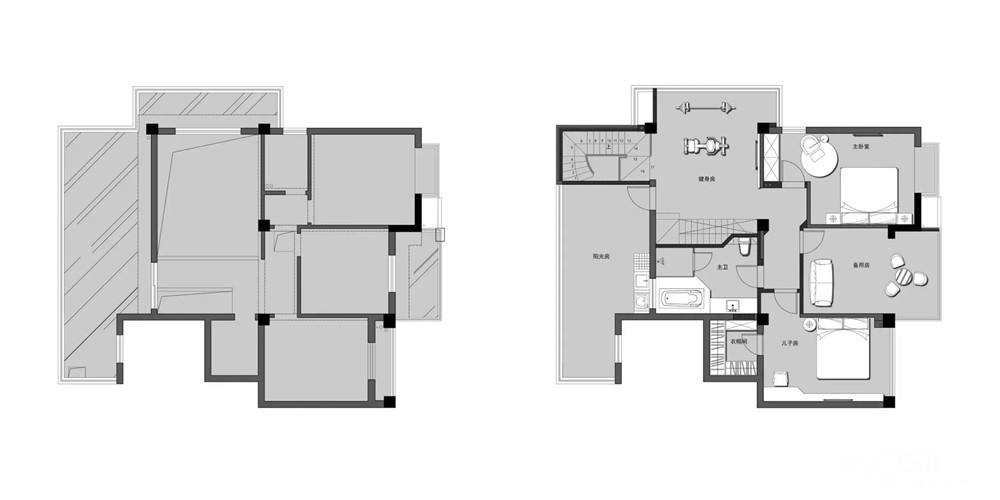
说说户型,顶层复式带阁楼的,面积比正常联排还要大,由于平层户型的基础,最大的问题就是楼梯、卫生间的位置。
而朝南房间多也是他的亮点。
原楼梯一字型,陡而窄,我们扩大朝北空间,拆除北卧、客卫、餐厅、厨房的功能空间,
只用做厨房、餐厅和楼梯间三大功能区,空间感更大,也有足够空间做成大U型楼梯。
客厅休闲躺椅是唯一有分歧的地方,我选择了伊姆斯休闲椅,业主姐姐似乎不太喜爱,好在最后说服了她,
毕竟经历半个多世纪一直被封为经典,他的魅力可非一般,恰到好处的角度,让人一坐倾心。
户型图



[ 本帖最后由 my0511唐老鸭 于 2020-3-12 13:33 编辑 ]





























