为自己打造淡雅静谧的屋舍终于完工了!本人特别钟爱中式风格,可能是跟我从事教育的职业有关,我对于中华传统文化有着深厚的情怀吧!我就一直希望能在这套房子里能实现中式文化元素。当时选择尚峰大宅,真的是被他们美女店长的热情服务、设计师的设计专业水准及施工方面的严谨态度所打动了!初次与设计师罗工沟通方案时,只是简单的介绍了自己的喜好、想法、及家人的生活习惯,罗工通过多年的设计经验结合我的需求,给出了很多非常合理的意见和建议,让我对我们家的装修又有了更加具体的想法!通过几次愉快并认真严谨的沟通,方案终于落地了,真的非常非常满意!
- 来自 江苏省
- 精华 0
- 注册 2007-3-1
- 行业 教育科研
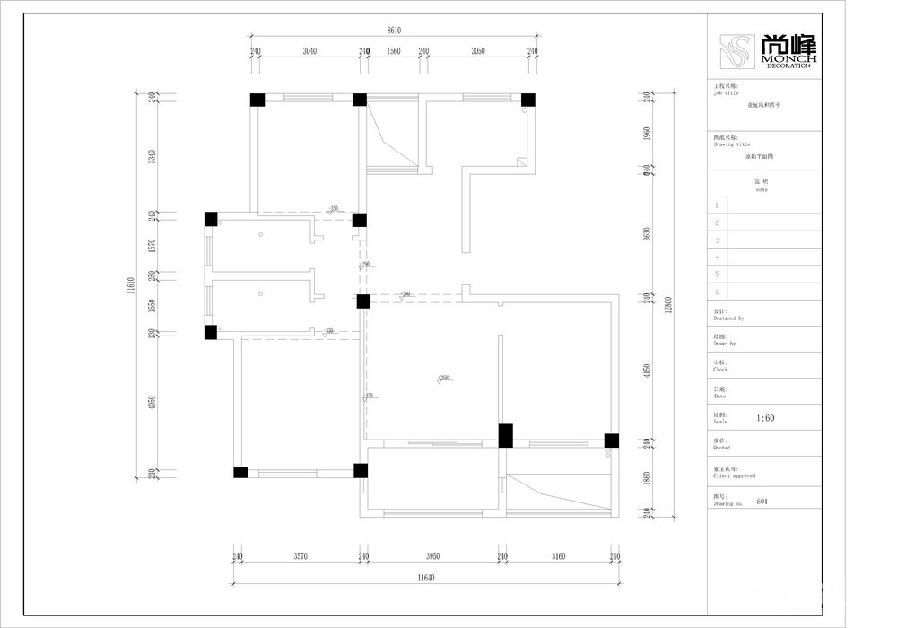
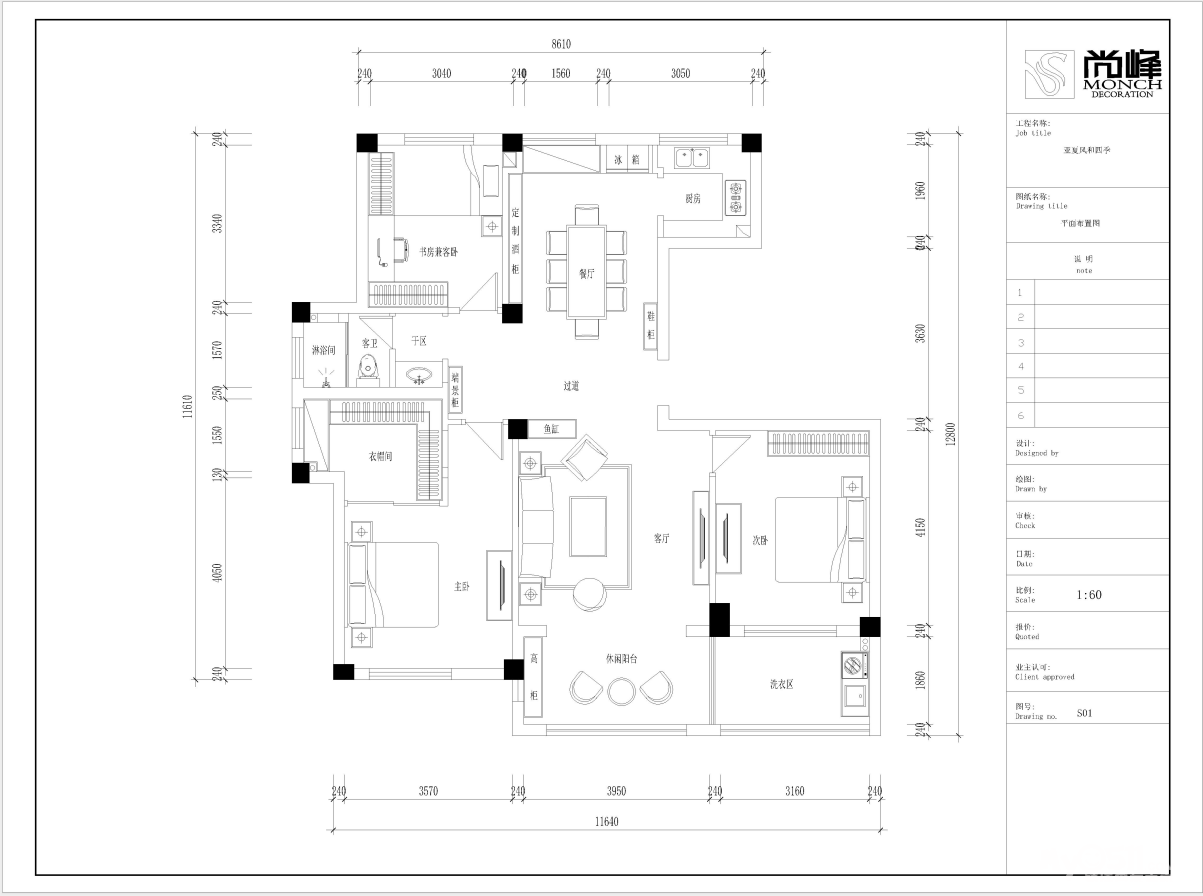
静谧的生活、静谧的家---用诗意打造方圆静谧之美!------亚夏平层完工毕业照
- 来自 江苏省
- 精华 0
- 注册 2007-3-1
- 行业 教育科研
- 来自 江苏省
- 精华 0
- 注册 2007-3-1
- 行业 教育科研
- 来自 江苏省
- 精华 0
- 注册 2007-3-1
- 行业 教育科研
- 来自 江苏省
- 精华 0
- 注册 2007-3-1
- 行业 教育科研
- 来自 江苏省
- 精华 0
- 注册 2007-3-1
- 行业 教育科研
- 来自 江苏省
- 精华 0
- 注册 2007-3-1
- 行业 教育科研
- 来自 江苏省
- 精华 0
- 注册 2007-3-1
- 行业 教育科研


















