【小区名称】中南世纪城大三期
【所在楼层】16/17
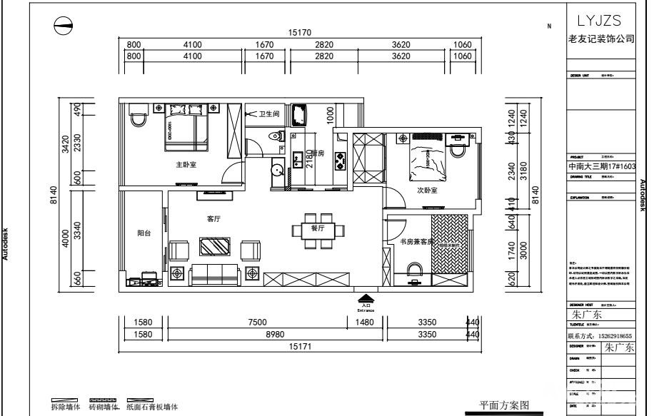
【建筑面积】113
【装修风格】北欧
【包工方式】半包
【装修公司】老友记
【开工日期】2018月3月
【装修预算】30万(含家电)
【设计师】朱广东
- 来自 江苏省
- 精华 0
- 注册 2016-8-13
- 来自 江苏省
- 精华 0
- 注册 2016-8-13
作为一个非本地外来户,买房真是各种折腾这种曲折
16年各种原因没买成,17年上半年镇江房价飙升,赶在了房价顶峰的时候硬着头皮买了房子
平白多花了3、40万,装修或者一辆奔驰的钱就这么没了,感觉自己像煞笔。。。
又因为房价升上来的时候房子都被抢完了,几乎没有现房,期房都是到19年末起步
17年6月从中介处买了中南大三期的二手毛坯(8月底交房,从中南内部走了合同过户,后面交房直接交给我,其实也可以算做新房)
因为是工程抵押房,涉及到各种各样的原因,加上贷款时间等,一直到2018年的3月才拿到房。。。。足足大半年。
(中间的艰辛和曲折我已经不想提了,省去10万字,8万字是脏话!)
房价多花几十万
银行贷款税率增长15-20%
镇江首套房契税返还政策也没了
。。。
真是往事不堪回首
16年各种原因没买成,17年上半年镇江房价飙升,赶在了房价顶峰的时候硬着头皮买了房子

平白多花了3、40万,装修或者一辆奔驰的钱就这么没了,感觉自己像煞笔。。。
又因为房价升上来的时候房子都被抢完了,几乎没有现房,期房都是到19年末起步
17年6月从中介处买了中南大三期的二手毛坯(8月底交房,从中南内部走了合同过户,后面交房直接交给我,其实也可以算做新房)
因为是工程抵押房,涉及到各种各样的原因,加上贷款时间等,一直到2018年的3月才拿到房。。。。足足大半年。
(中间的艰辛和曲折我已经不想提了,省去10万字,8万字是脏话!)
房价多花几十万
银行贷款税率增长15-20%
镇江首套房契税返还政策也没了
。。。
真是往事不堪回首
经收藏到公司的主页中 每天关注
http://bbs.my0511.com/f250b-t4032754z
或进入公司专版
http://bbs.my0511.com/f1155b#lid9dbkystke0fj1f1
[ 本帖最后由 老友记装饰客服 于 18-4-11 11:29 编辑 ]
http://bbs.my0511.com/f250b-t4032754z
或进入公司专版
http://bbs.my0511.com/f1155b#lid9dbkystke0fj1f1
[ 本帖最后由 老友记装饰客服 于 18-4-11 11:29 编辑 ]
- 来自 江苏省
- 精华 0
- 注册 2016-8-13
- 来自 江苏省
- 精华 0
- 注册 2016-8-13
- 来自 江苏省
- 精华 0
- 注册 2016-8-13
- 来自 江苏省
- 精华 0
- 注册 2008-7-7
- 行业 基础设施
- 来自 江苏省
- 精华 0
- 注册 2016-8-13
- 来自 江苏省
- 精华 0
- 注册 2016-8-13
言归正传。。开始装修。。
首先就是找装修公司了
因为是外来户,对镇江装修这个市场几乎不了解,就随便在网上看了看
(此处要批评我女票,大学学的室内设计,毕业也在镇江的装修公司实习过,居然一问三不知,哪家口碑好都不知道!!
)
其实还有一个朋友在装修公司的,想来想去还是没找他们家,怕万一哪里装的不如意,我又不好意思去找人家,哈哈哈
然后那段时间就一直在0511上看帖子,发现老友记评价还不错(其实觉得名字起的不错,美剧老友记我喜欢看,老家有家喜欢的咖啡店也叫老友记。。)
找装修公司的时候,房子还没拿到,也没法量房,直接从赵美女那边拿的量房尺寸图(我们两家是对称的相反户型)去找设计师问。。
加了黄总的微信,问了地址,就上门拜访去了~
首先就是找装修公司了
因为是外来户,对镇江装修这个市场几乎不了解,就随便在网上看了看
(此处要批评我女票,大学学的室内设计,毕业也在镇江的装修公司实习过,居然一问三不知,哪家口碑好都不知道!!
)其实还有一个朋友在装修公司的,想来想去还是没找他们家,怕万一哪里装的不如意,我又不好意思去找人家,哈哈哈
然后那段时间就一直在0511上看帖子,发现老友记评价还不错(其实觉得名字起的不错,美剧老友记我喜欢看,老家有家喜欢的咖啡店也叫老友记。。)
找装修公司的时候,房子还没拿到,也没法量房,直接从赵美女那边拿的量房尺寸图(我们两家是对称的相反户型)去找设计师问。。
加了黄总的微信,问了地址,就上门拜访去了~
- 来自 江苏省
- 精华 0
- 注册 2016-8-13
- 来自 江苏省
- 精华 0
- 注册 2016-8-13
- 来自 江苏省
- 精华 0
- 注册 2016-8-13
先是拆除,拆了好几面墙,2个主卧的阳台都拆掉整成一个大的
现在发现阳台都有保温层,拆完要粉平都是额外的钱
拆除快结束的时候,项目经理张经理说水电快进场了,要我们把橱柜看下,出个方案图
。。
前期设计师也说过,现在装修橱柜都要提前定,要提前布线啥的
一直没当回事
那几天那个急啊。。赶紧跑去月星看看
朋友家装修用的欧派,感觉还行,就去看了下发现价格挺贵的,不过看了几套板间发现没啥感觉,就走了
以前对这方面都没了解过,现在发现装修是真的花钱如流水!!!
又看了同等价位的博洛尼,业务员很热情,有一套隐藏拉手的还挺喜欢的,报价一整套2万大洋,
和女票初步决定干脆就这个了,厨房好歹是房子的一个面脸工程要弄好一点
第2天母上大人来镇江,带她也去看了下,打算就这么定了,在店里又选了一些配置(也就换了面板和台面),业务员一算一整套下来2万8直飙3万。。
这就真的有点吃不消了,权衡着到底有没有必要,本来预算就吃紧,就决定回去再考虑一下
![]()
原图被我删了,这个是类似的,也是博洛尼的
现在发现阳台都有保温层,拆完要粉平都是额外的钱

拆除快结束的时候,项目经理张经理说水电快进场了,要我们把橱柜看下,出个方案图
。。
前期设计师也说过,现在装修橱柜都要提前定,要提前布线啥的
一直没当回事
那几天那个急啊。。赶紧跑去月星看看
朋友家装修用的欧派,感觉还行,就去看了下发现价格挺贵的,不过看了几套板间发现没啥感觉,就走了
以前对这方面都没了解过,现在发现装修是真的花钱如流水!!!
又看了同等价位的博洛尼,业务员很热情,有一套隐藏拉手的还挺喜欢的,报价一整套2万大洋,
和女票初步决定干脆就这个了,厨房好歹是房子的一个面脸工程要弄好一点
第2天母上大人来镇江,带她也去看了下,打算就这么定了,在店里又选了一些配置(也就换了面板和台面),业务员一算一整套下来2万8直飙3万。。
这就真的有点吃不消了,权衡着到底有没有必要,本来预算就吃紧,就决定回去再考虑一下

原图被我删了,这个是类似的,也是博洛尼的
- 来自 江苏省
- 精华 0
- 注册 2016-8-13
- 来自 江苏省
- 精华 0
- 注册 2016-8-13
- 来自 江苏省
- 精华 0
- 注册 2016-8-13
- 来自 江苏省
- 精华 0
- 注册 2016-8-13
- 来自 江苏省
- 精华 0
- 注册 2016-8-13
洗碗机想装那种嵌入式的
就涉及到了尺寸问题,就上网看了
洗碗机目前国产品牌也不知道做的到底怎么样,周围没有朋友使用,也没法给到参考意见
就看了博世,发现要么太贵过万了,要么不好看
又看了西门子,在天猫旗舰店看到一个6500大洋左右的SC73M610TI,8套,除菌烘干嵌入式洗碗机
![]()
颜值挺高,也满足我的需求,觉得就按这个尺寸了
![]()
然后没事上京东搜搜看,一看在做活动只要4500!!省了2000块,而且是最后一天了,赶紧买买买
想着估计再过个20天应该才能用到吧,就改了送货时间为20天后
哪想到20天后水电还没做完
京东把货发出来了,现在老大一个箱子堆在租的房子里
而且就在刚刚我看了下京东,这个活动又有了,还是4500,又被客服忽悠了。。。
心累
就涉及到了尺寸问题,就上网看了
洗碗机目前国产品牌也不知道做的到底怎么样,周围没有朋友使用,也没法给到参考意见
就看了博世,发现要么太贵过万了,要么不好看
又看了西门子,在天猫旗舰店看到一个6500大洋左右的SC73M610TI,8套,除菌烘干嵌入式洗碗机

颜值挺高,也满足我的需求,觉得就按这个尺寸了

然后没事上京东搜搜看,一看在做活动只要4500!!省了2000块,而且是最后一天了,赶紧买买买
想着估计再过个20天应该才能用到吧,就改了送货时间为20天后
哪想到20天后水电还没做完
京东把货发出来了,现在老大一个箱子堆在租的房子里

而且就在刚刚我看了下京东,这个活动又有了,还是4500,又被客服忽悠了。。。
心累
- 来自 江苏省
- 精华 0
- 注册 2014-4-27
- 来自 江苏省
- 精华 0
- 注册 2016-8-13
- 来自 江苏省
- 精华 0
- 注册 2016-8-13













由于过了好久,已经过了欣喜的阶段,平淡的去交了房

不要生气了,人生有起有落,既然已经成为事实,就去接受他吧,房子都是你的了,你生气,钱也不少花,何必花钱还弄得自己不开心呢?就当做人生的一道坎,以后努力赚钱换更好的房子,就当做鼓励自己

)








