
在喧嚣的世俗生活之外
拥享一宅一院
听风吹鸟鸣,看流水树影,
喝一杯小酒
看朝阳拨开舒云越过翘檐的身影
感受时强时弱的光线斜洒在琉璃瓦片
在这里,
柴门一关,挑一本书,
这个地方,这个下午,
归属于你
如爱,如真,如愿,如是,
如此甚好
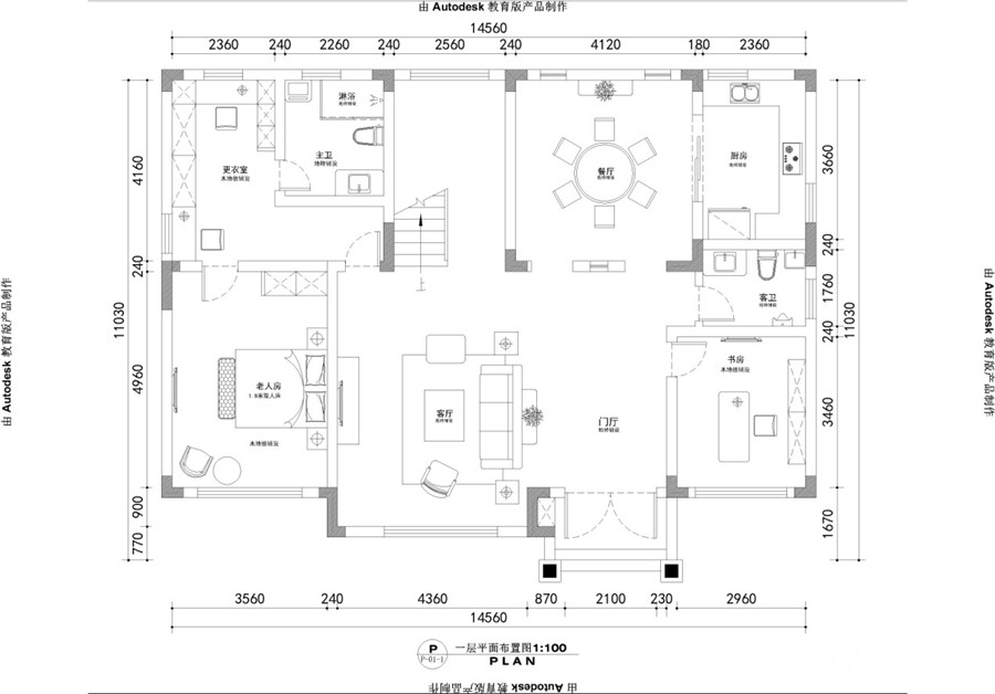
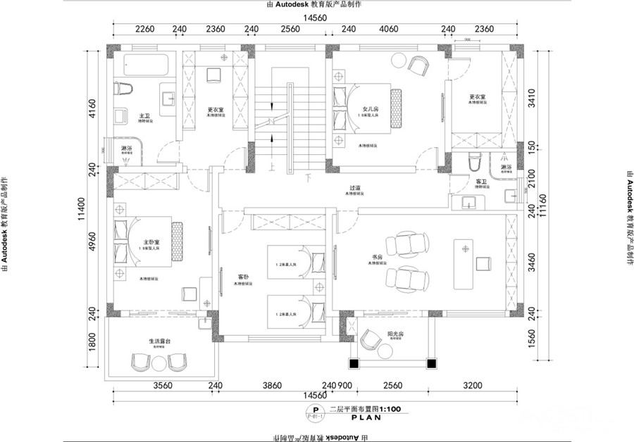
户型信息:
《项目地址》:新坝自建别墅
《项目户型》:两层独栋
《实际面积》:300平方
《设计风格》:新中式风
《设计公司》:张飞——三鬼设计
《项目施工》:三月装饰(吾悦写字楼)
平面布置图:


[ 本帖最后由 my0511唐老鸭 于 2019-10-23 14:19 编辑 ]
 









































 谢谢星星的关注啊
谢谢星星的关注啊

 谢谢关注哦
谢谢关注哦
