给生活留点白吧
为心灵觅一处宁静之地
让明媚的阳光照进来
让清爽的晨风吹进来
让温润的月色流进来
放下名和利
感受生命的温暖和美好
花未全开、月未满圆
这何尝不是另外一种美好呢
而这一切我愿与屋中你同享

项目地址:翡丽中央大平层
设计风格:现代极简
设计施工:三鬼设计(三月装饰)
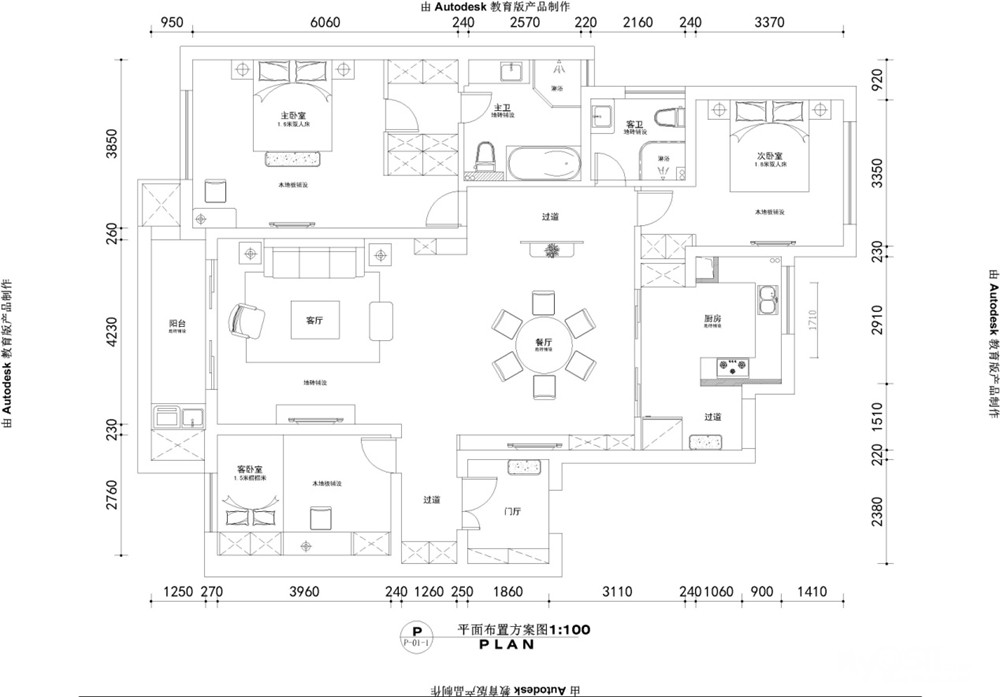
平面布置方案

平面格局上没有太大的改动,将原来的出门与后门的过道合并成一个整体
[ 本帖最后由 my0511唐老鸭 于 2019-12-27 09:19 编辑 ]

公司地址:镇江丁卯吾悦商业广场写字楼20栋912室
联系电话:13852945950
联系邮箱:【此处为站外链接,请谨慎打开】
微信号码:13852945950(三鬼设计)
如果你也想拥有这样一套品位与品质共存的案例
请联系我们

更多三鬼设计案例请点击: