
户型信息
项目地址:自建别墅(丰裕)
项目面积:270平方
设计风格:美式轻奢
设计施工:三鬼设计(吾悦写字楼)
室内摄影: David摄影


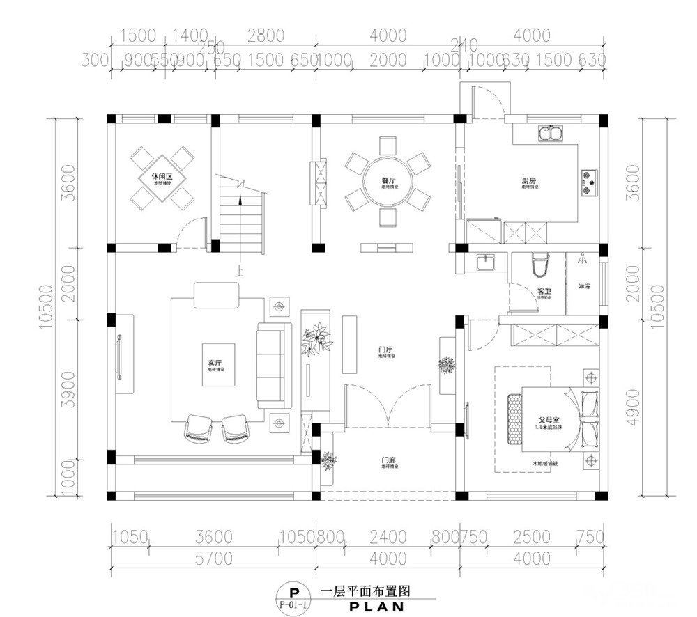
平面方案分析
本案是自购地皮自建独栋别墅,我们设计施工过很多自建别墅,深知自建别墅一些基础返潮与设计相冲突的问题。
为了解决设计在自建别墅中不受返潮问题影响,也是考虑很多解决方法,尽可能不用大面积铺设墙砖或石材去化解,
而是采用一楼整体对外墙体板材锡箔纸防潮基础后再安排表面其他材质的覆盖,
以及后期庭院回土覆盖尽可能比室内现浇基层底尽可能减少外围泥土潮湿顺着墙体向上蔓延,减少墙体潮湿度。












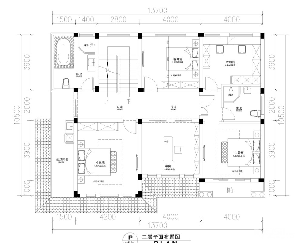
二楼区域






庭院与外观





公司地址:镇江丁卯吾悦商业广场写字楼20栋912室
联系电话:18094493399
联系邮箱:【此处为站外链接,请谨慎打开】
微信号码:18094493399(三鬼设计)
如果你也想拥有这样一套品位与品质共存的案例
请联系我们

更多三鬼设计案例请点击:
http://bbs.my0511.com/f1206b
[ 本帖最后由 my0511小妖 于 2021-1-13 11:28 编辑 ]














哪里都有有钱人哦





