府学新村老房翻新小记
【小区名称】:府学新村
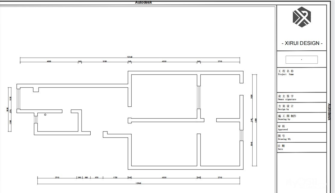
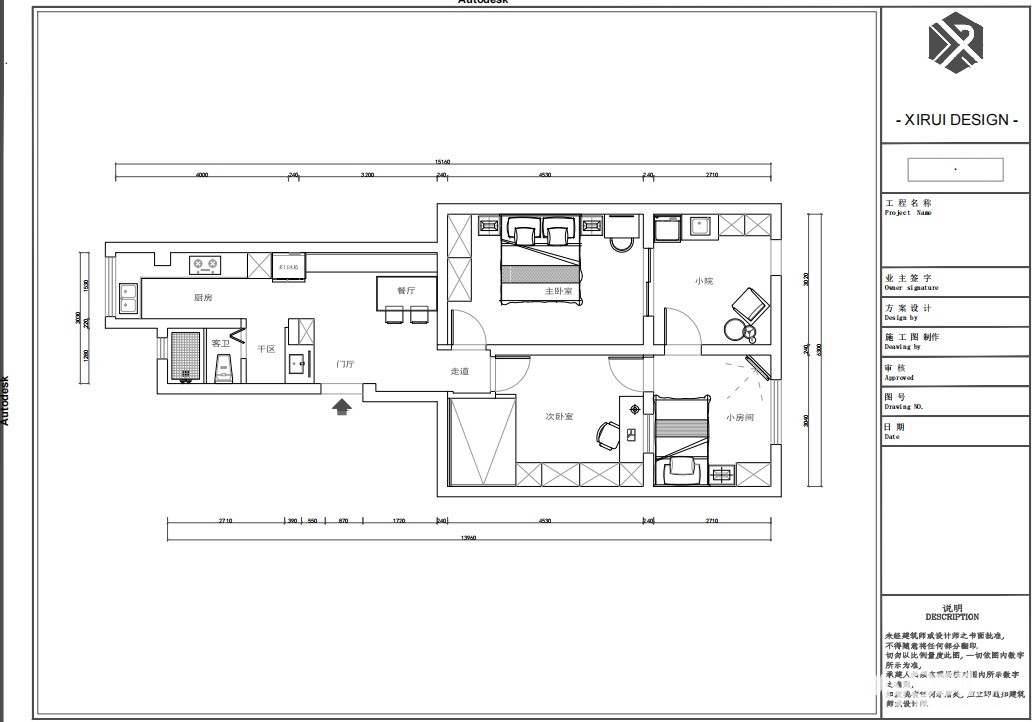
【房屋面积】:62平+院子总共大概75平
【主案设计】:霍文健
【装修风格】:我也不知道~反正很满意就是了
【包工方式】:全包
【施工单位】:希瑞设计
【开工日期】:2021年5月
【工程总价】:约11万
[ 本帖最后由 my0511唐老鸭 于 2021-7-7 13:37 编辑 ]
为了小盆友上学,买了府学新村的老破小,一楼,很破,非常破。
去年11月买的,如果是现在估计就买不起了
看了很久的房子,这间吸引我的原因有几个:1)有院子,半间是原房主封顶变成了一个小房间,另一半可以变成阳光房 2)学区是市实小和外国语,虽然离实小还有点距离,但是这个性价比无敌了 3)破破烂烂一看就是要翻新(直接打破凑合住的意愿,按照自己的想法去重新装修),不是炒家的房子
然后买完就了了一桩心事,先放着不管了,等年后再着手装修,期间陆续找了两家装修公司,一个网红项目经理报价,最得我心的是希瑞,价格合适,方案做的也很好,给人感觉很安心。
由于没时间管就选择全包了。
[ 本帖最后由 米菲小圆子 于 2021-7-7 14:34 编辑 ]
去年11月买的,如果是现在估计就买不起了

看了很久的房子,这间吸引我的原因有几个:1)有院子,半间是原房主封顶变成了一个小房间,另一半可以变成阳光房 2)学区是市实小和外国语,虽然离实小还有点距离,但是这个性价比无敌了 3)破破烂烂一看就是要翻新(直接打破凑合住的意愿,按照自己的想法去重新装修),不是炒家的房子
然后买完就了了一桩心事,先放着不管了,等年后再着手装修,期间陆续找了两家装修公司,一个网红项目经理报价,最得我心的是希瑞,价格合适,方案做的也很好,给人感觉很安心。
由于没时间管就选择全包了。
[ 本帖最后由 米菲小圆子 于 2021-7-7 14:34 编辑 ]


















好热吖
















希望月底结束















