
☀项目简介☀
面积:140㎡
风格:现代简约

很多人都会问“幸福是什么?”小时候,幸福对于我来说也许就是一只冰棍。长大了幸福,也许是你喜欢的人一个明媚的微笑。再后来,幸福却越来越模糊......
其实幸福是生活的点点滴,是我们每天的小日子。
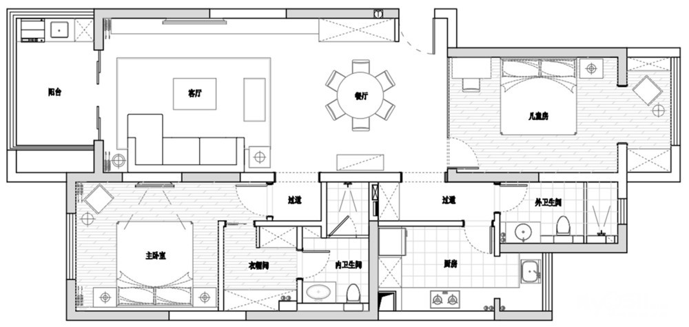
••••••••平面图•••••••

今天这个案例我们取名为《予》,名字的本意来源于给予之意。
予,在我心里,是万物的开始,是一个包容量很大的一个词。
我们要感谢生活的给予,才能有幸福的点滴
我们要感谢空间的给予,才能有不同的可能
本案例业主是一个三口之家,夫妻是做美食的,在设计风格上他们也要求简洁,大方,舒适为主。

客厅
Living room
客厅选择了比较明亮的白色作为主色调,阳台用了折叠门 更好的增加了这个空间的长度 。



灰色布艺沙发与黄色皮质沙发相互映衬
互相点缀,给人一种暖意融融的家庭氛围
餐厅
Dining Room


餐厅和客厅相连,使得空间得以延伸,造型上面没有采用复杂的设计手法,以简洁的现代风为主。
厨房
Kitchen

考虑到厨房的实用性,门板材质换成了灰色, 耐脏 易擦洗!
卧室
Bedroom
卧室的背景墙上没有选择常规的床头装饰或者落地灯,取而代之的是在原始的墙体上 做了些暗藏灯带的处理 为氛围进行点缀。


卫生间
Bathroom

卫生间是整个空间中我个人而言最喜欢的部门,不规则的多边形贴砖很惹人眼,黑白相间之中,用金边的圆形镜子作为点缀,颇具设计感。

幸福就如本案例设计一样,从点滴中彰显生活品质
从简洁的空间中流露温情的生活场景。
这也许就是我们一直寻找的小幸运~

服务网点:
【镇江】
润州区:旭辉时代大厦1505室
TEL: 0511-85603303
微信咨询:18652823579
官方网站:【此处为站外链接,请谨慎打开】
[ 本帖最后由 鸿鹄设计镇江站 于 18-4-11 10:41 编辑 ]







