收藏本站
客户端
扫码下载客户端
官方微信
打开微信扫一扫
登录
|
注册
|
标题
标题
用户
全站首页
|
论坛导航
|
网络问政
|
招聘求职
|
买房租房
|
装修频道
|
生活服务
|
教育
|
相亲
|
亲子
|
美食
|
婚嫁
|
手机客户端
家有学子
|
母婴乐园
快捷导航
精彩推荐:
MY0511客户端下载
中信银行镇江分行
公益体彩 乐善人生
鹏龙鸿蒙
天然石材·人造石
»
梦溪论坛
»
家庭装修
» 有一种温暖叫“家”
家庭装修
> 有一种温暖叫“家”
查看: 13442 回复: 17
快速回复
返回家庭装修
有一种温暖叫“家”
查看: 13442 回复: 17
上一主题
|
下一主题
毛啦啦的啦
来自 安徽省
精华 0
注册 2017-8-17
有一种温暖叫“家”
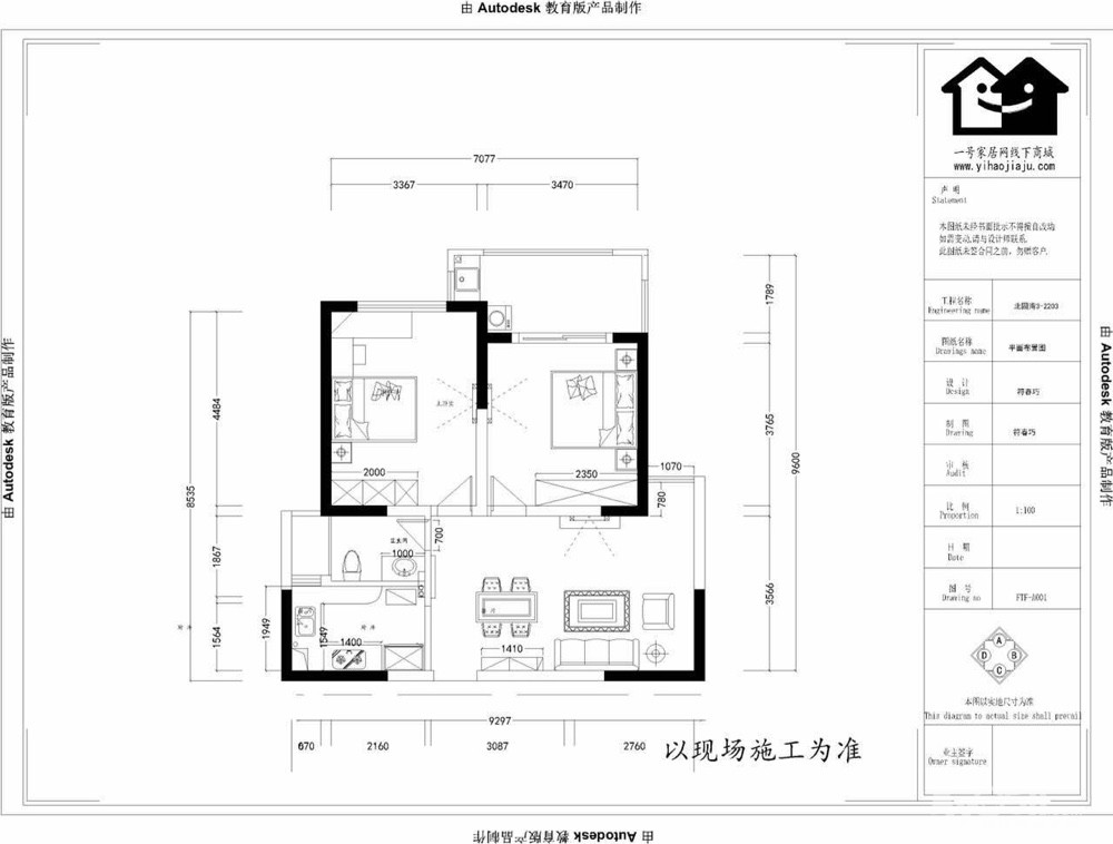
【小区名称】北固湾风景区
【所在楼层】22
【建筑面积】82
【装修风格】北欧
【装修公司】一号家居网
【装修方式】魔方家装整屋装修
【开工日期】2017年4月15日
【装修预算】大家能别问这个尴尬的问题嘛
【设计师】符春巧
---发自iPhone 7---
已有 伊慕装饰, 双羽木门专卖
2
人打赏
2017-9-15 17:16
1楼
[联宇电脑] 电脑组装\维修\升级\企业单位电脑维护!
查看全部
分享本楼
毛啦啦的啦
来自 安徽省
精华 0
注册 2017-8-17
做好的户型图方案给大家看看
---发自iPhone 7---
2017-9-15 17:24
2楼
买房、卖房、租房上镇江房产网!
查看全部
分享本楼
毛啦啦的啦
来自 安徽省
精华 0
注册 2017-8-17
剩下的就是预算的效果图,这里特别说下是预期,具体为什么,后面大家就知道了
---发自iPhone 7---
2017-9-15 17:31
3楼
[联宇电脑] 电脑组装\维修\升级\企业单位电脑维护!
查看全部
分享本楼
毛啦啦的啦
来自 安徽省
精华 0
注册 2017-8-17
完工也有一段时间了,还没入住!因为监理帮我记录下来了装修的点点滴滴。只能说,装修真是一件头疼的事情!还好也有人帮助我,想想自己也是庆幸的
---发自iPhone 7---
2017-9-15 17:35
4楼
MY0511相亲,一分钟注册,享一辈子幸福!
查看全部
分享本楼
毛啦啦的啦
来自 安徽省
精华 0
注册 2017-8-17
一入装修深似海,想必大家应该都懂是什么意思!从开始纠结自己装,到最后决定找装修公司,找一号家居网,也花费了不少时间!因为实话实说,自己平时的时间也没太多,所以也就选择了装修公司,而选择一号家也是因为家电家具也能同时搞定!当然,中间不存在是和和睦睦的,不过最后的结果是好的,那就可以了
---发自iPhone 7---
2017-9-15 17:39
5楼
MY0511相亲,一分钟注册,享一辈子幸福!
查看全部
分享本楼
毛啦啦的啦
来自 安徽省
精华 0
注册 2017-8-17
基本的开工仪式当然是不可缺少的,摆个8沾沾喜气
---发自iPhone 7---
2017-9-15 17:50
6楼
买房、卖房、租房上镇江房产网!
查看全部
分享本楼
毛啦啦的啦
来自 安徽省
精华 0
注册 2017-8-17
QUOTE:
原帖由
ck66504
于 2017-9-15 19:02 发表
楼主装修的很清爽,我在北固湾也有一套86的也想装北欧风格,楼主能短我一下你硬装软装一起花了多少吗
整个搞下来,大概12万左右
---发自iPhone 7---
2017-9-19 16:01
7楼
0511家装频道:本地家居服务平台,数万业主共同选择
查看全部
分享本楼
毛啦啦的啦
来自 安徽省
精华 0
注册 2017-8-17
单纯的分享下整个装修过程,完工也一段时间了!算了不废话了,大家应该还是喜欢看图
---发自iPhone 7---
2017-9-19 16:03
8楼
[联宇电脑] 电脑组装\维修\升级\企业单位电脑维护!
查看全部
分享本楼
毛啦啦的啦
来自 安徽省
精华 0
注册 2017-8-17
开工当天,保护就做好了
---发自iPhone 7---
2017-9-19 16:04
9楼
0511家装频道:本地家居服务平台,数万业主共同选择
查看全部
分享本楼
毛啦啦的啦
来自 安徽省
精华 0
注册 2017-8-17
等橱柜设计图出好,开始做水电了
---发自iPhone 7---
2017-9-19 16:05
10楼
[联宇电脑] 电脑组装\维修\升级\企业单位电脑维护!
查看全部
分享本楼
毛啦啦的啦
来自 安徽省
精华 0
注册 2017-8-17
稍微啰嗦下,水电是重重之重,毕竟是隐蔽工程嘛
---发自iPhone 7---
2017-9-19 16:06
11楼
[联宇电脑] 电脑组装\维修\升级\企业单位电脑维护!
查看全部
分享本楼
毛啦啦的啦
来自 安徽省
精华 0
注册 2017-8-17
不少人,想看,完工后的样子,这里先给大家看看吧!还没入住的时候拍的,现在家里有点儿乱,就不给大家吐槽了
---发自iPhone 7---
2017-9-19 16:08
12楼
找工作,就上MY0511!
查看全部
分享本楼
毛啦啦的啦
来自 安徽省
精华 0
注册 2017-8-17
应该大家明显感觉到了,与效果图有不少差异!和楼主也有一定关系,在过程中纠结了太多,也改了太多,虽说与预期效果有差异,但还是很满意
---发自iPhone 7---
2017-9-19 16:09
13楼
MY0511相亲,一分钟注册,享一辈子幸福!
查看全部
分享本楼
毛啦啦的啦
来自 安徽省
精华 0
注册 2017-8-17
想必大家应该开始准备吐槽了!那么,接下来是吊顶
---发自iPhone 7---
2017-9-19 16:11
14楼
MY0511相亲,一分钟注册,享一辈子幸福!
查看全部
分享本楼
毛啦啦的啦
来自 安徽省
精华 0
注册 2017-8-17
因为挑花了眼,所以瓷砖送的有点儿晚了,做好之后公司也给做了保护,服务还不错
---发自iPhone 7---
2017-9-19 16:55
15楼
[联宇电脑] 电脑组装\维修\升级\企业单位电脑维护!
查看全部
分享本楼
毛啦啦的啦
来自 安徽省
精华 0
注册 2017-8-17
紧接着就是地龙
---发自iPhone 7---
2017-9-19 17:40
16楼
MY0511相亲,一分钟注册,享一辈子幸福!
查看全部
分享本楼
毛啦啦的啦
来自 安徽省
精华 0
注册 2017-8-17
收尾了,一些成品的安装
---发自iPhone 7---
2017-9-19 17:41
17楼
找工作,就上MY0511!
查看全部
分享本楼
毛啦啦的啦
来自 安徽省
精华 0
注册 2017-8-17
整个过程,比较满意,虽说磕磕碰碰,不过还是要谢谢一号家居网的各位,你们辛苦了
---发自iPhone 7---
2017-9-19 17:42
18楼
买房、卖房、租房上镇江房产网!
查看全部
分享本楼
返回家庭装修
快速回复主题
游客
您目前还是游客,请
登录
或
注册
您目前是游客,本帖已被系统设置了自动关闭,不可回复!
文明交流,理性发言
0/5000字
<
>
请在打开的新窗口中支付完成打赏
我已完成支付打赏
支付失败重新支付
其他金额
打赏金额:
元
确定
支付打赏
提 现
打赏人
打赏金额(元)
打赏时间
伊慕装饰
1.00
2017-9-15 17:24
双羽木门专卖
1.00
2017-9-15 18:15
Powered by
Discuz! X 2
0.072841 s
清除 Cookies
-
镇江网友之家
-
手机版
论坛导航
关闭
吃喝玩乐
饮食男女
镇江钓友之家
菜菜鸟户外
镇江单车俱乐部
镜头里的镇江
畅游天下
猫狗总动员
视觉Coffeeshop摄影部落
花鸟鱼虫
婚姻.亲子.家庭
家有学子
谈婚论嫁
女性天地
母婴乐园
婚姻生活
梦溪佳缘
装修
家庭装修
装修招标
镇江室内设计师交流
装修商家直通车
你好,镇江!
百姓话题
我要买房
0511爱心家园
市场监管•12315热线
分类信息
生活服务
闲置转让
镇江二手房/镇江租房
镇江招聘求职
教育培训
镇江二手车
商铺厂房写字楼租售
宠物市场
运动健身
卡券交易
电脑维修升级
杂货铺
兴趣爱好
HiFi音响江城沙龙
镇江市美术家协会
我爱模型
车友俱乐部
车迷之家
汽车驾培中心
运动俱乐部
镇江市冬泳、铁人三项协会
聚焦足球
镇江羽毛球
镇江乒乓球协会
镇江网球协会
镇江市自行车运动协会
热爱篮球
动力机车
合作栏目
维权热线
天翼时代
色觉影像摄影工作室
站务区
疑问与建议
网络问政
市政府工作部门
垂直管理部门
党群工作部门
其他重点单位
辖市(区)