收藏本站
客户端
扫码下载客户端
官方微信
打开微信扫一扫
登录
|
注册
|
标题
标题
用户
全站首页
|
论坛导航
|
网络问政
|
招聘求职
|
买房租房
|
装修频道
|
生活服务
|
教育
|
相亲
|
亲子
|
美食
|
婚嫁
|
手机客户端
家有学子
|
母婴乐园
快捷导航
精彩推荐:
MY0511客户端下载
中信银行镇江分行
公益体彩 乐善人生
鹏龙鸿蒙
天然石材·人造石
»
梦溪论坛
»
家庭装修
» 微微简美,浓浓幸福——吾悦装修随记(已近尾声)
家庭装修
>
[装修日记]
微微简美,浓浓幸福——吾悦装修随记(已近尾声)
查看: 100068 回复: 158
快速回复
返回家庭装修
159
1/4
1
2
3
4
>
[装修日记]
微微简美,浓浓幸福——吾悦装修随记(已近尾声)
查看: 100068 回复: 158
上一主题
|
下一主题
无为99
来自 江苏省
精华 0
注册 2017-10-24
微微简美,浓浓幸福——吾悦装修随记(已近尾声)
【小区名称】:吾悦广场
【所在楼层】:22
【建筑面积】:143.5
【装修风格】:简 美
【包工方式】:半 包
【设计公司】:十二间工作室
【设 计 师】:王 欣
【装修公司】:苏 匠
【开工日期】:2018年11月23日
【装修预算】:待 定
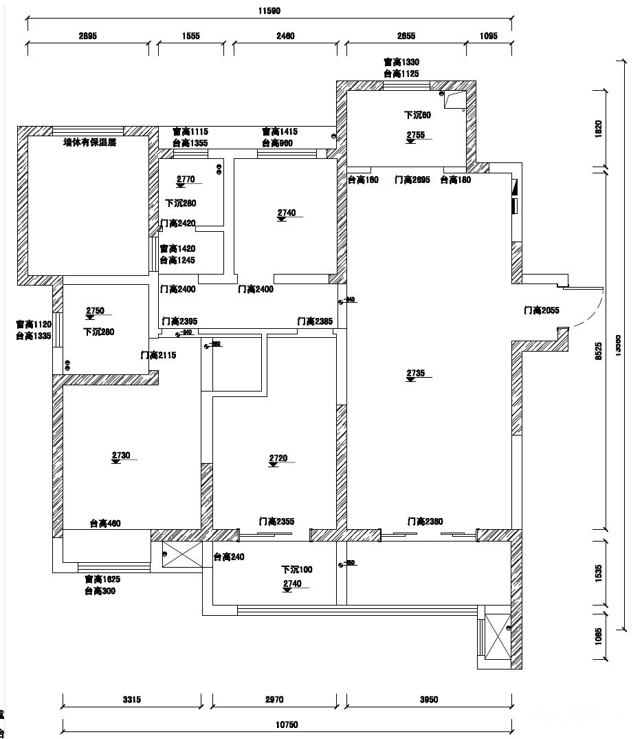
【户型图片】:
[
本帖最后由 无为99 于 18-7-27 07:39 编辑
]
已有 优金瓷美缝, 老友记装饰客服, 双羽木门专卖, 法诗雅移门, 红居装饰
5
人打赏
2017-10-24 21:40
1楼
买房、卖房、租房上镇江房产网!
查看全部
分享本楼
无为99
来自 江苏省
精华 0
注册 2017-10-24
经过很长时间的思想斗争,这个日记是写呢,还是不写呢?
真正是没有勇气提笔,也可能是现在的自己确实慵懒了。
十几年前,意气风发加入装修大军时的情景,还依稀记得,当时自己也曾写过一个不了了之的装修日记,也曾多次参加网友的团购会,还记得那时有个团长叫做天下有雪,泰山等当年的大神们,又已经在路上,可是我当年的ID都已经寻不到踪迹,罢了罢了,就让一切重新开始吧,我也该整装待发了。
不过我对自己真的是没有什么信心,一个没有文采的理工男,却又偏偏不是技术控,喜欢跟着感觉走,估计也写不出什么装修日记,暂且就叫做装修流水账吧,不为其他,十年轮回再次上路,重点是给自己一个交代吧!
总之,不管如何,我来了!
[
本帖最后由 无为99 于 17-10-25 10:03 编辑
]
2017-10-24 21:41
2楼
0511家装频道:本地家居服务平台,数万业主共同选择
查看全部
分享本楼
无为99
来自 江苏省
精华 0
注册 2017-10-24
说到买房,也应该属于激情买房吧,前期没有详细的规划,也没有过多的考察,仅仅是走进去看过了,就决定了,就这样子!
在等待了一年半之后,昨天终于拿到了钥匙,新家也如约揭开了神秘的面纱!
[
本帖最后由 无为99 于 17-10-25 10:03 编辑
]
2017-10-24 21:41
3楼
0511家装频道:本地家居服务平台,数万业主共同选择
查看全部
分享本楼
无为99
来自 江苏省
精华 0
注册 2017-10-24
经过十二间设计室设计师们的努力,效果图终
于千呼万唤始出来
[
本帖最后由 无为99 于 17-11-25 23:13 编辑
]
2017-10-24 21:41
4楼
MY0511相亲,一分钟注册,享一辈子幸福!
查看全部
分享本楼
无为99
来自 江苏省
精华 0
注册 2017-10-24
所选产品:
施工:苏匠装饰
设计:十二间工作室
水电材料:日丰、金貂、飞利浦
腻子:圣戈班
板材:艾格欧松板
橱柜:欧派橱柜
木门、护墙板、踢脚线:关亨木门
全屋定制:欧卡罗
油漆:芬琳漆
墙纸、软装:嫣然家居
家具:瑞格瑞奇、印象北美、雅苏格兰
移门:大自然移门
封阳台、外窗:撒诺凯
集成吊顶:美的集成吊顶
地板:大建地板
瓷砖:曼联瓷砖
美缝:时立
卫浴洁具:法恩莎
中央空调:东芝
冰箱、洗衣机:松下
洗碗机:西门子
燃气热水器:林内
强弱电箱、空气开关:施耐德(网购)
开关面板:施耐德、西蒙(网购)
升降衣架:好太太
指纹门锁、电子猫眼:海康威视莹石(网购)
射灯、筒灯:记忆点(网购)
室内门锁、五金:(网购)
保险箱:(网购)
床垫:舒达、爱舒
[
本帖最后由 无为99 于 18-4-21 00:06 编辑
]
2017-10-24 21:41
5楼
买房、卖房、租房上镇江房产网!
查看全部
分享本楼
无为99
来自 江苏省
精华 0
注册 2017-10-24
占楼
2017-10-24 21:42
6楼
[联宇电脑] 电脑组装\维修\升级\企业单位电脑维护!
查看全部
分享本楼
无为99
来自 江苏省
精华 0
注册 2017-10-24
占楼
2017-10-24 21:42
7楼
买房、卖房、租房上镇江房产网!
查看全部
分享本楼
无为99
来自 江苏省
精华 0
注册 2017-10-24
占楼
2017-10-24 21:42
8楼
[联宇电脑] 电脑组装\维修\升级\企业单位电脑维护!
查看全部
分享本楼
无为99
来自 江苏省
精华 0
注册 2017-10-24
占楼
2017-10-24 21:42
9楼
找工作,就上MY0511!
查看全部
分享本楼
无为99
来自 江苏省
精华 0
注册 2017-10-24
占这么多,也不知道用的上不
2017-10-24 21:43
10楼
0511家装频道:本地家居服务平台,数万业主共同选择
查看全部
分享本楼
无为99
来自 江苏省
精华 0
注册 2017-10-24
QUOTE:
原帖由
微斯人
于 17-10-24 21:59 发表
邻居同户型
邻居好,这不是巧了嘛,这不是
邻居房子拿了嘛?
2017-10-24 22:17
11楼
买房、卖房、租房上镇江房产网!
查看全部
分享本楼
无为99
来自 江苏省
精华 0
注册 2017-10-24
QUOTE:
原帖由
A尚工美缝
于 17-10-24 22:06 发表
恭喜楼主
谢谢尚工!
2017-10-24 22:18
12楼
找工作,就上MY0511!
查看全部
分享本楼
无为99
来自 江苏省
精华 0
注册 2017-10-24
QUOTE:
原帖由
非诚勿窈
于 17-10-25 00:12 发表
邻居好
,同一单元
邻居好邻居好!不过在下有一事不明,您是怎么判断出我们是一个单元的啊
2017-10-25 00:22
13楼
[联宇电脑] 电脑组装\维修\升级\企业单位电脑维护!
查看全部
分享本楼
无为99
来自 江苏省
精华 0
注册 2017-10-24
前面前前后后的也跑了几家装修公司,最后情定苏匠!
理由?似乎没有理由!谈得来算吗!不管是跟王总吹牛逼,还是跟王帅哥沟通想法,都感觉很舒服,所以就他了。
还是跟着感觉走吧,真正的理由可能需要苏匠和时间来给我吧!
感谢王总、王欣百忙之中抽身来现场莅临指导,荣幸之至!
[
本帖最后由 无为99 于 17-10-25 10:13 编辑
]
2017-10-25 09:54
14楼
[联宇电脑] 电脑组装\维修\升级\企业单位电脑维护!
查看全部
分享本楼
无为99
来自 江苏省
精华 0
注册 2017-10-24
QUOTE:
原帖由
流尘
于 17-10-25 09:52 发表
恭喜邻居开贴呀,看见你们的文笔都这么好,我都不好意思更贴了
流尘兄,就别埋汰哥哥了,我这也叫文笔啊
装修流水账,拿不上台面,仅仅是记录一下装修点滴,为自己的装修留下一点点痕迹而已!!
2017-10-25 09:59
15楼
买房、卖房、租房上镇江房产网!
查看全部
分享本楼
无为99
来自 江苏省
精华 0
注册 2017-10-24
QUOTE:
原帖由
优金瓷美缝
于 17-10-25 09:58 发表
看错了。这头像太像了
没关系,那是我邻居,欢迎优总来做客!!
2017-10-25 10:01
16楼
买房、卖房、租房上镇江房产网!
查看全部
分享本楼
无为99
来自 江苏省
精华 0
注册 2017-10-24
QUOTE:
原帖由
柏尔地板
于 17-10-25 13:12 发表
恭喜恭喜,一切顺利!
谢谢老板,生意兴隆!
2017-10-25 13:15
17楼
[联宇电脑] 电脑组装\维修\升级\企业单位电脑维护!
查看全部
分享本楼
无为99
来自 江苏省
精华 0
注册 2017-10-24
QUOTE:
原帖由
好莱客全屋定制
于 17-10-25 14:12 发表
恭喜恭喜
感谢老板大驾光临!
---发自vivo---
2017-10-25 22:30
18楼
买房、卖房、租房上镇江房产网!
查看全部
分享本楼
无为99
来自 江苏省
精华 0
注册 2017-10-24
QUOTE:
原帖由
佳安舒适家
于 17-10-25 14:44 发表
恭喜开工~~
感谢老板关注!
---发自vivo---
2017-10-25 22:31
19楼
[联宇电脑] 电脑组装\维修\升级\企业单位电脑维护!
查看全部
分享本楼
无为99
来自 江苏省
精华 0
注册 2017-10-24
QUOTE:
原帖由
万达壁纸软装
于 17-10-25 17:30 发表
恭喜啊,关注下,邻居
邻居好,欢迎邻居来串门!
---发自vivo---
2017-10-25 22:32
20楼
[联宇电脑] 电脑组装\维修\升级\企业单位电脑维护!
查看全部
分享本楼
无为99
来自 江苏省
精华 0
注册 2017-10-24
QUOTE:
原帖由
泰山
于 17-10-25 22:00 发表
你也是10来年之前的装大同学啊?你再想想你当年的ID呢
今年装修我们又同是选择了十二间设 ...
泰山大神好!今天能有勇气开帖,有一半是因为大神的督促!曾经的ID好像叫自由落体1999,可是密码忘记了,那时没有绑定手机,找了好久未果,一个新的ID,一个新的开始,也未尝不是一件好事!是啊,缘分啊,正所谓人生何处不相逢,还望多多指教!!
[
本帖最后由 无为99 于 17-10-26 08:32 编辑
]
---发自vivo---
2017-10-25 22:36
21楼
[联宇电脑] 电脑组装\维修\升级\企业单位电脑维护!
查看全部
分享本楼
无为99
来自 江苏省
精华 0
注册 2017-10-24
QUOTE:
原帖由
delarge
于 17-10-25 22:18 发表
恭喜开贴,王欣设计,苏匠施工,必定又是和泰山大哥家一样的精品
如果没认错,应该是呱呱兄弟吧,大名如雷贯耳!欢迎莅临指导!
---发自vivo---
2017-10-25 22:40
22楼
找工作,就上MY0511!
查看全部
分享本楼
无为99
来自 江苏省
精华 0
注册 2017-10-24
QUOTE:
原帖由
微斯人
于 17-10-25 22:16 发表
我也在跑材料呢,你啥时开工啊
现在在等设计,何时开工取决于设计什么时候能够完成!!我们一样刚刚上路,加油哦!
---发自vivo---
2017-10-25 22:42
23楼
0511家装频道:本地家居服务平台,数万业主共同选择
查看全部
分享本楼
无为99
来自 江苏省
精华 0
注册 2017-10-24
QUOTE:
原帖由
洛克华菲.滑动门
于 17-10-25 22:47 发表
恭喜恭喜开工大吉
谢谢洛克大驾光临,生意兴隆哦!
2017-10-26 08:33
24楼
找工作,就上MY0511!
查看全部
分享本楼
无为99
来自 江苏省
精华 0
注册 2017-10-24
好久没有来更新了,主要原因是最近比较忙,并且项目还处于准备阶段,所以懈怠了(其实就是懒癌发病,怕提笔),
好了好了,不找借口了,希望以后发奋图强
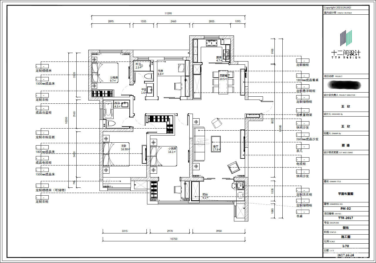
设计方案图纸,其实早在上周就已经拿到了,只是因为自己喜欢拖延的臭毛病,所以一直到今天才得以公布于众:
原始图:
方案图:
[
本帖最后由 无为99 于 17-11-6 14:31 编辑
]
2017-11-6 10:04
25楼
MY0511相亲,一分钟注册,享一辈子幸福!
查看全部
分享本楼
无为99
来自 江苏省
精华 0
注册 2017-10-24
吾悦这个户型总体的布局还是不错的,
整体上也不需要做大的改动。
最主要的缺点是两个卫生间的空间比较拥挤。
客卫湿区较小,
设计师建议使用浴帘,
但是考虑实用性,
我还是决定用隔断,
牺牲一部分淋浴房内的空间。
主卫如果使用淋浴房,
可能不会这么拥挤,
只是女儿有一个浴缸的梦想,
是必须要满足的,
所有有条件要上,
没有条件创造条件也要上!
[
本帖最后由 无为99 于 17-11-6 10:36 编辑
]
2017-11-6 10:15
26楼
MY0511相亲,一分钟注册,享一辈子幸福!
查看全部
分享本楼
无为99
来自 江苏省
精华 0
注册 2017-10-24
还有一个头疼的问题,
就是原户型主卧的衣帽间太迷你了,
所以经过再三斟酌,
还是觉得将衣帽间的墙体向儿童房方向移动,
以扩展衣帽间的空间。
在衣帽间门的使用上,
设计师建议我们使用布帘,
这样可以节省空间,
真的感觉这个想法很棒,
但是我们还是喜欢中规中矩的房门形式,
可能我们真的是年纪大了,
不太善于接受新鲜事物吧
这个门也可以做成隐藏式的推拉门,
但是设计师说这样费用会比普通平开门高一些,
考虑性价比,
我们还是共同决定就使用平开门方式!
在这里赞一下设计师王欣,
能切实的为客户考虑,
非常棒!!
[
本帖最后由 无为99 于 17-11-6 14:29 编辑
]
2017-11-6 10:23
27楼
买房、卖房、租房上镇江房产网!
查看全部
分享本楼
无为99
来自 江苏省
精华 0
注册 2017-10-24
其实,
设计中改动最大了,
也就算是大阳台了。
很多邻居,
就是因为看中了大阳台才买的房子。
大阳台我也喜欢,
但是儿童房有点小,
满足不了孩子生活、学习以及娱乐的需求,
所以从实用角度考虑,
毅然将大阳台一分为二,
将部分空间划入儿童房中。
还有一处改动,
就是将北面书房的门洞扩展,
做成玻璃推拉门的形式,
这样既能让整个廊道光线得到改善,
显得亮堂一些,
视觉上也可以缓解狭长廊道的不舒适感,
这个想法也是在0511TX的装修帖子中看到的,
非常幸运能够站在巨人的肩膀上
在此鸣谢(虽然不记得是哪位同学了)!
[
本帖最后由 无为99 于 17-11-6 14:30 编辑
]
2017-11-6 10:35
28楼
[联宇电脑] 电脑组装\维修\升级\企业单位电脑维护!
查看全部
分享本楼
无为99
来自 江苏省
精华 0
注册 2017-10-24
感谢前来道喜的各位领导,
感谢你们在百忙之中光临寒舍,
希望以后能经常莅临指导,
不到之处,
请多多指教!
在此集中感谢,
就不一一回复了!!
[
本帖最后由 无为99 于 17-11-6 14:30 编辑
]
2017-11-6 10:42
29楼
0511家装频道:本地家居服务平台,数万业主共同选择
查看全部
分享本楼
无为99
来自 江苏省
精华 0
注册 2017-10-24
QUOTE:
原帖由
泰山
于 17-10-30 23:19 发表
自由落体1999这个ID,我是有印象的,我2006年装修时我们有过交流的;
刚才搜索到了你们当年的装修日记:[url=http://bbs.my0511.com/f95b-t654069z?highlight]http://bbs.my05 ...
大神把那个帖子翻出来了,
那套是清包的,
那个帖子最后也是不了了之,
没有最终完成,
实在是惭愧之至!
这次,
一定有始有终的将帖子完成,
不负大神期望
[
本帖最后由 无为99 于 17-11-6 10:46 编辑
]
2017-11-6 10:46
30楼
买房、卖房、租房上镇江房产网!
查看全部
分享本楼
无为99
来自 江苏省
精华 0
注册 2017-10-24
QUOTE:
原帖由
奥朵灯饰
于 17-11-6 12:43 发表
恭喜开工 奥朵灯饰线上线下同款同价!
谢谢你,有关注奥朵!
2017-11-6 14:29
31楼
MY0511相亲,一分钟注册,享一辈子幸福!
查看全部
分享本楼
无为99
来自 江苏省
精华 0
注册 2017-10-24
QUOTE:
原帖由
delarge
于 17-11-1 00:22 发表
不知无为大哥如何称呼,大家认识就是缘分
说来您才是装大前辈,和泰山大哥都是我的前辈呢
泰山算前辈,我不算,当年都没有修成正果之徒
!朋友,大家都是朋友
!!
2017-11-6 15:27
32楼
0511家装频道:本地家居服务平台,数万业主共同选择
查看全部
分享本楼
无为99
来自 江苏省
精华 0
注册 2017-10-24
QUOTE:
原帖由
双羽木门专卖
于 17-11-5 11:10 发表
都是装大的前辈啊,我就看看我不说话
不说话可不好,要说,而且要多说!!
2017-11-6 15:28
33楼
[联宇电脑] 电脑组装\维修\升级\企业单位电脑维护!
查看全部
分享本楼
无为99
来自 江苏省
精华 0
注册 2017-10-24
纠结之一:
说到纠结,
首先纠结的就是厨房间。
到底是开放式厨房还是封闭式厨房,
这,是一个问题!
开放式厨房可以把厨房橱柜的台面延伸到餐厅,
对于我本来就不大的厨房尤其适合;
开放式厨房可以把吊顶和餐厅吊顶融为一体,
不用在另外选择集成吊顶,
想想都美如画!
BUT
我还是选择了封闭式厨房,
还是选择了移门、集成吊顶……
理由我想大家也会明白,
就不在此赘述了!!
等下,让我伤心一秒钟
2017-11-6 15:36
34楼
[联宇电脑] 电脑组装\维修\升级\企业单位电脑维护!
查看全部
分享本楼
无为99
来自 江苏省
精华 0
注册 2017-10-24
纠结之二:
第二个纠结的问题,
就是整体风格的问题!
买房之初,
想要装欧式风格,
后来发现有些繁杂,pass!
之后想装美式,
但是简美、小美、现代美式、美式轻奢、美式田园、传统美式……
额的娘啊,
都是什么鬼……
[
本帖最后由 无为99 于 17-11-6 15:45 编辑
]
2017-11-6 15:44
35楼
买房、卖房、租房上镇江房产网!
查看全部
分享本楼
无为99
来自 江苏省
精华 0
注册 2017-10-24
有困难,
找王欣
设计师让我们去看家具,
根据家具的风格来确定自己想要的到底是什么!
于是便不停在六空、月星、红星里鬼转,
寻找自己喜欢的款式,
不停网上搜索,
绝不放过任何一种渠道!
设计师建议我们选择现代美式或者带点美式轻奢感觉的,
可是看看觉得不是自己想要的感觉,
而我们看中的一些款式和颜色,
更加有点传统美式的小美风格,
我在想,
这可能再次证明,
我已经老了
2017-11-6 15:55
36楼
0511家装频道:本地家居服务平台,数万业主共同选择
查看全部
分享本楼
无为99
来自 江苏省
精华 0
注册 2017-10-24
虽然跟设计师在风格的喜好上有分歧,
但是设计师还是鼓励我们选择自己喜欢的,
好吧,
我还是跟着感觉走吧,
选我所爱,
其他的就交给设计师啦
期待王欣完美的设计,
帅哥,加油!!
2017-11-6 15:59
37楼
买房、卖房、租房上镇江房产网!
查看全部
分享本楼
无为99
来自 江苏省
精华 0
注册 2017-10-24
下面是我选的部分家具,
只需赞扬,
批评可以放在心里
1+3沙发:
餐桌椅:
主卧电视柜:
儿童房床(靠背皮质颜色改粉色):
客厅电视柜、茶几:
[
本帖最后由 无为99 于 17-11-6 21:46 编辑
]
2017-11-6 16:46
38楼
[联宇电脑] 电脑组装\维修\升级\企业单位电脑维护!
查看全部
分享本楼
无为99
来自 江苏省
精华 0
注册 2017-10-24
QUOTE:
原帖由
delarge
于 17-11-7 01:04 发表
基本就是美式风格了哦
嗯嗯,是的啊,纠结了好久,还是觉得这种比较有感觉!!
2017-11-7 08:44
39楼
MY0511相亲,一分钟注册,享一辈子幸福!
查看全部
分享本楼
无为99
来自 江苏省
精华 0
注册 2017-10-24
QUOTE:
原帖由
勤劳的毛驴
于 17-11-7 23:11 发表
邻居,美式的
是的,美式!邻居呢,开工了没?
2017-11-8 12:24
40楼
0511家装频道:本地家居服务平台,数万业主共同选择
查看全部
分享本楼
无为99
来自 江苏省
精华 0
注册 2017-10-24
QUOTE:
原帖由
wj03011133
于 17-11-7 23:57 发表
美式风格后期家具的预算要放宽,不过猴哥对预算的把控还是到位的,期待后期效果
欢迎清者光临寒舍!家具基本看的差不多了,下面的工作,就交给猴哥了,期待中……
2017-11-8 12:26
41楼
找工作,就上MY0511!
查看全部
分享本楼
无为99
来自 江苏省
精华 0
注册 2017-10-24
这几天红星、月星、六空转了一圈又一圈,
终于把主卧室的床和床头柜搞定了,
再转下去,
非吐不可
主卧的床及床头柜:
[
本帖最后由 无为99 于 17-11-8 12:33 编辑
]
2017-11-8 12:32
42楼
MY0511相亲,一分钟注册,享一辈子幸福!
查看全部
分享本楼
无为99
来自 江苏省
精华 0
注册 2017-10-24
QUOTE:
原帖由
女主角520
于 17-11-14 13:03 发表
我最近也在跑市场,看了很多材料,然后决定团购美的吊顶,所以如果你也对她家感兴趣,我们可以一起去团购砍价
我的电话13376169966
美的吊顶美女团长,我也在装修群里,我知道你哦!!
2017-11-25 23:24
43楼
0511家装频道:本地家居服务平台,数万业主共同选择
查看全部
分享本楼
无为99
来自 江苏省
精华 0
注册 2017-10-24
QUOTE:
原帖由
wlf321310
于 17-11-17 11:33 发表
恭喜恭喜!闲谈之余向同行学习,希望提出宝贵意见,孔雀城22栋608效果图
奢华!
2017-11-25 23:24
44楼
MY0511相亲,一分钟注册,享一辈子幸福!
查看全部
分享本楼
无为99
来自 江苏省
精华 0
注册 2017-10-24
今天是个好日子!!
王欣说11.23是个好日子,
好,
既然万事俱备,
那就11.23,
开工!!
[
本帖最后由 无为99 于 17-11-25 23:52 编辑
]
2017-11-25 23:36
45楼
MY0511相亲,一分钟注册,享一辈子幸福!
查看全部
分享本楼
无为99
来自 江苏省
精华 0
注册 2017-10-24
QUOTE:
原帖由
微斯人
于 17-11-14 14:30 发表
楼主,家具哪家店啊,麻烦短个价,多谢!
邻居好,家具是第六空间瑞格瑞奇家的,价格已短!
[
本帖最后由 无为99 于 17-11-27 08:22 编辑
]
2017-11-25 23:54
46楼
0511家装频道:本地家居服务平台,数万业主共同选择
查看全部
分享本楼
无为99
来自 江苏省
精华 0
注册 2017-10-24
今天已经开始铲墙了!
此刻的断壁残垣、破败不堪,
是为了明天的更加美好吧,
这是不是就是所谓的“不破不立”啊!!
[
本帖最后由 无为99 于 17-11-26 00:04 编辑
]
2017-11-26 00:02
47楼
0511家装频道:本地家居服务平台,数万业主共同选择
查看全部
分享本楼
无为99
来自 江苏省
精华 0
注册 2017-10-24
QUOTE:
原帖由
delarge
于 17-11-26 00:14 发表
六度空间是什么?
错了错了,是第六空间,哈哈!不过我给它起的名字好像还挺好听吧!!
2017-11-26 08:28
48楼
0511家装频道:本地家居服务平台,数万业主共同选择
查看全部
分享本楼
无为99
来自 江苏省
精华 0
注册 2017-10-24
QUOTE:
原帖由
delarge
于 17-11-27 00:09 发表
六度空间好像是个女生用品的名字吧?
哦,这个还真不知道!瓜瓜大神博学
2017-11-27 06:40
49楼
买房、卖房、租房上镇江房产网!
查看全部
分享本楼
无为99
来自 江苏省
精华 0
注册 2017-10-24
原来的白墙,铲或者不铲,一直有两种声音。
有人说,开发商用的腻子很好,根本没必要铲,浪费钱;
有的人说,考虑到施工质量,必须铲,好吧,可能大家都有道理。
不过我还是主张铲除的,不是因为钱多没处花,只是觉得铲了自己做比较放心!
不过,看着工人铲下的一地白屑,还是有些心疼,感觉浪费的很!!
[
本帖最后由 无为99 于 17-11-30 22:45 编辑
]
2017-11-27 06:42
50楼
[联宇电脑] 电脑组装\维修\升级\企业单位电脑维护!
查看全部
分享本楼
返回家庭装修
159
1/4
1
2
3
4
>
快速回复主题
游客
您目前还是游客,请
登录
或
注册
您目前是游客,本帖已被系统设置了自动关闭,不可回复!
文明交流,理性发言
0/5000字
<
>
请在打开的新窗口中支付完成打赏
我已完成支付打赏
支付失败重新支付
其他金额
打赏金额:
元
确定
支付打赏
提 现
打赏人
打赏金额(元)
打赏时间
优金瓷美缝
1.00
2017-10-25 06:54
老友记装饰客服
1.00
2017-10-28 09:21
双羽木门专卖
1.00
2017-11-5 10:57
法诗雅移门
1.00
2017-11-5 17:14
红居装饰
1.00
2018-3-12 10:04
Powered by
Discuz! X 2
0.109148 s
清除 Cookies
-
镇江网友之家
-
手机版
论坛导航
关闭
吃喝玩乐
饮食男女
镇江钓友之家
菜菜鸟户外
镇江单车俱乐部
镜头里的镇江
畅游天下
猫狗总动员
视觉Coffeeshop摄影部落
花鸟鱼虫
婚姻.亲子.家庭
家有学子
谈婚论嫁
女性天地
母婴乐园
婚姻生活
梦溪佳缘
装修
家庭装修
装修招标
镇江室内设计师交流
装修商家直通车
你好,镇江!
百姓话题
我要买房
0511爱心家园
市场监管•12315热线
分类信息
生活服务
闲置转让
镇江二手房/镇江租房
镇江招聘求职
教育培训
镇江二手车
商铺厂房写字楼租售
宠物市场
运动健身
卡券交易
电脑维修升级
杂货铺
其他分类信息区
兴趣爱好
HiFi音响江城沙龙
镇江市美术家协会
我爱模型
车友俱乐部
车迷之家
汽车驾培中心
运动俱乐部
镇江市冬泳、铁人三项协会
聚焦足球
镇江羽毛球
镇江乒乓球协会
镇江网球协会
镇江市自行车运动协会
热爱篮球
动力机车
合作栏目
维权热线
天翼时代
色觉影像摄影工作室
站务区
疑问与建议
网络问政
市政府工作部门
垂直管理部门
党群工作部门
其他重点单位
辖市(区)