《秋品记事》
小区名称:美的城2期
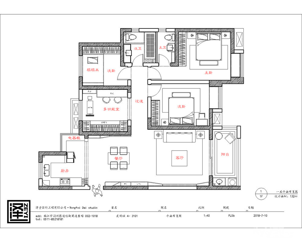
面积 :132㎡
风格:新中式
包工方式:半包
设计、施工单位:泽一设计



概况:本案是美的城2期新交付的一个边户,一家三口与我们从第一次见面到开始施工都非常投机。
叔叔是一位和蔼带着风趣的成熟男人,女儿则是很聪明,阿姨言语虽然不多却不失微笑。
前期由于方案沟通的非常顺利,前后也就一礼拜的时间顺利的在8月8号一个非常吉利的日子开工了。
因是三代同堂,所以方案的格局上并未做太多改动,与业主各个方面沟通到位的情况下
做了更多功能性使用性上便利于他们的优化。

设计思路:通长的客餐厅联动厨房在一线上略显呆板
所以在电视背景及餐区背景上做了曲面造型处理,使得进户不会一眼望穿,反而带出一点幽深感
与该案例的风格相契合。沙发的背景同样是围绕新中式概念做了造型。
客厅的电视背景联通展示柜及鞋柜,不紧增加了空间的曲伸感,也解决了独立柜体的尴尬不能融入整体。
爱运动的叔叔有一台跑步机放在了原来的一个小房间内,家中老人的卧室自然放在了靠近卫生间的房间,
多功能室集一家子的运动休闲储物,房门也改为了移门增加过道的采光通风性。


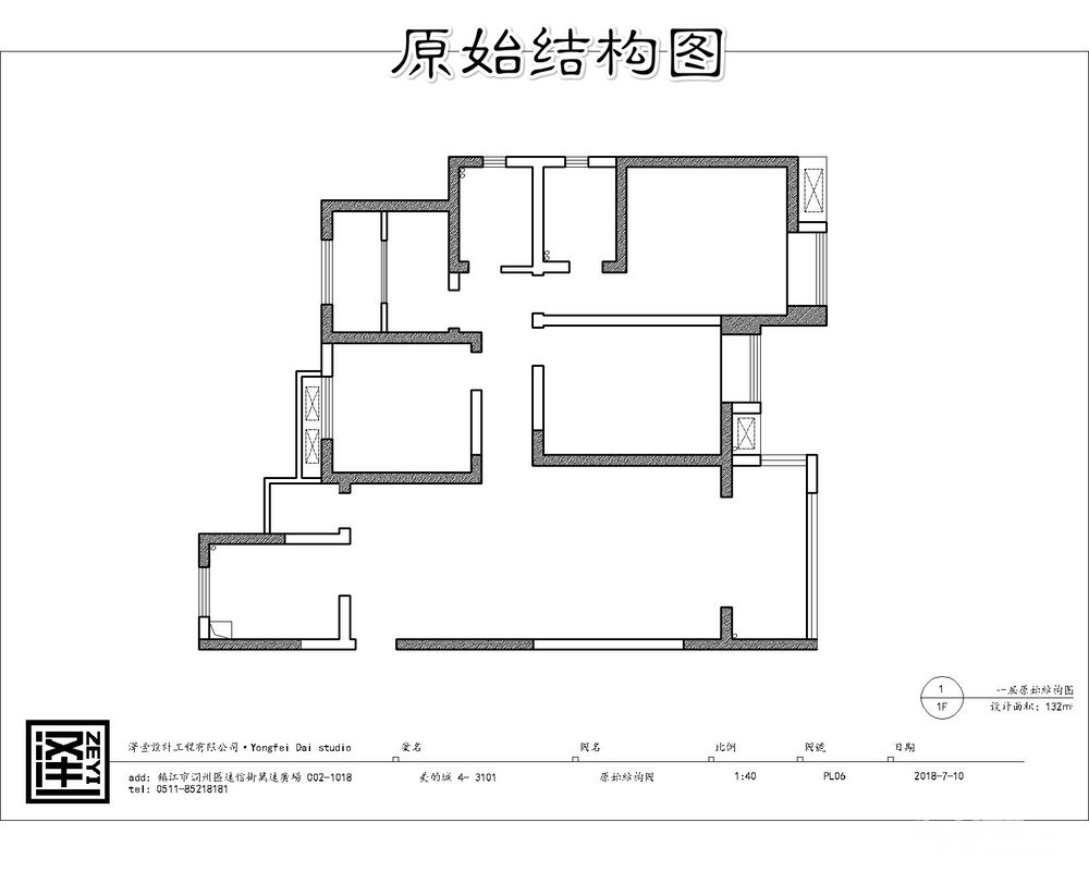
下为拆墙阶段结束工地照


水电已施工结束


瓦工施工结束

持续更新中,敬请期待哦。。。
[ 本帖最后由 泽一设计 于 2018-10-21 15:44 编辑 ]








