| 标题
快捷导航

精彩推荐:MY0511客户端下载

    • 中信银行镇江分行

    • 公益体彩 乐善人生

    • 鹏龙鸿蒙

    • 天然石材·人造石

    » 梦溪论坛 » 家庭装修 » 泽一设计 » [泽一设计在建工地]——江南世家79栋(已完工)
    泽一设计  >  [泽一设计在建工地]——江南世家79栋(已完工)     
    查看: 6596  回复: 10
    [泽一设计在建工地]——江南世家79栋(已完工)      查看: 6596  回复: 10
    • 来自 江苏省
    • 精华 75
    • 注册 2018-3-2
    • 行业 房产建筑
    •  
    [泽一设计在建工地]——江南世家79栋(已完工)

    {本帖只展示工地进展}



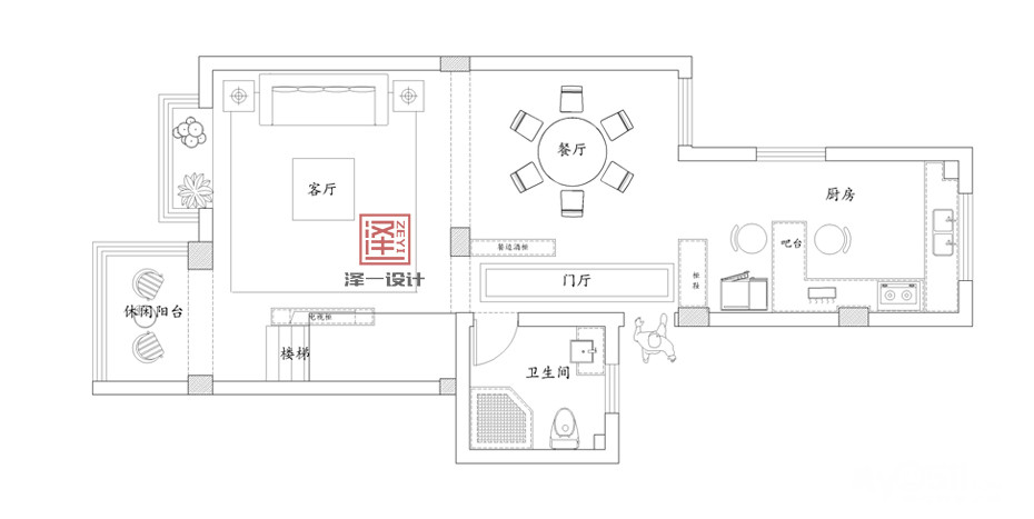
    户型面积:132㎡

    装修风格:简美

    装修模式:半包

    开工日期:2019年3月1日

    设计/施工:泽一设计中心




    一层平面布局






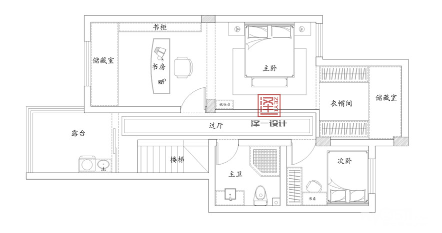
    二层平面布局








    全景效果图点击下方链接查看

    【此处为站外链接,请谨慎打开】






    [ 本帖最后由 泽一设计 于 2023-8-7 14:44 编辑 ]





                      
    • 来自 江苏省
    • 精华 75
    • 注册 2018-3-2
    • 行业 房产建筑
    •  

    ▷拆除 (3月18日业主之前现浇楼梯养护完成,3月20日拆除清扫结束)






    • 来自 江苏省
    • 精华 75
    • 注册 2018-3-2
    • 行业 房产建筑
    •  

    ▷砌墙(3月23日)













    • 来自 江苏省
    • 精华 75
    • 注册 2018-3-2
    • 行业 房产建筑
    •  

    ▷水电进场(3月29日,4月8日中央空调安装)












    • 来自 江苏省
    • 精华 75
    • 注册 2018-3-2
    • 行业 房产建筑
    •  

    ▷木工进场施工(4月14日)















    [ 本帖最后由 泽一设计 于 2019-6-12 16:06 编辑 ]




    • 来自 江苏省
    • 精华 75
    • 注册 2018-3-2
    • 行业 房产建筑
    •  

    ▷瓦工进场施(4月28日)














    • 来自 江苏省
    • 精华 75
    • 注册 2018-3-2
    • 行业 房产建筑
    •  

    ▷油漆进场施工(6月9日,已三遍腻子结束,待干之后进行打磨)






    • 来自 江苏省
    • 精华 75
    • 注册 2018-3-2
    • 行业 房产建筑
    •  

    ▷人工带灯打磨油漆结束(6月15日)








    • 来自 江苏省
    • 精华 75
    • 注册 2018-3-2
    • 行业 房产建筑
    •  

    ▷大安装6月18日






    • 来自 江苏省
    • 精华 75
    • 注册 2018-3-2
    • 行业 房产建筑
    •  










    • 来自 江苏省
    • 精华 75
    • 注册 2018-3-2
    • 行业 房产建筑
    •  

    ▷移门墙纸安装,后续家具进场 7月21日保洁










    查看积分策略说明快速回复主题
    您目前还是游客,请 登录注册
    您目前是游客,本帖已被系统设置了自动关闭,不可回复!

    0/5000字

     
    < >
     

    Powered by Discuz! X 2 0.073137 s 清除 Cookies - 镇江网友之家 - 手机版
    论坛导航 关闭