雍和雅苑地处镇江市京口区,东接孟家湾湿地公园,西靠江苏大学,周边学府林立,享有众多商业中心。
低密住宅,生活舒适;内有美景,外接繁华;闹中取静,奢享荣华。
户型解析
本期户型解析为大家带来雍和雅苑两套主力户型的优缺点解析,以及设计师针对户型不足之处进行全面改造的独家方案,诚意满满,不容错过~

户型特点
House Feactures
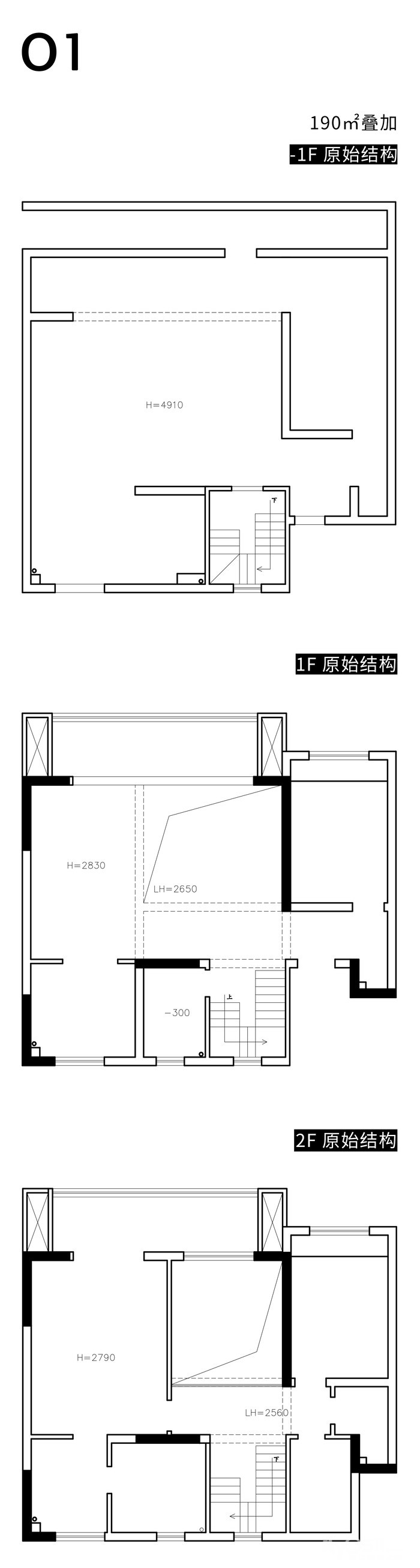
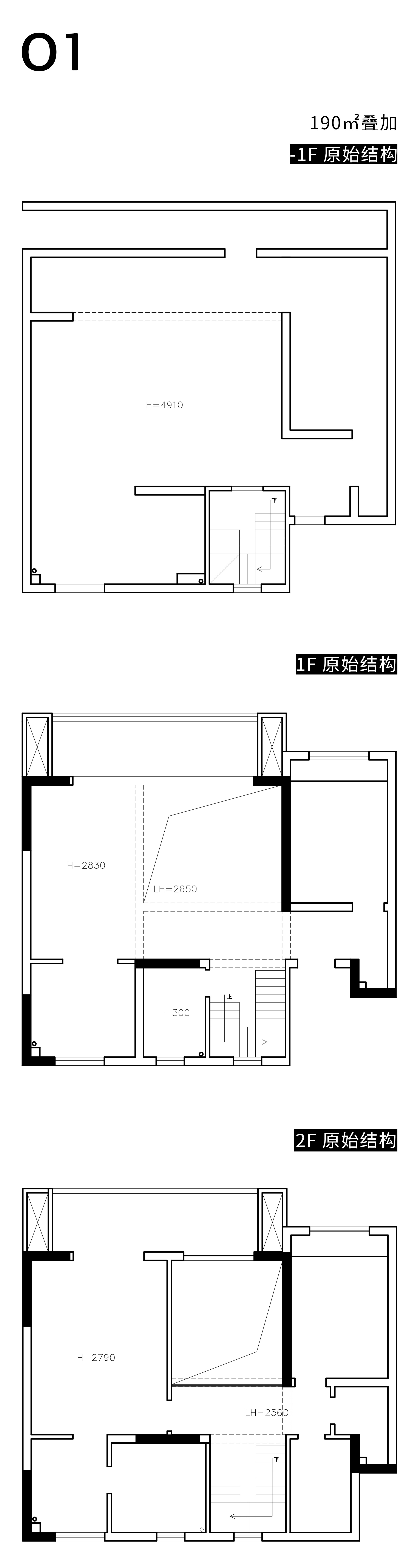
三开间朝南,整体户型方正,空间分配合理
客餐厅横厅达到7米以上,比较舒适的空间
较其它大户型房屋而言
入户空间较小,没有足够的入户储物区域

户型特点
House Feactures
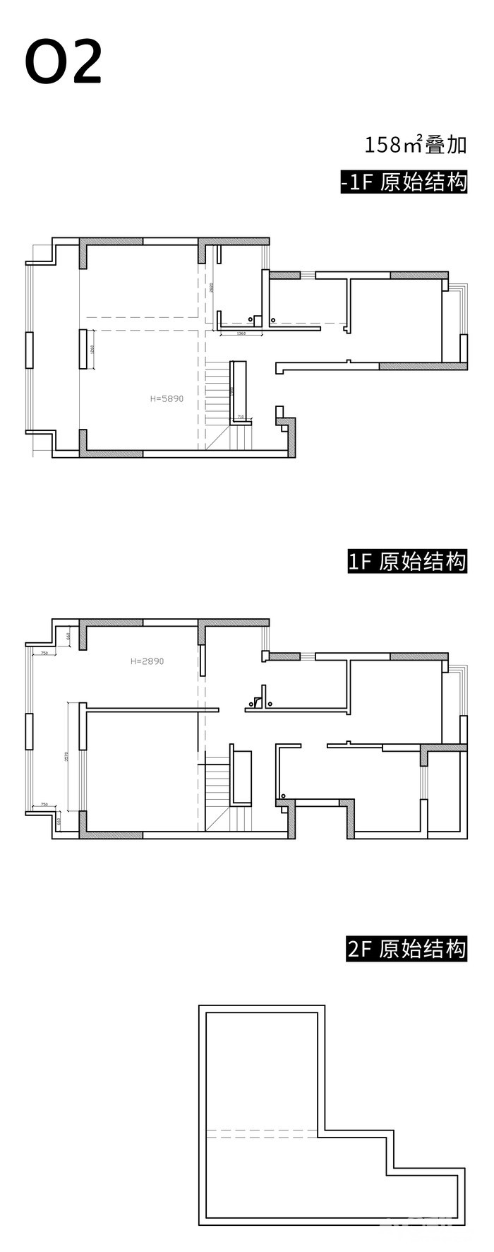
客餐厅采用横厅设计,采光、空间感好
厨房与餐厅相连,生活更加便利
上下两层超大双阳台,可利用空间大
厨房较小
北面为卧室,有过道连通,导致南北通风略差
改造方案


欢迎雍和雅苑业主朋友进店
与设计师一对一进行户型探讨
深度了解自家房屋构造与专属优化方案
下期户型解析预告
中南·林清月雅苑
敬请期待
泽一设计
-COO Design-


[ 本帖最后由 泽一设计 于 2022-5-28 13:48 编辑 ]







