(林清月雅苑工程最新进度)
中南·林清月雅苑地处镇江市润州区官塘桥路与环山路交汇处,南靠官塘中学,西接南山风景区,山林相望,风光相与,放眼望去皆是自然原始的生命。
楼盘调研
交付在即,设计先行。我们在楼盘施工中对其进行了全面的调研,关注楼盘动态,进行实地测量,研讨设计方案,目前也有意向业主。
截止五月底,林清月13#-38#已基本完工,10#、11#目前在完善电梯,8#、9#在建中,1#-7#还未建立。

25#-29#,33#预计将于今年6月底首批交付,面积约135-182㎡;
13#,15#-23#,30#-32#,35#-38#预计今年12月份第二批交付,面积约135-182㎡;
10#,11#预计2023年11月份第三批交付,户型为洋房,面积约120-122㎡。

(设计师实地勘察户型并测量)



(林清月工地现场照片)

(户型方案研讨)

(户型优化方案)
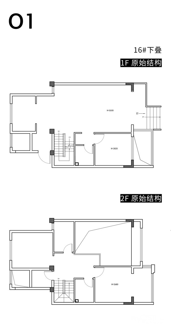
户型解析
本期户型解析为林清月雅苑16#叠加的户型优缺点分析,希望各位业主在等待交付的日子里能够提前深入地了解并满足自己对新家的幻想~
(上叠阁楼及下叠地下室暂无法测量,敬请谅解)

户型特点
House Feactures
独立门厅,三房朝南
南北通透,采光好
下叠比上叠多一个房间
每个卧室空间都很大
可满足三代人同时居住的空间
房屋中有个别暗间
厨房空间略小,但是可改性大

我们已为打造您的新家做好充分的准备
设计师针对户型特点已做好优化改造方案
您可添加下方客服微信
说出心中疑虑
我们会以专业的角度为您解答
下期户型解析预告
福临广场
敬请期待
泽一设计
-COO·Design-

[ 本帖最后由 泽一设计 于 2022-6-30 16:13 编辑 ]









