泽一 落地设计
Choose Only One

HOME ·「Wild in nature 野在自然 」
项目面积 / Area:280㎡(实际设计面积)
项目风格 / Style:简约欧式
服务模式 / Service Pattern:设计+基装施工+全案
项目地址 / Project Address:江山府联排

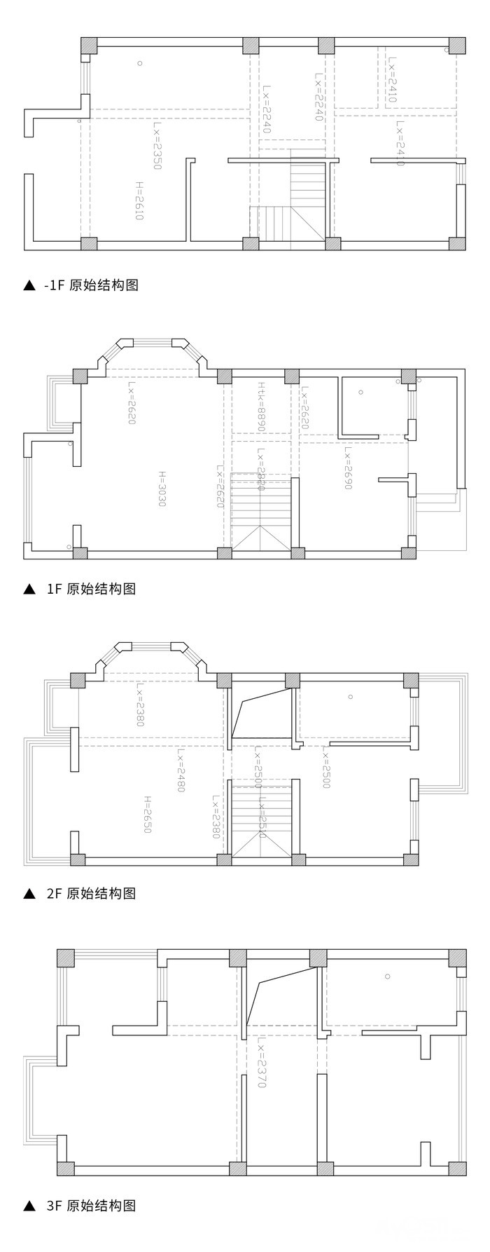
原始户型痛点分析
原始楼梯居中,且超出室内中线,室内被迫切分为南北两块;
公共区域不够开阔,被分割成多个且小面积空间;
楼梯尺寸紧迫,上下楼不方便,缺乏舒适度;
楼梯转角区,三角踏过多,容易拌脚,缺乏安全性。

平面布局优化改造
将楼梯放置于西北侧,整屋光线最差处,方向更改为南北方向,不占用房屋中线空间;
最大程度地给室内其他区域带来采光和流畅的动线,增强空间穿透性;
楼梯纵向拉长,踏步缓和并加宽,中间转角处优化为平台,上下楼更加便利;
公共区域无墙体遮挡,空间更加开阔,居住舒适度直线上升。












拆除阶段


现浇阶段

砌墙阶段

水电阶段

木工阶段

瓦工阶段

油漆阶段

安装阶段
本案即将在本月底进行拍摄,明年年初将会上新作品落地实景成片,让我们一起期待吧~

在光与影的通透空间中
In the transparent space of light and shadow
在简约轻欧的素雅色调中
In the simple and elegant colors of light Europe
走进文艺的欧洲
Entering Europe of Literature and Art
感受浓浓的艺术气息
Feel the strong artistic atmosphere
沉淀的古典之美
The classical beauty of precipitation
[ 本帖最后由 泽一设计 于 2022-12-19 14:10 编辑 ]








