(融创银城滴翠园二期内部环境)
融创银城·滴翠园二期位于镇江市润州区官塘桥路与环山路交汇处,南靠官塘中学,被南山森林氧吧所环抱。
山林相望,水软山温,将原生态纳入生活,触手可及皆是自然。
楼盘调研
交付在即,设计先行。
我们在楼盘施工中对其进行了全面的调研,关注楼盘动态,进行了现场实地测量,研讨设计方案,目前也有意向业主及签约项目。

(融创滴翠园二期航拍)
二期叠墅
2-3#,6-7#,17#,19-20#,22-23#
在售,面积约140-180㎡;
17#,19#,20#
共50套,面积约140-180㎡;
2#,3#,6#,7#,22#,23#
共106套,面积约138-152㎡;
以上户型预计今年12月底交付。

(融创滴翠园二期室外环境)

(设计师实地测量户型)

(户型方案研讨)
户型解析
本期户型解析为融创银城·滴翠园二期的户型优缺点分析
希望各位业主在等待交付的日子里能够提前深入地了解并满足自己对新家的幻想~

户型特点
House Feactures
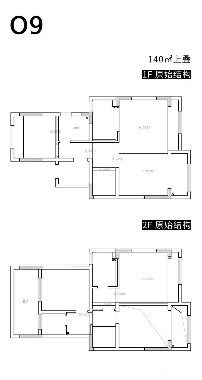
双阳台开间
一层为挑高空间
视野开阔景观好
南北通透,采光好
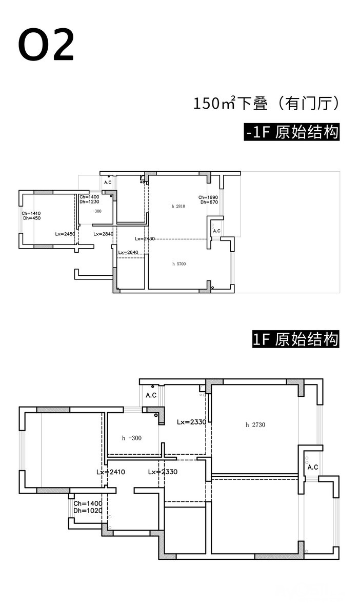
储物空间较少,无门厅
地下室层高不够
二楼原有格局杂乱,空间浪费,但是可改性大

户型特点
House Feactures
有天然门厅,储物方便
朝南空间开阔,采光好
有大院子,实用与美观并存
门厅进入后空间较小
一层卫生间,厨房空间较小

户型特点
House Feactures
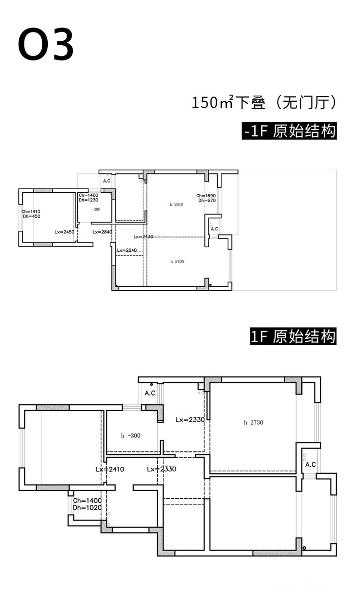
户型方正,采光视野好
朝南空间开阔
有大院子,设计得当,休闲与美观并存
没有门厅,入户空间较拥挤
一层卫生间,厨房空间较小

户型特点
House Feactures
双阳台
有独立门厅
采光好视野佳
卧室空间尺寸比较舒适
厨房小
整体不够通透
阳台不够宽敞
客餐厅没有大户型的优越感

户型特点
House Feactures
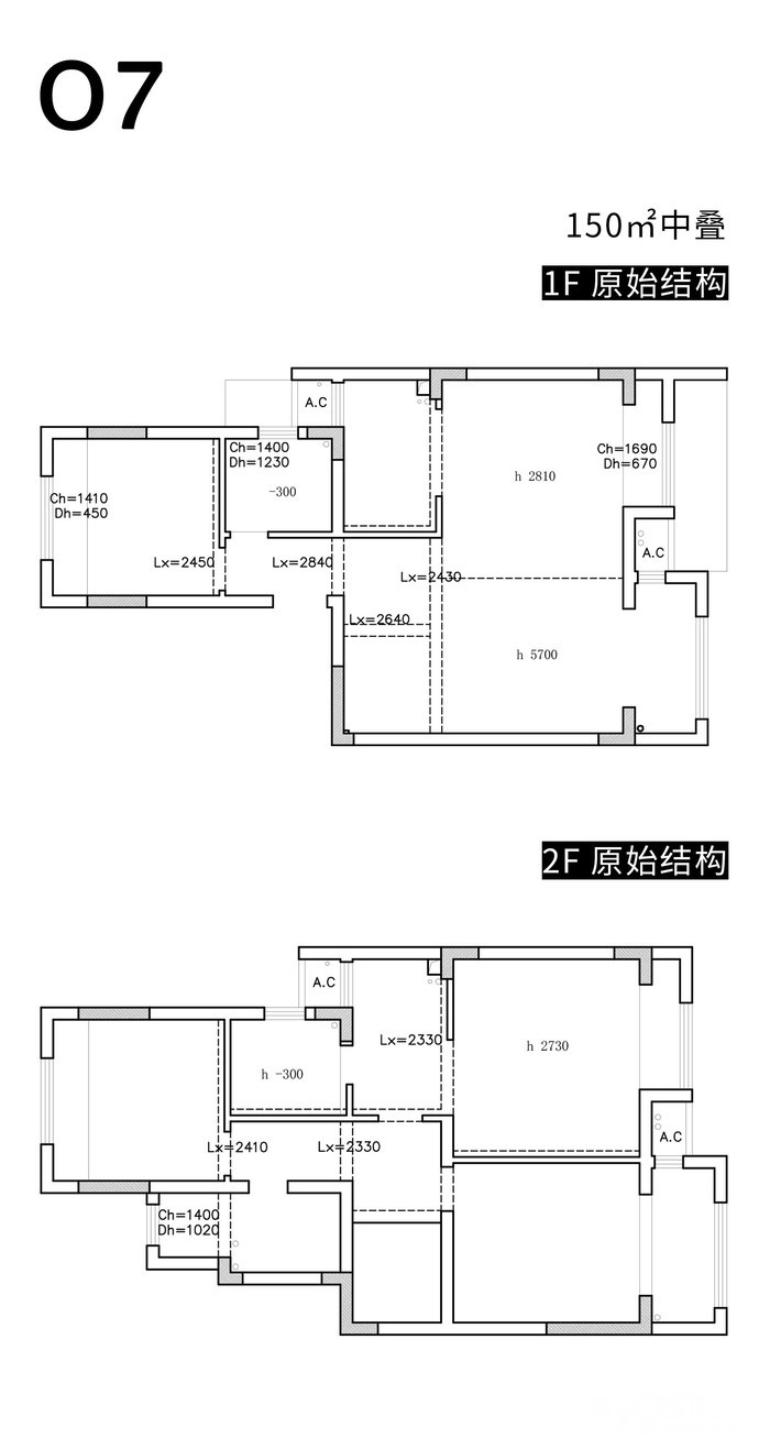
六开间朝南
超长阳台尺寸
视野开阔景观好
朝北赠送面积可利用率高
客厅开间小
需要新增楼梯位置
动线较复杂,阳角比较多

户型特点
House Feactures
朝南开间宽敞
动线清晰
二楼空间较为规整,有露台
南北通透,采光好
无门厅,入户比较拥挤
原有厨房较小
一层卫生间较小

户型特点
House Feactures
朝南空间开阔
视野景观好
南北通透,采光好
储物空间较少,无门厅
入户空间较拥挤
原有厨房较小

户型特点
House Feactures
双阳台开间
视野开阔景观好
整体户型较规整,内部可改性大
南北通透,采光好
厨房过小,没有电器空间
原有餐厅空间较小
二楼原有格局过于杂乱,需要重新梳理空间

户型特点
House Feactures
有天然门厅
储物空间较充足
朝南开间宽阔,居住舒适度提升
南北通透,采光好
一层卫生间较小
原有厨房空间较小
进入门厅后空间较小

户型特点
House Feactures
三开间朝南,居住舒适
双阳台,可将生活阳台与休闲阳台分开
南北通透,采光好
两个卫生间都较小
原有厨房空间较小
收纳空间不足

户型特点
House Feactures
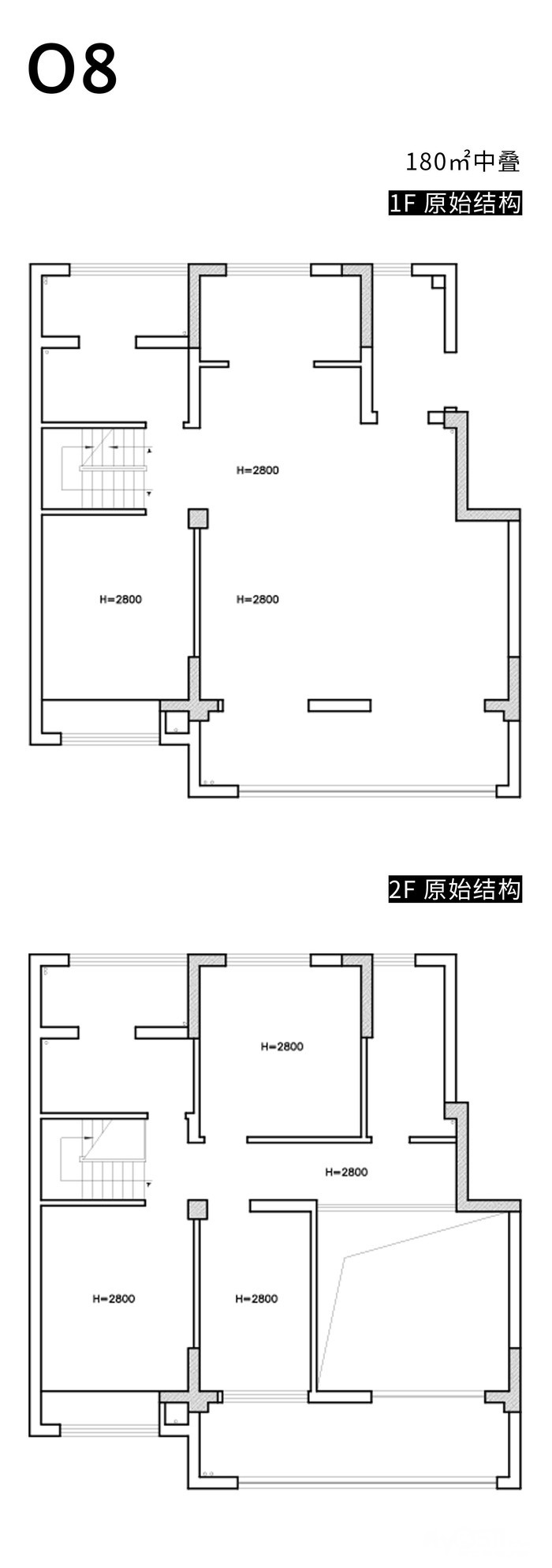
四开间朝南,采光好
客餐厅开间大,动线舒适
北面双露台利用率高
南北通透,采光好
两个卫生间较小
原有厨房空间较小
通往阁楼楼梯需要浇筑
我们已为打造您的新家做好充分的准备
设计师针对户型特点已做好优化改造方案
您可添加下方客服微信
说出心中疑虑
我们会以专业的角度为您解答
[ 本帖最后由 泽一设计 于 2023-12-3 17:01 编辑 ]
 










