泽一 落地设计
Choose Only One

拂去繁重,回归居所的本质
HOME ·「 Inclusive 包容 」
项目地址:金山铭著
户型面积:158㎡
设计风格:现代简约
服务模式:全案
项目费用:70w
本案的核心理念——“包容”,意为宽容、容纳。天地之大,可以接纳世间万物;家中万物,可以包容你的一切。
全屋以米白为主色调,低调纯净,温馨治愈;空间中多用弧线与圆角,连贯流畅,过渡柔和;墙面材质富有韧性,让主人被柔软包裹,卸下盔甲回到家中,感受爱的包容。

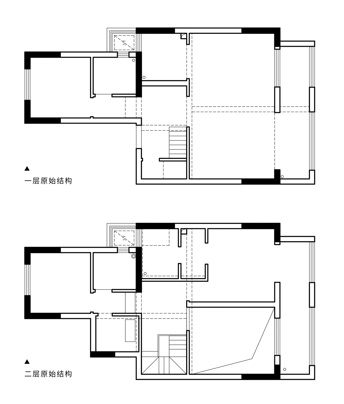
本案是位于「润州-金山铭著」158㎡的中叠项目,这是业主的第一套改善住宅,希望可以通过设计提高空间利用率,对于新家有着全新的展望,希望设计师可以尝试使用一些新的表现手法来塑造空间。
原始户型中楼梯位置阻挡了门厅采光,设计师将楼梯位置移动的同时增加了其宽度、光线及便利度,大大优化了楼梯作为上下联系的便捷性;门厅增加两组储物柜,加上楼梯的移动,提升了开门入户的仪式感以及储藏实用性;
设计师在公区一层,通过两面完整的立面设计,营造出公区宽松的视觉效果;将二层空间重新布局,根据生活需求合理划分,也让主要居室拥有了更大的独立空间。


全屋以米白、大地色为基础
搭配本身独特的肌理变化
在素净、简约的效果中回归内心
将公区完全打开重新规划
以功能分区使得空间利用最大化
创造出空间与视野的自由与灵动

低饱和度的质感铺满整个客厅
清新的自然气息荡漾而来
让人不禁放慢脚步
躺在沙发上享受生活的慢节奏


墙面质朴的肌理漆在视觉与触感上
描绘出大地细腻的纹理
阳台一角摆放绿植
点亮整个空间
远离纷繁
独处于这一份欢喜


局部线条的圆润
则以其柔美的弧度
对抗生活的棱角
带来无形的安抚与包容
在纷乱的生活中
寻到属于自己内心的一片宁静


卧室延续了公区的米白色调
背景墙中暗藏休憩时所需亮度
一半干练 一半慵懒
归家的仪式感
被包裹在暖灯逐渐亮起的氛围里
日暮到日出 睡到自然醒
干区在纯净中加入浓郁色调
优雅温柔中增添一丝沉稳

“草木有情皆长养,乾坤无地不包容。”
家是容纳情绪的容器,设计是从人的根本需求出发,打造专属环境,拂去繁重、回归本心,让主人在延续生活习惯的同时能够吸取到新鲜的气息,在朝夕相处中感受家的纯净自然,宁静而治愈。
泽一设计
-COO Design-

[ 本帖最后由 泽一设计 于 2024-6-1 14:38 编辑 ]









