| 标题
快捷导航

精彩推荐:MY0511客户端下载

    • 中信银行镇江分行

    • 公益体彩 乐善人生

    • 鹏龙鸿蒙

    • 天然石材·人造石

    » 梦溪论坛 » 家庭装修 » [2021万家基和装饰杯]装修路漫漫,给你一个带楼梯的家(大安装)
    家庭装修  >  [装修日记] [2021万家基和装饰杯]装修路漫漫,给你一个带楼梯的家(大安装)     
    查看: 118710  回复: 159
     160  1/4  1  2  3  4  > 
    [装修日记] [2021万家基和装饰杯]装修路漫漫,给你一个带楼梯的家(大安装)      查看: 118710  回复: 159
    • 来自 江苏省
    • 精华 0
    • 注册 2019-1-3
    •  
    [2021万家基和装饰杯]装修路漫漫,给你一个带楼梯的家(大安装)

    上一次装修在这里学到了好多,所以这次我又来取经了之前的装修,因为时间紧,又什么都不懂跌跌撞撞就这样过来了,住了这几年不足之处慢慢也就体现出来了。
    新房买了也一段时间了,年底终于将装修提上日程,希望这一次吸取之前的经验,给家人营造一个温馨舒适的家。顶楼带阁楼户型,最喜欢这个户型的莫过于女儿,说可以有一个带楼梯的家了


    当前进度:
    【装修公司】万家基和
    【地板】大自然(红星)
    【系统窗】维盾(红星)
    【移门】美高格(亿都)
    【瓷砖】冠珠(红星)

    【石材】吉利(亿都)


    【入户门】福熙(红星)
    【家具】 源氏木语  多喜爱【灯具】月影

    【美缝】卓高(亿都)
    【风管机】:格力

    【集成吊顶】:美的(红星)

    【地漏】:潜水艇(网购)
    【燃气灶具】:老板
    【燃气热水器】:林内or 能率
    【洗碗机】:美的P60
    【冰箱】:西门子?
    【洗烘套装】西门子?小天鹅?






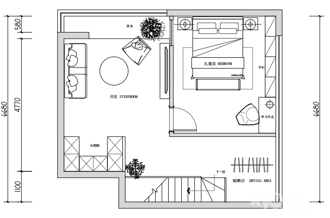
    一次次沟通后,童老师的小图改了又改,今天效果图初稿已出,很满意,是我想要的样子




    平面设计图,

    原本设计在楼上做一个大套间,考虑到楼上保温性,以及天窗冬天可能会有冷凝水,房间还是保留但是不做常住,孩子喜欢可以上去当一个活动空间,





    [ 本帖最后由 sizj003 于 2022-6-6 11:15 编辑 ]





                      
    • 来自 江苏省
    • 精华 0
    • 注册 2019-1-3
    •  

    装修总是是在纠结中前行,纠结的第一件事情就是,选择中央空调还是普通空调

    [ 本帖最后由 sizj003 于 2021-11-24 20:44 编辑 ]




    • 来自 江苏省
    • 精华 0
    • 注册 2019-1-3
    •  


    QUOTE:
    原帖由 满世界跑 于 2021-11-25 08:08 发表
    普通空调清洗方便。家用中央空调管道清洗比较麻烦。
    是的呢,另外也担心万一坏了,所有房间的空调全罢工




    • 来自 江苏省
    • 精华 0
    • 注册 2019-1-3
    •  

    装修风格几年一变,上一次装修还是定制衣柜或者打柜子,厨房单独整体厨房,现在流行全屋定制,之前卫生间用铝合金置物架得多,现在流行壁龛

    [ 本帖最后由 sizj003 于 2021-11-26 19:51 编辑 ]




    • 来自 江苏省
    • 精华 0
    • 注册 2019-1-3
    •  







    喜欢的三个家居图,但似乎是三个不同的风格




    • 来自 江苏省
    • 精华 0
    • 注册 2019-1-3
    •  

    装修人的周末开始啦




    • 来自 江苏省
    • 精华 0
    • 注册 2019-1-3
    •  

    下午开始到红星美凯龙




    • 来自 江苏省
    • 精华 0
    • 注册 2019-1-3
    •  

    跑了一天终于回到家,吃过晚饭又跑去新房看了下,要换哪些门窗心里有个底,

    今日成果:

    1、签订装修合同;

    2、敲定窗户



    探店森香楼梯和德维尔全屋定制



    收获满满的一天

    [ 本帖最后由 sizj003 于 2021-11-28 20:21 编辑 ]




    • 来自 江苏省
    • 精华 0
    • 注册 2019-1-3
    •  

    对于上班族不能天天跑工地,关键时候一定要到场哦


    [ 本帖最后由 sizj003 于 2021-11-29 12:31 编辑 ]




    • 来自 江苏省
    • 精华 0
    • 注册 2019-1-3
    •  

    下一步的计划就是橱柜了,至于是定制整体厨房还是和衣柜一起做全屋定制暂时还没有确定,持续考察中

    [ 本帖最后由 sizj003 于 2021-11-30 12:21 编辑 ]




    • 来自 江苏省
    • 精华 0
    • 注册 2019-1-3
    •  

    大单槽好,还是双槽好


    这个问题,不宜盲目跟风,无论是单槽还是双槽,都有最适合的“打开方式”。


    小户型优先选单槽


    在橱柜空间有限的情况下,小双槽的缺点被充分暴露,不能洗锅,而且一大一小的双槽,小水槽利用率很低。



    大单槽很好地解决了上面的问题,而且单槽+不锈钢沥水篮的配合非常方便。家里在配备嵌入式洗碗机的情况下,水槽基本不会用来洗碗,普通的单槽就已经足够了。


    大双槽照样轻松洗锅

    洗锅不在于单槽双槽,主要取决于水槽的大小,整体超过75cm的大双槽,用着就非常舒服。两个水槽一个用来洗碗刷锅,一个用来洗水果蔬菜,各司其职实现功能分区。


    集成水槽代表未来?


    虽然第一台集成水槽在2008年就诞生了,但对于大部分人而言它还属于新鲜事物。除了水槽之外,还添加了净水处理系统、热水供应系统、垃圾处理系统刀架、菜板、沥水篮等功能。




    这就避免了水槽安装时,需要同时和橱柜厂家、垃圾处理器商家、厨宝商家同时沟通的难题,空间分布更加合理。


    因为是定制产品,集成水槽目前价格偏高,需要提前定制,如果没有考虑电路、水路的预留,就只能忍痛割爱了。


    目前集成水槽并不像集成灶一样,没有头部标杆品牌和让人眼前一亮的爆品,老高的建议是,可以再等等。



    为什么都说台下盆香


    水槽的安装方式,主要分为台上盆、台下盆、台中盆三种形式,其中前两者最为常见,台下盆更是被捧上“神坛”。


    台下盆


    台下盆干净美观,没有死角,台面容易清理。台面上的积水残渣,轻轻一抹就能全到槽里。




    台下盆的缺点,在于安装难度较高,一旦损坏拆除非常麻烦。如果决定做台下盆,水槽的质量一定要严格把关,具体内容下文会有介绍。


    台上盆


    台上盆安装简单、牢固,方便更换。但水槽与台面之间需要打胶固定,时间长了玻璃胶容易长霉发黑,需要按时清理。




    台中盆


    相比台上盆和台下盆来讲,不是很常见。平嵌式安装的台中盆,和台下盆一样容易清理,从安装方式上来讲,比台下盆更加牢固。但水槽与台面接缝处容易积累污渍。




    无论选什么样的水槽,建议深度都要大于18cm,防止水花飞溅,以免弄脏衣服和厨房地面。



    材质:不锈钢or石英石


    不同材质的水槽,有着不同的使用体验,市面上的水槽,不锈钢材质居多,也有石英石、大理石、陶瓷等其它材质。


    下面主要从普及率较高的不锈钢石英石材质入手,分析一下两种材质各自的优缺点。


    不锈钢水槽


    大多数家庭的选择,304不锈钢水槽结实耐用,性价比高,比较容易打理。



    说到容易打理,表面拉丝处理压花处理的不锈钢水槽显然效果更好。




    拉丝处理的不锈钢,划痕更容易被隐藏,从而保证良好的视觉效果。


    压花处理的水槽,则是因为表面凹凸的处理,减少了餐具和水槽表面的直接接触。




    一体拉伸or手工水槽?有一说一,从视觉效果和质感而言,手工不锈钢水槽更好一些。




    一体拉伸水槽手工焊接水槽,最明显的区别就是水槽R角的大小。一体拉伸水槽R角较大,手工水槽的卖点之一就是R角较小。


    小R角造型美观,可以提高水槽的使用空间,大R角更容易清理,具体选哪种还是见仁见智吧。





    一体拉伸因为是机器加工,按照模具冲压成型,制作工艺比较简单,三四百元就能买到合适的。


    为了保证冲压效果,一体拉伸的槽体相对更薄,使用寿命不如手工焊接水槽。





    手工水槽因为是手工焊接,可以做到更厚,厚度一般在1.2mm以上,使用寿命上更有保证。手工水槽的缺点是价格偏贵,一般国产的都要在千元以上。


    至于不锈钢水槽缺点,一些朋友反映的是色彩和款式相对单一,选择性上有局限。


    石英石水槽


    石英石大理石为代表的人造石水槽,各种花色选择较多,是厨房颜值的加分项。






    石英石水槽耐高温槽体厚实,在有水流冲击的情况下,噪音更小


    槽体较厚的另一个好处是,石英石水槽外部不易凝结水珠。比如在水槽解冻肉制品时,不会因为水槽内外温差大凝结水珠,防止橱柜内部受潮。


    但因为石英石水槽自身较重,对台面承重能力和安装要求较高,而且白色的水槽,用久了都会有不同程度的发黄问题,如果非常在意的话建议绕行。

    石英石水槽做台下盆,安装难度较大



    而且要注意的是,如果要安装垃圾处理器,石英石水槽的出水口一定要和垃圾处理器相匹配,毕竟这种材质后期开槽还是很麻烦的。陶瓷水槽,相比白色的石英石水槽,陶瓷水槽的优点是不易发黄。但油渍和脏物更容易挂壁,清理起来比较麻烦,而且陶瓷碗盘和陶瓷水槽之间的碰撞声,光是想想就很酸爽。



    给水槽加分的细节


    龙头


    龙头与水槽配合的好坏,直接关系到水槽的使用体验。




    被“捧上神坛”的抽拉式水龙头,灵活控制使用位置,避免刷锅时的溅水问题。而且使用便捷,方便清洗卫生死角和锅底油污。






    出水方式上,推荐可以实现“气泡出水”的龙头。这种龙头自带“起泡芯”,形成雾状水流,出水方式从原来的水柱,升级到微小细密的水滴,进一步减少四处飞溅的尴尬。


    如果不想换水龙头,单独配一个龙头起泡器也可以达到这种效果。


    静音防潮


    对于不锈钢水槽而言,水槽外部很容易凝结水滴,这是木质橱柜的天敌。


    就算是买橱柜赠送的水槽,水槽背面也要必须有防凝露涂层。自己单独购买水槽时,也不要因为图一时便宜,忽略了这一点。


    水槽底部的消音垫片,同样决定着使用体验。因为不锈钢壁薄,水龙头冲水时难免会有声音,谁也不想在苦逼洗碗的同时,还要忍受噪音污染。


    防凝露涂层和消音垫片,虽然隐藏在橱柜的角落里,安装前也要严格把关。比如涂层不能薄厚不均匀,也不能有刺鼻的气味


    后置下水管


    下水管靠后一小步,下面的厨柜空间就会有一大步提升,尤其是在小厨电盛行的当下。


    厨下净水器、垃圾处理器、小厨宝都在等着“抢地盘”,空间合理收纳的前提,是有足够的空间。




    在下水管的选择上,最好选带有防堵排污口的那种,一旦堵了拧开排污口,就能解决问题。







    水槽洗碗机有没有必要?


    水槽洗碗机,不用拆橱柜,也不用大改水电路,就可以轻松安装。在洗碗筷的基础上,也能清洗瓜果蔬菜。



    图源:住范儿自摄


    而且相比于嵌入式洗碗机,水槽洗碗机使用时不用弯腰,操作非常方便。


    优点虽多,但水槽洗碗机的容量较小,一般只够两个人的需求,如果有了宝宝,大量的瓶瓶罐罐可能就让水槽洗碗机吃不消了。


    而且水槽洗碗机也会占用一部分厨下空间,橱柜的可利用空间被进一步压缩。


    所以水槽洗碗机的安装,有着特定的条件,如果你是小厨房,或者橱柜在设计时,没有为嵌入式洗碗机预留空间,水槽洗碗机可以纳入你们的参考范围。



    水槽品牌推荐


    因为水槽的材质相对简单,在工艺上没有太高的技术壁垒,所以在水槽的选择上不必过度纠结于品牌。


    不差钱的可以购买科勒、摩恩、松下这些一线品牌,追求性价比和颜值的可以考虑悍高、欧琳、华帝等大牌。






    • 来自 江苏省
    • 精华 0
    • 注册 2019-1-3
    •  

    对于衣柜,现在有点想选择艾格板

    今天查询了一下江苏地区有哪些艾格板有官方正式授权,柏丽爱家在星艺佳有门店,准备周末去瞧瞧

    [ 本帖最后由 sizj003 于 2021-12-6 20:49 编辑 ]




    • 来自 江苏省
    • 精华 0
    • 注册 2019-1-3
    •  

    勤劳的搬运工又开始学习了



    淋浴房的选择

    淋浴房按打开方式分,有平开门和推拉门。

    按形状分,有方型、一字型、圆弧型、钻石型。

    平开门不能向内开,万一洗澡时忽然晕倒了,很有可能会因为身体靠在门上而打不开门、延误救援时机。

    推拉门不占地方,适合圆弧型或一字型的淋浴间,但滑轨容污纳垢难清理。


    方型和圆弧型面积计算一样,都是两面墙的宽之和乘以门高。

    相同尺寸下方型占地最大,圆弧型占地最小。


    方型空间宽裕,圆弧型特别节约空间。

    圆弧型需要安装底盘,以固定玻璃。

    一字型淋浴房安装最方便,多使用推拉门和平开门。


    钻石型相当于方型切了一个角,空间利用率更高。

    最高效的布局是洗手台、马桶靠夹着中间的淋浴房。


    选购要点


    首先告诉大家关于产地的背景知识。

    南方的五金做的比北方顺滑,特别是广东一带,小伙伴们下单前可以问问工厂在什么地方。


    选购时认准激光刻上的CCC标志(中国强制产品认证)或者厂家提供的CCC证书。

    玻璃越厚越好吗?太厚的太重,会超出五金件的承重范围、缩短五金件的使用寿命,6-8mm厚度的钢化玻璃就可以啦!

    玻璃之间、玻璃和墙面之间要有密封条,保证不漏水。

    玻璃门之间的密封条要有磁性,门关牢了密封性才好。

    最后给钢化玻璃贴上防爆膜,能紧紧粘住爆裂的玻璃碎片,家人就不用害怕啦!



    [ 本帖最后由 sizj003 于 2021-12-5 22:08 编辑 ]




    • 来自 江苏省
    • 精华 0
    • 注册 2019-1-3
    •  

    网红家居神器的种草与拔草

    1.
    果蔬清洗机:一台上千块,噱头很足,靠谱的很少,洗完菜还带着泥。拔了。

    2. 多士炉:面包片塞进多士炉口感更干,炉体内部不好洗还招蟑螂,直接放不粘锅上不香吗?拔了。

    3. 除螨仪:就是紫外线灯+吸尘器,吸完一床被子比撸铁三小时还累,勤洗勤晒就好了。拔了。

    4. 桌面吸尘器:您家桌子是联合国圆环会议桌吗?没有什么桌子是一块抹布搞不定的。拔了。

    5.洗烘一体机:1万以下预算、不带集尘盒的便宜货,千万别选,特别脏。拔了。

    6.紫外线灭蚊灯:紫外线不能灭蚊只能诱蚊,让它捕蚊子,成功率约等于猪笼草。拔了。

    7.照片打印机:性价比太低,机身贵就算了,相纸才是无底洞,淘宝洗照片了解一下。拔了。

    8.酸奶机:超市酸奶琳琅满目,自己做的费事费力还不好喝。拔了。

    9.面条机:出门左转超市切面不香吗?清洗麻烦直接劝退。拔了。

    10.擦玻璃机器人:一年擦一次的玻璃直接上手吧,反正机器人擦的还没手干净。拔了。


    空气增压花洒


    市面上的花洒长的都差不多,但是价格咋就差距这么大呢?


    几十块的增压花洒,都靠缩小出口增压,打在身上有种刺痛的感觉;而空气注入式花洒,会把水打成一颗一颗的小水珠,洗起来很舒服。


    优秀的空气注入花洒,水和空气的比例是1:3,吸气效果饱满,水中富含空气,充盈柔软,打在身上非常舒服,不减弱出水力度,还能达到省水的目的。


    家里水压低的朋友们,一定会更喜欢它。



    建议选择喷头直径至少9cm的花洒,出水口选择硅胶头的,不容易藏污纳垢,一拔就能清洁。


    抽拉水龙头

    保证让你每次用都会感叹:世上怎么会有如此神仙好物!


    厨房用时,清洗水槽超方便,拿着水龙头转一圈,边边角角都干净了,手一松,自己就弹回去。


    卫生间用,台盆洗头也不再需要使劲弯腰,像花洒一样手持,不要更方便!


    虽然我们已经说过很多遍,但还是要提醒大家,抽拉式水龙头一定不要选管道出口朝前的,这样的龙头出口短,位置也偏低,水很容易溅进去,流进管道中。



    高抛抽拉水龙头管道长,出口向下,就不会有同样的顾虑啦。


    地漏贴

    毕竟仙女是不会自己从地漏里面抠头发的。


    以前每次洗澡,地漏都会积一堆头发,头还没秃,下水道堵了好几回。最后朋友推荐了这个小玩意儿,简直真香。



    一盒也就十来块,里面含有几十片,能用很长时间。



    [ 本帖最后由 sizj003 于 2021-12-8 22:48 编辑 ]




    • 来自 江苏省
    • 精华 0
    • 注册 2019-1-3
    •  

    床垫

    一生1/3的时间在床上度过,床垫怎么选?


    乳胶床垫要看工艺,特拉雷工艺的越厚越软;

    海绵床垫要25密以上的,摸起来越细腻越好;

    棕垫用高弹棕比3E棕好,棕的填充密度越高,越不容易塌陷,睡感越硬;

    弹簧垫要独立布袋弹簧,比整网弹簧好,两个人睡互不干扰,静音效果好。



    床垫要买多贵的?

    ● 1k一下的都是劣质床垫,千万别买!下单之后有问题,为了防止差评,甚至都能直接送你。

    ● 1k-3k的选喜临门,虽然克重一般,但对身体没有害处。


    3k-5k的选林芃,银离子抗菌面料,荷兰的特拉雷乳胶,贴合透气有支撑,品类全10年质保。

    ● 5千以上可以选雅兰。


    补充一条:不缺钱的,盲选席梦思黑标,睡感支撑贴合,都是顶尖水平,均价10w左右。



    [ 本帖最后由 sizj003 于 2021-12-8 22:50 编辑 ]




    • 来自 江苏省
    • 精华 0
    • 注册 2019-1-3
    •  

    材质决定木门的价格




    木门也分段位,质量好不好取决于门板,门板好不好主要看材质。




        ◉销声匿迹的质量青铜:模压门

    模压门大家可能很少听过,其实就是颗粒板压合成的门板,就像是肉末做成的肉饼。因为门板的面积比较大,所以不少模压门都有空心的地方。虽然它1k上下的价格真的很香,但是看这空心就知道隔音效果真的没法好,所以模压门逐渐在建材届销声匿迹。



      ◉ 快淘汰的环保白银:指接门

    指接门的门板,就是用木块拼接的,就好比用碎肉块拼成的合成牛排。因为拼接木块需要用到大量的胶水,所以指接木门的环保性一般,再直白点就是甲醛比较多。



    而且指接的结构也让门板的抗冲击力大打折扣。虽然指接门1k左右的价格也非常让人心动,但是考虑到它的缺点,只有极少数人还在选择,已经快要淘汰了。




    性价比王者:实木复合门

    实木复合门就是在结实的木框架里,嵌入木制门芯,再用木制材料填充成一个完整光滑的门板,最后贴上实木的表皮,但是不同的部位,用的木材不同,就好比多层不同的肉片叠在一起做成的肉饼。



    逼格满满的荣耀皇冠:原木门


    原木门顾名思义,门板上各个部位的木材都是同一木种的天然原木。它不仅能保留木材天然的纹理,而且用胶少更环保,就很像高档原切牛排的调调。原木门真材实料,更耐冲击,保暖性和隔音效果都是木门中的荣耀皇冠。




    实木复合门和实木复合地板一样,文能保持较高的颜值和环保水品,武又比纯实木的更结实、更耐刮、更抗造,再加上它1-3k的价格,直接跻身木门届性价比王者。


    通常原木门价格一般都在3k往上,但是劝退装修人的,除了价格以外还有原木门的两大硬伤:一是原木会伸缩,用久了会变形,四边漏缝漏光,还影响隔音;还有就是原木门重量都是80斤以上,运输、拆装都更麻烦。


    总结一下:

    性价比:实木复合门>指接门/模压门>原木门


    指接门和模压门虽然价格低,但是环保性、隔音效果都比较差,性价比其实并不高;相比之下,只贵几百块的实木复合木门,隔音环保还抗造,最受欢迎是必然的。


    实木复合门的性价比虽然高,但是门芯还是看不见摸不着,厂家依旧有很大的操纵空间,稍不留神还是很容易踩坑。大家只需要记住一条定律:填充越少的实木复合门,质量越差。看下图,各种结构的质量就一目了然了。




    烤漆/免漆傻傻分不清楚?




    搞定了门芯,再看看另外一个既决定木门价格又影响木门颜值的关——表面工艺。


    大家可能经常听见烤漆门和免漆门,更专业的分法是把木门的表面工艺分为油漆和免漆。油漆门包括开放漆、封闭漆和烤漆;免漆有PVC、CPL和PP。


    先别着急眼花缭乱,买门不需要把自己逼成工艺和材质专家,只需要了解它们各自的特点,再根据自己的需求选择就行。


    一分价钱一分货在油漆上可谓是体现得淋漓尽致。效果最好,最耐污易清洁的烤漆工艺,也是最贵的;开放漆会保留木材纹理,摸上去还能感受到木头原生态的凹凸感,这样清洁起来就稍微麻烦一点。


    封闭漆就是用比较厚的漆面,完全覆盖掉木材纹理,让门板摸起来很光滑,耐污易清洁,价格也比开放漆低一些。免漆门的表面工艺,说白了就是在门上覆盖一层塑料薄膜,除了CPL防水防火的性能以微弱的优势领先以外,其他方面PVC、CPL和PP都大差不差,价格也是基本持平。所以家里买免漆门,CPL更适合厨卫。


    合页要同色


    很多人买门都容易忽略合页,觉得只要买个质量好的、耐用的就行,但其实在选合页颜色时,尽量选择和门一致的,才能提升整体颜值。


    锁具要静音

    基本上所有品牌的门,都能一口价包含门锁,但是这种门锁只能说无功无过凑合用。其实完全可以自己配门锁,网上就能买到物美价廉的静音磁吸锁。这样一来,晚上去洗手间再也不用蹑手蹑脚、又轻又慢地旋转门把手了...


    门吸要无存在感


    门吸在满足功能的情况下,存在感越低越好。这种老式门吸不好看、声音响还容易误伤到人,现在的隐形门吸,连扫地机器人都可以轻易跨越,比老式贵几十块钱,但是这钱真不能省!




    买门付全款?坑的就是你




    “樘”是木门的计价单位,一般包含门扇和门套,但是依然有利欲熏心的商家分开收费。另外,除了尺寸、板材、颜色这种基础的产品信息,合页、锁具、门吸、物流、安装,都要说得一清二楚,并且落实到合同里。也不要傻傻地直接付全款,一般测量前支付5%-10%的定金;确定尺寸后支付50%-80%定金;验收确定没问题再结尾款。


    归纳总结






    [ 本帖最后由 sizj003 于 2021-12-14 22:05 编辑 ]




    • 来自 江苏省
    • 精华 0
    • 注册 2019-1-3
    •  

    智能锁学习

    ·智能门锁比普通门锁安全吗?

    ·智能锁选什么样的?

    ·花多少钱合适?

    ·智能锁安装要注意些什么?


    防盗能力看锁芯


    不管是普通机械门锁还是智能门锁,防盗能力主要看锁芯。


    锁芯分为A、B、C三个等级,C级锁芯安全系数最高,智能锁常用的都是C级锁芯,理论上技术开锁时长超过270分钟,还有多种智能防盗、报警功能。


    所以你担心它不够安全,实在是有点多虑了。

    另一方面,智能锁在酒店、博物馆、办公楼等商业场所早已经普遍应用了,而日韩欧美国家更是普及了很多年。




    现在智能锁的技术已经愈发成熟,只要选择正规厂家和市场常用型号的锁,安全问题不用担心。

    指纹识别包括识别模块和芯片,识别模块收集指纹,芯片记录并识别它们,如果指纹错误就会发出报警。


    目前,智能锁指纹识别解锁方式有三种。


    光学指纹识别不安全,像我们常用的打卡机那样,记录指纹的表面纹路,很容易被复制。

    半导体指纹识别更成熟,通过温度、压力、电场等多方面记录指纹,跟手机指纹开锁一样,安全系数高。

    其中,瑞典的FPC是高端的半导体识别芯片,堪比手机界的华为。凯迪仕、西门子有在用;三星的芯片自产自销;小米用的Precise,是新兴的小规模高品质型企业。


    指静脉解锁是指纹识别的新星,记录和识别手指静脉的变化,对于浅指纹、破损指纹的识别率较高,安全系数也更高,但因为成本高、产品贵,还不普及,十分值得期待。




    注意一点,智能锁的指纹算法决定其安全地位,芯片运算速度不是越快越好,很多低端智能锁为了提高指纹识别速度,降低了算法,反而降低了安全性。





    选购智能锁七要素



    智能锁是一个五金结构+电子+互联网的产品,选购智能锁,看好7大关键点。


    至于附加功能,比如猫眼、人脸识别,要不要连接全屋智能等,可以根据预算再做选择。


    好锁体胜过一切


    一款好的智能锁,除了C级锁芯是必选项,锁体的质量也决定了它的好坏。


    指纹锁分为全自动锁和半自动锁。


    半自动锁,需要执手手动锁门,用的是机械锁体,稳定性高、不耗电,但使用体验和防盗能力差一些,价格也便宜些。


    真·全自动锁,采用电子锁体,使用体验更好,但耗电量大也是一个问题。

    真·全自动锁,想要实现自动反锁功能,必须是全自动锁体,也就是说必须是内嵌电机的电子锁体。


    有些厂家为了减少成本,降低自动锁价格,会使用机械自弹锁体。


    这种锁体是通过外置电机带动机械锁体,不能根据大门的开关状态智能回弹,只能通过倒计时的形式,时间一到马达带动锁舌回弹,所以这种锁噪音特别大。


    购买全自动锁时要分清,锁体是机械自弹锁体还是电子锁体。


    锁体规格,一般通用的是6068锁体,对防盗门适配度高。


    还有霸王锁体,尺寸更大、增加两个反锁舌的,类似于天地钩,如果家里防盗门不是这种锁,不用刻意换。





    如果原本是这种锁体,换智能锁需要提前与商家沟通,安装会加收费用。

    不用纠结真假插芯,真插芯和假插芯唯一的区别是,在暴力拆除面板后,锁芯是否暴露在外。


    已经开始暴力拆锁了,锁芯被破坏在所难免,所以选购时不必在意这个问题。


    选购要点:

    全自动锁,一定选择全自动锁体


    半自动锁,普通双快锁体就行

    解锁方式不是越多越好


    除了指纹和钥匙开锁,智能锁还有WiFi、蓝牙、密码、APP远程解锁以及人脸识别开锁等。


    但开锁方式越多,也就意味着被他人盗开的风险越高。


    一般的家庭,指纹+密码+钥匙3种开锁方式就够了。


    有老人和儿童的家庭,可以增加卡片解锁或是刷脸解锁。


    人脸识别目前也应用在很多领域了,就和手机刷脸支付一样,应用3D结构光,经过实验验证,照片和视频都无法实现解锁。


    但是人脸识别解锁有个缺点,就是楼道内人流量大的时候,任何人看它一眼,它都要识别一下,所以耗电量大,还会出现半夜的时候自动发出欢迎语音,比较吓人的情况。

    蓝牙解锁很鸡肋,多用于出租房。


    WIFI 、APP更适用居家使用,远程信息专属、电量预警和报警等功能。


    但目前因为家居物联网安全系数太低,很容易被破解,如果购买的智能锁带有这两种解锁功能,可选择将其关闭。


    要猫眼防盗、防儿童宠物开锁



    猫眼开锁是常见的盗窃作案手段,还有塑料片、磁铁等方式。


    家里有老人、孩子和宠物的,要防止误开。


    应对这种情况,购买带有反锁功能的智能锁就行了,一些高端产品自带了可视猫眼功能,门外的一切都尽收眼底。


    目前智能锁都具有防试开和防撬功能,是安防硬性要求的。


    至于其他的自动报警等功能,一般来说功能越完善,锁的防御能力越强,但误报率也会随之增加。

    执手款更稳定,推拉款更便捷


    智能锁分为执手式推拉式两种。


    执手式看上去和传统机械锁接近,带独立执手,价格基本在1500以下。


    价格便宜,稳定性好,但是开关门步骤相对繁琐,使用体验感没有那么好。


    推拉式采用无执手设计,某些型号还是一体化的面板。


    优点是颜值高,开关门简单,具有天然防猫眼开锁功能;缺点是价格较高,大都在1500元以上,而且耗电量大,不适配天地钩门。


    所以购买时要选择可以避免此类情况的人脸识别功能。


    电池电量不用纠结


    目前,半自动智能锁采用的是机械锁芯,用的是干电池,一般4节5号干电池的续航能力在半年左右,记得及时更换电池。


    电子锁芯通常用的是锂电池,锂电池更环保,就是需要经常充电,最好买有低电量提示的,不然还是有可能被锁在门外。



    智能生态看需求


    关于智能生态,全屋安防,很多人对智能锁这方面也有需求,那就根据自己所需的系统,选择对应的型号即可。


    米家MIJIA,可以选鹿客/小米全系列

    苹果HomeKit,可以选择绿米/小米部分型号

    华为HiLink,可以选择凯迪仕HK系列


    售后十分关键


    智能锁可以说是“三分产品七分售后”,一天没有锁都没法正常出入家门。


    所以建议大家选择成立时间久、知名度高、产品销量好的品牌。


    为了保证使用的稳定性,可以考虑上市1年以上的型号,因为产品投入使用,经过了市场和用户的验证,品质和稳定性都有一定保障。


    新型号材料新、技术新,一旦出现故障维修和售后都麻烦些。


    现在用一张表格做个总结,列出选购智能锁的几大要点,打√的可做为必选项。







    [ 本帖最后由 sizj003 于 2021-12-15 22:10 编辑 ]




    • 来自 江苏省
    • 精华 0
    • 注册 2019-1-3
    •  

    卫生间的收纳

    物品超级多,所以整理起来不要只为了追求台面的空无一物而把它们都藏起来,或者是盲目的扔扔扔。
    物品收纳的原则一定是用起来就在手边,找起来一目了然,放回去也省心方便。
    一切都要按照自己的习惯来。


    淋浴房的转角收纳篮里,经常会被放入家人需要使用的沐浴露洗发水等,分层放置时,可以根据家人的身高来存放使用的物品。
    这样,使用时所有的物品都是触手可得,非常方便。
    寻找合适的空间





    前面我们说的物品收纳原则里,第一条其实就是指就近原则。东西的收纳一定要出现在使用场所附近,这样我们才能养成用完就及时放回去的习惯。
    ▏镜柜▕

    常用的护肤用品、头发护理用品都会存储在这里。所以对于镜柜,款式的选择很重要。
    常见的镜柜有封闭式镜柜和开放式镜柜。

    封闭式虽然看上去,更加整洁美观,不过使用起来,体验却比不上开放式镜柜那么轻松方便。




    如果是平开式封闭镜柜,洗完脸去拿护肤品时,可能就会在镜面留下湿漉漉的指印。
    而且打开镜柜时,镜子本身的功能也就暂时丧失了,这对于需要不停拿取护肤品,同时依旧需要照镜抹匀的日常护肤步骤来说,并不合适。
    ▏浴室柜▕

    浴室柜无疑是卫生间储物的主力军之一。常用的洗涤用品、抹布、刷鞋用品、多买的卷纸都会堆放在这里。所以浴室柜的收纳能力就显得尤为重要。
    落地柜的储物空间大,吊柜底部比则落地柜更方便收纳各类盆。
    落地柜最常见的就是抽屉式和平开门式了。
    平开门的收纳只能水平堆放、不能上下叠加,所以它的收纳容量并不如抽屉式的好,但优势是空间足够,只要利用工具就能更灵活方便的收纳物品。
    我们需要的工具是伸缩杆和铁艺收纳篮,某宝上都可以买到。伸缩杆的用法多样,两根和一根都有对应的收纳方案。而收纳篮购买时,我们一定要注意它的尺寸是否合适哟。





    进击吧,卫生间

    当然,镜柜和浴室柜并不能解决所有问题,因而我们还需要借助一些收纳工具。
    不过有时候我们身处在卫生间里,反而想不出如何去划分收纳区域。不妨退一步,用手机将它拍下来或者自己亲手画出来。面对平面图,我们更容易知道该在什么区域做出一些改变。




    ▏搁板▕

    适用场所:洗漱台面附近、淋浴区、马桶上方
    如果家里已经选择了封闭式镜柜,可以在镜柜下加上一条搁物架,这能更方便的拿取洗漱用品。
    淋浴区的转角则适合使用转角搁物架,来收纳淋浴时需要使用的物品。
    对于小户型来说,马桶上方的区域也可以充分利用起来,放置厕纸、香薰、厕所读物等等。
    这些好看的隔板置物架可以找木工师傅定制,装修完安装在墙面。




    ▏立柜或者开放式置物柜▕

    适用场所:浴室柜一侧或者两侧
    对于家里人口多,杂物多的同学,可以考虑在浴室柜的一侧或者两侧增加立柜来储物。可以放置毛巾、洗浴用品。




    ▏多功能收纳架▕

    适用场所:马桶、洗衣机
    如果卫生间面积小,为了保证空间的最大利用,我们只能向垂直方向寻找多余面积。比如充分利用马桶和洗衣机上方的空间。把各种洗涤剂都收纳在这里,洗衣服时就不用单独从别处带过来盆和洗涤剂。
    不过这种收纳工具更适合侧开门的滚筒洗衣机。




    ▏美图上的壁龛可以做吗?▕

    在许多美图上,很多收纳是通过壁龛来完成的,自己家可以做出这样的效果吗?对于小户型来说,要求是很苛刻的。
    壁龛需要的深度在15~20cm之间,想要挖出这样一个空间,墙面的厚度应该在30cm左右,并且是非承重墙。
    而对于大户型,如果愿意牺牲一定的面积,倒是可以人造出这个空间来。



    [ 本帖最后由 sizj003 于 2021-12-20 12:14 编辑 ]
















    • 来自 江苏省
    • 精华 0
    • 注册 2019-1-3
    •  

    新房装修很多户型都需要更改下户型,也就会涉及到拆墙和砌墙的施工。


    1、选材


    尽量选择轻体砖如空心砖或泡沫砖,因为轻体砖对楼板的承重影响更小。






    2、正规放线


    如何需要砌墙的尺寸大小都要正规放线,确保倾斜度在2%以内。


    3、浸泡砖


    在施工前要对砖进行浸泡,防止干砖快速吸收水泥的水分,影响水泥的正常固化。








    4、植入钢筋


    新墙和老墙衔接处要格外注意下,最好植入钢筋进行加固,让其成为一体,从而降低开裂的可能。






    5、门洞处理


    砌墙遇到门洞要增设过梁,过梁可以选择水泥板或者钢材。










    6、挂网


    为了防止墙面的横向拉力产生的开裂,要对墙进行挂网,并且双面抹灰。








    7、保养干燥


    完工后要做一定的养护,并且20以内不允许进行刮白施工,尽量让墙充分干燥。



    [ 本帖最后由 sizj003 于 2021-12-29 22:12 编辑 ]




    • 来自 江苏省
    • 精华 0
    • 注册 2019-1-3
    •  

    占楼9




    • 来自 江苏省
    • 精华 0
    • 注册 2019-1-3
    •  

    占楼10




    • 来自 江苏省
    • 精华 0
    • 注册 2019-1-3
    •  

    占楼11




    • 来自 江苏省
    • 精华 0
    • 注册 2019-1-3
    •  



    [ 本帖最后由 sizj003 于 2021-12-28 22:18 编辑 ]




    • 来自 江苏省
    • 精华 0
    • 注册 2019-1-3
    •  

    今天去参观邻居家,看下邻居家的设计




    • 来自 江苏省
    • 精华 0
    • 注册 2019-1-3
    •  

    下阶段考察橱柜和楼梯了,头大




    • 来自 江苏省
    • 精华 0
    • 注册 2019-1-3
    •  

    今天主要是探店
    儿童房家具探店多喜爱和松堡王国
    入户门看了青田木门
    亿都建材城看了美高格移门和淋浴房
    顺便还看了冠湘楼梯,虽然没定但是也又不少收获,后面还要继续跑




    • 来自 江苏省
    • 精华 0
    • 注册 2019-1-3
    •  

    阁楼有天窗,刚安排师傅量尺寸,估计要40天左右的时间才能安装,到时候温度低不知道对窗户的安装有影响不

    [ 本帖最后由 sizj003 于 2021-12-8 23:02 编辑 ]




    • 来自 江苏省
    • 精华 0
    • 注册 2019-1-3
    •  

    淋浴房的选择




    • 来自 江苏省
    • 精华 0
    • 注册 2019-1-3
    •  

    准备选择开工日期了,水电交底在即,开关插座怎么留,赶快学习起来


    01. 插座到底要选多少个?
    在各个空间,从照明和电器两方面罗列,看看需要用到的数量。一定要预留可能会用的电器位置,如洗碗机等。



    02. 开关应该要装在哪儿?



















    [ 本帖最后由 sizj003 于 2021-12-13 23:10 编辑 ]




    • 来自 江苏省
    • 精华 0
    • 注册 2019-1-3
    •  

    当初讨论设计方案,第一件事情就是告诉设计师不用岩板,兜里钱少,用不起




    • 来自 江苏省
    • 精华 0
    • 注册 2019-1-3
    •  

    设计师开始细化施工图了,择期开工




    • 来自 江苏省
    • 精华 0
    • 注册 2019-1-3
    •  

    哪个牌子的风管机比较好呢




    • 来自 江苏省
    • 精华 0
    • 注册 2019-1-3
    •  

    开工大吉




    • 来自 江苏省
    • 精华 0
    • 注册 2019-1-3
    •  

    这次装修懒得跑,只有周末有时间也跑不过来,所以好多材料还是直接找之前订过的商家直接谈价格

    美的吊顶之前用的还挺好,所以这次第一件定下来回购的就是美的吊顶

    多喜爱之前也是用过的,儿童房这次的衣柜还是选的他家,赶上清样就立刻订了下来  床的话准备选一下稍微不那么可爱的,毕竟娃越来越大了

    [ 本帖最后由 sizj003 于 2021-12-20 09:33 编辑 ]




    • 来自 江苏省
    • 精华 0
    • 注册 2019-1-3
    •  
    • 来自 江苏省
    • 精华 0
    • 注册 2019-1-3
    •  

    现在这种滑轨式的插座颜值不错,不知道用起来怎么样




    • 来自 江苏省
    • 精华 0
    • 注册 2019-1-3
    •  


    QUOTE:
    原帖由 嫦娥姐姐 于 2021-12-18 18:43 发表
    岩板是不是很贵?我还没进入预算阶段。貌似现在10个设计师至少9个都推岩板。
    岩板效果会很好,但是单价不低 而且人工费也贵




    • 来自 江苏省
    • 精华 0
    • 注册 2019-1-3
    •  


    QUOTE:
    原帖由 镇江火车迷在线 于 2021-12-18 17:20 发表
    我家用的美的 悦享系列 风管机
    谢谢,我家应该是年后用上,回头去瞧瞧美的的




    • 来自 江苏省
    • 精华 0
    • 注册 2019-1-3
    •  

    吃过晚饭就来看工地,拆改第一天,进度还挺快的,拆下来的垃圾也都运走了




    • 来自 江苏省
    • 精华 0
    • 注册 2019-1-3
    •  

    冠珠瓷砖已下定,又一个回购品牌




    • 来自 江苏省
    • 精华 0
    • 注册 2019-1-3
    •  

    项目经理发来今天的进度,明天拆墙结束,

    接下来应该是准备楼梯现浇了,马上有个降温,等过完这几天的低温开始现浇




    • 来自 江苏省
    • 精华 0
    • 注册 2019-1-3
    •  

    拆墙收尾了,明天差不多能结束




    • 来自 江苏省
    • 精华 0
    • 注册 2019-1-3
    •  

    拆墙结束




    • 来自 江苏省
    • 精华 0
    • 注册 2019-1-3
    •  

    看到一个可爱的柜子,




    • 来自 江苏省
    • 精华 0
    • 注册 2019-1-3
    •  


    QUOTE:
    原帖由 NCC123 于 2021-12-25 16:26 发表
    美的悦享,乐享风管机可以了解一下,18952846286(微信同号)
    三匹乐享多少钱




    • 来自 江苏省
    • 精华 0
    • 注册 2019-1-3
    •  
    • 来自 江苏省
    • 精华 0
    • 注册 2019-1-3
    •  

    周末不能施工,到工地晃了一圈,顶部铲墙好像已经结束了




    • 来自 江苏省
    • 精华 0
    • 注册 2019-1-3
    •  

    今天看了大金,美的,格力的风管机,大金超出预算了,先划掉




    • 来自 江苏省
    • 精华 0
    • 注册 2019-1-3
    •  

    准备自己买水槽了,现在有点疑问的是,我装了洗碗机水槽还需要选大号的吗,橱柜的拉篮还需不需要




    • 来自 江苏省
    • 精华 0
    • 注册 2019-1-3
    •  


    QUOTE:
    原帖由 笑容 于 2021-12-27 11:32 发表
    学习了,帮顶。能不能短消息说下,总面积和你家半包费用,谢谢。
    你那边好像需要申请聊天




     160  1/4  1  2  3  4  > 
    查看积分策略说明快速回复主题
    您目前还是游客,请 登录注册
    您目前是游客,本帖已被系统设置了自动关闭,不可回复!

    0/5000字

     
    < >
     

    Powered by Discuz! X 2 0.106029 s 清除 Cookies - 镇江网友之家 - 手机版
    论坛导航 关闭