装修心累,精神疲惫,跑断两腿,不是争论,就是吵嘴。建贴记录下心路历程。
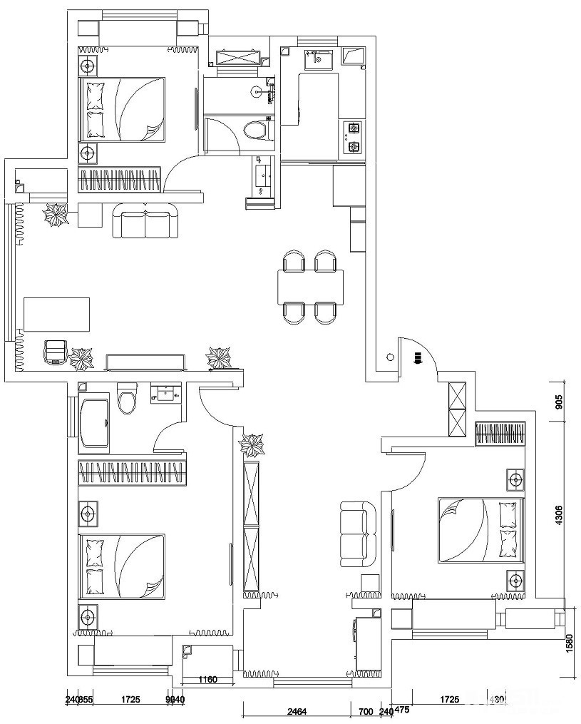
【小区名称】:中南合山居
【所在楼层】:14楼
【建筑面积】:155
【装修风格】:希望是新中式
【包工方式】:清包
【装修公司】:自装
【开工日期】:2022年4月
【装修预算】:硬装25万、空调电器10W;
截止2023-05扒扒未完成的活,要再融资5W,才能硬装结束了;
-----------------------------------------------------------------------------------------------------------------
装修小建议:
1、先逛电器城,记下安排电器的型号、尺寸、价格;
2、逛主辅材店,了解一下主辅材行情,产品间的差异;
3、逛活动家具,记下家具尺寸、价格;
4、逛逛系统窗、全屋定制店等.....
以上看完,基本能核出装修预算、装修风格以及装修过程中各种尺寸要求;
5、装修公司洽谈;(都说有坑,个人观点,只要将需求提前定好,最终落合同中,坑相对小一点
6、基础工程中,强烈建议墙面归方找平;预算有限的话,进行局部归方找平;
-------------------------------------------------------------------------------------------------------------------
目录:
-----材料选择及预算
-----材料签订及资金执行
一、基础项目
1、墙体拆改;
2、水电及强弱电箱移位;
3、阳台预留扫地机器工位;
4、餐边柜预埋管线机工位;
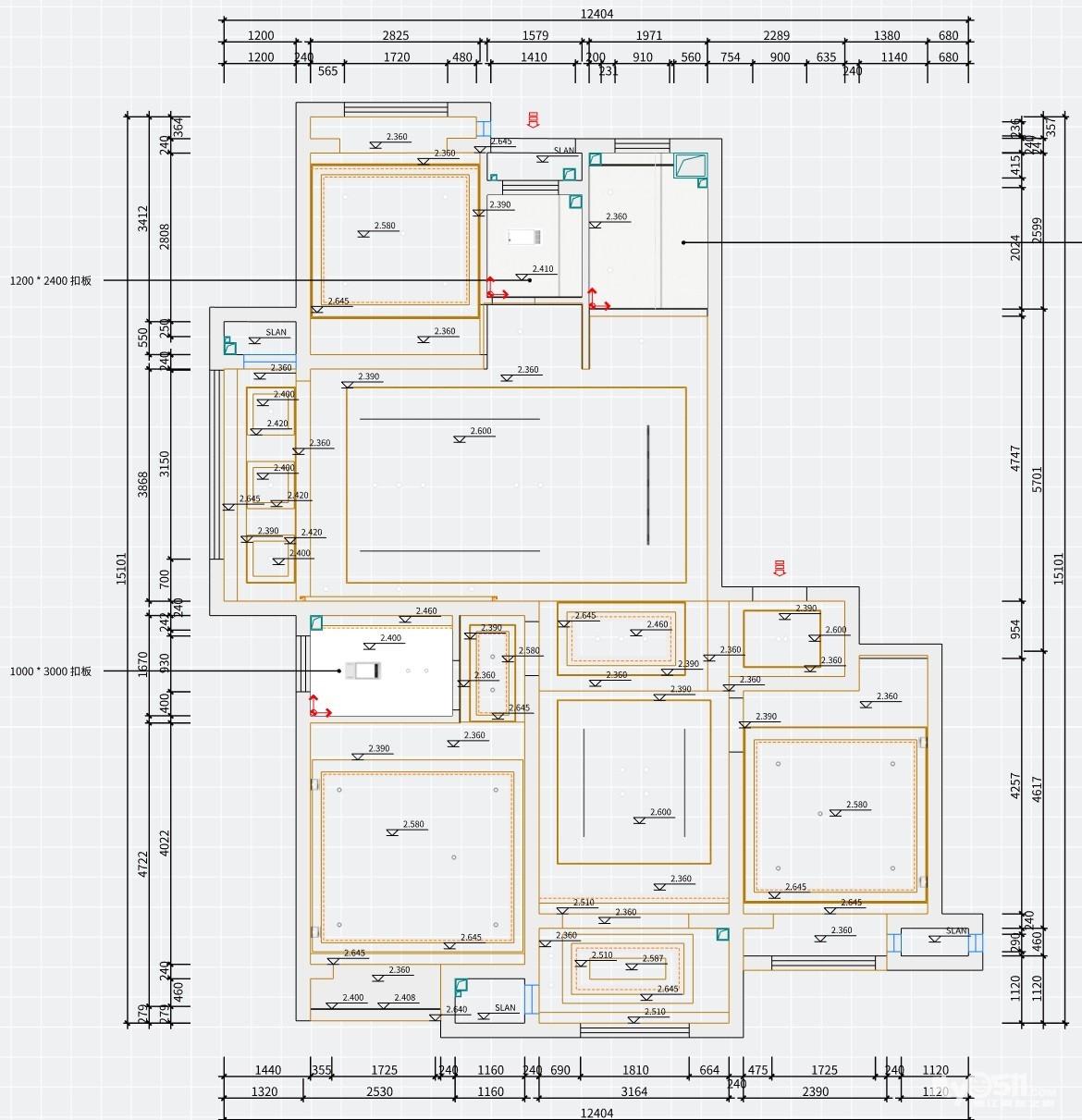
3、吊顶篇
3.1、吊顶材料进场;
3.2、吊顶辅材(白乳胶);
3.3、吊顶涉及尺寸;
3.4、吊顶成品图;
3.5、吊顶及无主灯灯槽;
4、无主灯配置;
二、硬装及设备安装
1、中央空调篇
1.1、上氟下水和上水下水该怎么选呢(转载网文)
1.2、九问两联供水机(转载网文);
1.3、两联供VS氟机(转载网图);
1.4、水机做一次系统还是二次系统?
1.5、中央空调管道安装;
1.6、中央空调外机安装;
2、系统窗
2.1、中空玻璃;
2.2、中空玻璃优缺点;
2.3、中空玻璃CCC认证;
2.5、系统窗安装;
2.6、系统窗细节;
3、地暖施工
3.1、地暖施工准备工作
3.2、地暖保暖板铺贴;
3.3、地暖分集水器安装;
3.4、地暖回填材料标准;
3.5、地暖伸缩缝布置标准;
3.6、压差旁通阀怎么安装;
3.7、欣赏地通铺贴及集水器安装;
4、地暖回填
4.1、地暖回填还是地暖找平(地砖+地板);
4.2、回填施工;
4.3、完美的回填保养;
4.4、卧室二次找平;
5、卫生间防水
5.1、防水材料
6、墙地界面剂
6.1、界面剂材料
7、瓷砖
7.1、密缝铺贴
7.2、瓷砖排版初稿
7.3、瓷砖及瓷砖胶
7.4、瓷砖胶及背胶的选择
7.5、铺贴工艺及用胶施工步骤
7.6、贴砖常见问题
7.7、瓷砖排版终极版
7.8、瓷砖实铺
7.9、下沉式淋浴区
7.10、餐厅厨房715竖铺
8.1、材料选择
8.2、底层处理(嵌缝膏)
8.3、挂网、挂角条粗找平
8.4、底漆完活
8.5、面漆传统施工操作
8.6、面漆艺术施工操作
9、木门安装
10、厨卫吊顶
11、前置过滤器安装
12、地板铺设
13、全屋美缝、美缝材料执行标准
14、干区艺术漆施工
15、淋浴隔断安装
16、卧室定制安装
17、客厅定制安装
17.1、定制柜灯带开槽
17.2、托底轨安装
17.3、浴室柜台盆尺寸最大化选购
17.3、台面安装
18、移门安装
19、智能无主灯调试
20、射灯安装
21、电动窗帘轨道安装
22、0嵌冰箱&马桶安装
23、智能锁安装
24、电视挂架安装
25、电热毛巾架安装
26、沙发餐桌入户
27、洗烘套装入户
28、全屋收边打胶
29、厨柜台面贴膜
30、机器人安装
三、初选材料
1、网络方案的选择
2、全屋智能方案的选择
3、伟星双色管、远东线缆、秋叶原超六类
4、瓷砖
5、油漆
6、木门
7、淋浴隔断
8、全屋定制——实木工厂
9、全屋定制——本地工厂
10、初选瓷砖胶
四、老房厨卫改造
DeepSeek版装修流程介绍
[ 本帖最后由 火云斜神 于 2025-4-8 23:50 编辑 ]
















,目的要与室内门同质感,互搭。目前看了材料,似乎是加银两了。
























比窗台略低些,还是很NICE的 















