
此帖已成功报名2016家装日记大赛。更多家装信息关注MY0511家装频道
【小区名称】:金泉花园三期
【建筑面积】:110
【装修风格】:新中式混搭
【包工方式】:半清包(自己找的人,但辅材由他们购买,我指定品牌)
【设 计 师】:本人
【开工日期】:2016.3.12
【装修预算】:10w以内
【户型图】:三室一厅一卫
年前老爸老妈的老房子由于危房改造,被伟大的人民政府产权置换了,从金山小区换到了金泉花园三期。路虽然远了,也没有原来方便了,但老房子换新房子,父母的心里还是挺开心的。居住了多年的老宅,由于地基下沉,整个楼都有点歪,而且外墙渗水,地下还有白蚁出没;虽然产权置换不如拆迁安置,老爸老妈还是爽快的签了字,搬了家。拿到了房,装修的重任就落到了做儿子的身上。回想八九年前,婚房装修,为了省钱,全部清包,也在0511写了一篇日记,自己累了个半死;前年为老丈人家装修,找了装潢公司半包,省心省力;今年,心血来潮,又准备自己来装,少花钱多办事,从量房、绘图到设计都自己来,只有施工找人。闲话少说,先上户型图,其余下回分解。
房子是金泉花园三期的高层,由于没什么好楼层挑,考虑到采光,选择了西边的17楼,透过窗户可以看见润扬大桥和长江。去的时候光注意怎么装修了,都忘记拍拍户外的景色,下次补上。
这是入户门,一点都不合理,靠墙弄个鞋柜都不行。
这是厨房的门,想换到侧面,把这里改成放冰箱的,可惜侧面是承重墙,我不敢动。

[ 本帖最后由 my0511菲雪 于 17-5-12 16:47 编辑 ]







这个是总体布置,中规中举,也没想搞出什么花来。
这个是地面布置,除了房间是实木地板(中意圆盘豆的颜色,老年人比较喜欢深色),其余都是瓷砖。
顶面的布置力求简单,不想太花哨。
开关布置,从使用角度出发,多放一点,花不了几个钱。
卫生间布局不是很理想,父母年岁已高,淋浴房显得有点局促,直接开放式淋浴,可以弄个凳子坐着,也可以买个桶泡泡。同时考虑开发式的防水,浴室柜准备瓦工砌,台面上大理石,弄个台上盆。




总体布局就差不多这样了 ,地方小,不能太复杂。
瓷砖大概就选这种风格的,地砖当墙砖用。
两边的装饰板,往这个颜色靠,和背景颜色形成对比,不知道效果如何。


阳台的洗衣槽预留冷水管及插座
厨房的水槽及前置的过滤器(jd买的德国霍尼韦尔)
顶部走的水管
穿线的师傅们
选的上面一款 金刚石的 80*80 牌子没听过 号称广东货 老爸看中的 老人家喜欢石材的花纹 他喜欢就买吧
这个是阳台的 造型有点特色 看上去还行
卫生间就按这个样板贴了 花砖没要
这个是厨房的 镜面的 感觉还行 好打理 (请忽略我儿子的背阴)


这个是餐厅那的储物柜
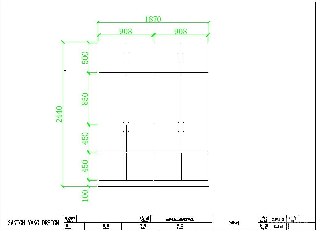
次卧的小衣柜,和储物柜背靠背
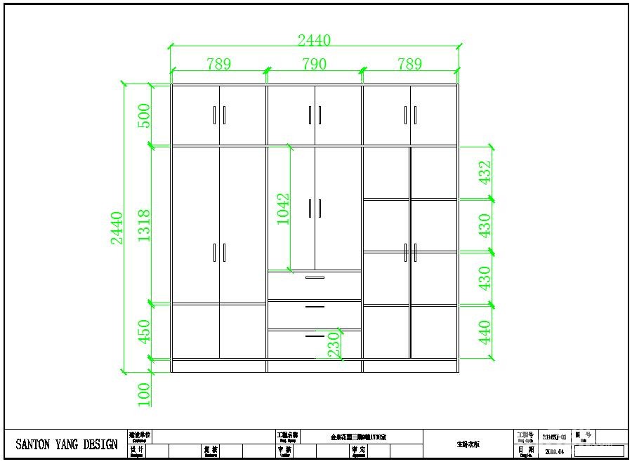
主卧的大衣柜
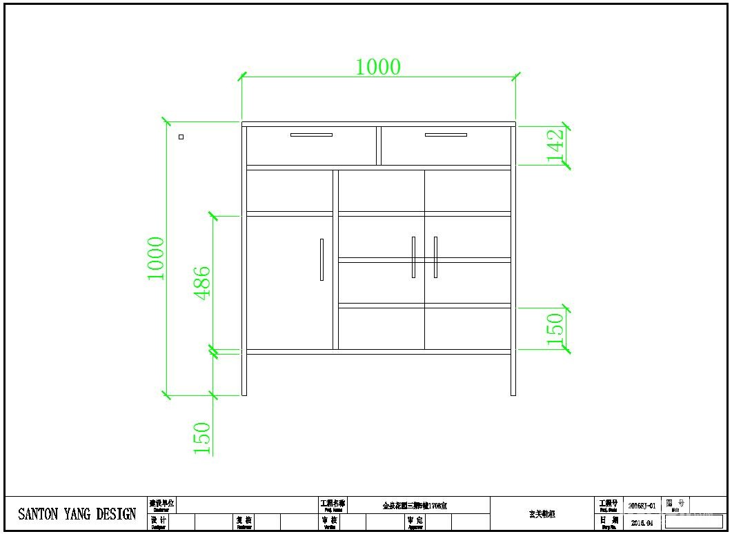
玄关的鞋柜

