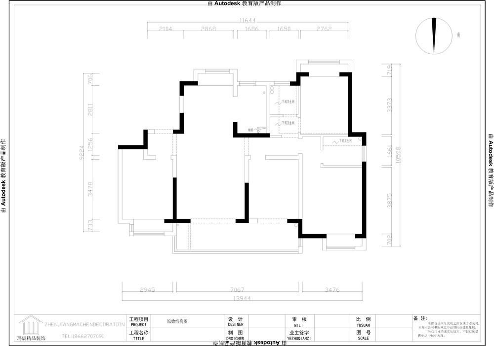
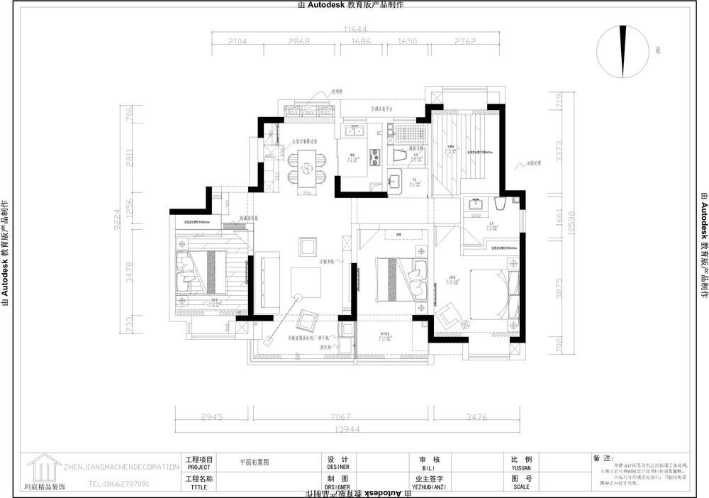
经过几番波折,几番期待,今年的11月终于拿房了。迫不及待与几番选择后的装修公司玛辰装修商定在11月6日开工
[ 本帖最后由 my0511唐老鸭 于 2021-11-17 10:05 编辑 ]
- 来自 江苏省
- 精华 0
- 注册 2008-1-20
- 行业 政府行政
- 来自 江苏省
- 精华 0
- 注册 2008-1-20
- 行业 政府行政
- 来自 江苏省
- 精华 0
- 注册 2008-1-20
- 行业 政府行政
- 来自 江苏省
- 精华 0
- 注册 2008-1-20
- 行业 政府行政
- 来自 江苏省
- 精华 0
- 注册 2008-1-20
- 行业 政府行政
- 来自 江苏省
- 精华 0
- 注册 2008-1-20
- 行业 政府行政
- 来自 江苏省
- 精华 0
- 注册 2008-1-20
- 行业 政府行政
 













































































































