项目地址 / 镇江北固湾
项目面积 / 280㎡
项目风格 / 美式
设计单位 / 佰壹营造
施工单位 / 佰壹施工
本案开始于2018年盛夏结束于2019年初秋,从设计到实景最后落地历时两年,其间自有各种辗转曲折。
所幸得到业主的充分信任与支持,一起努力坚持才有了作品的完美落地。
正式应了那句“春华而秋实”,勤劳的播种必定会收获硕果累累。
设计之初,当时美式风格正大行其道,同时业主自己也喜欢这个风格,所以我们也随了大流定位本案为简约美式。
但从一开始也没想做成当时正流行的那种标准美式,我们希望设计的每个家都有它自己的气质而不要落于俗套。
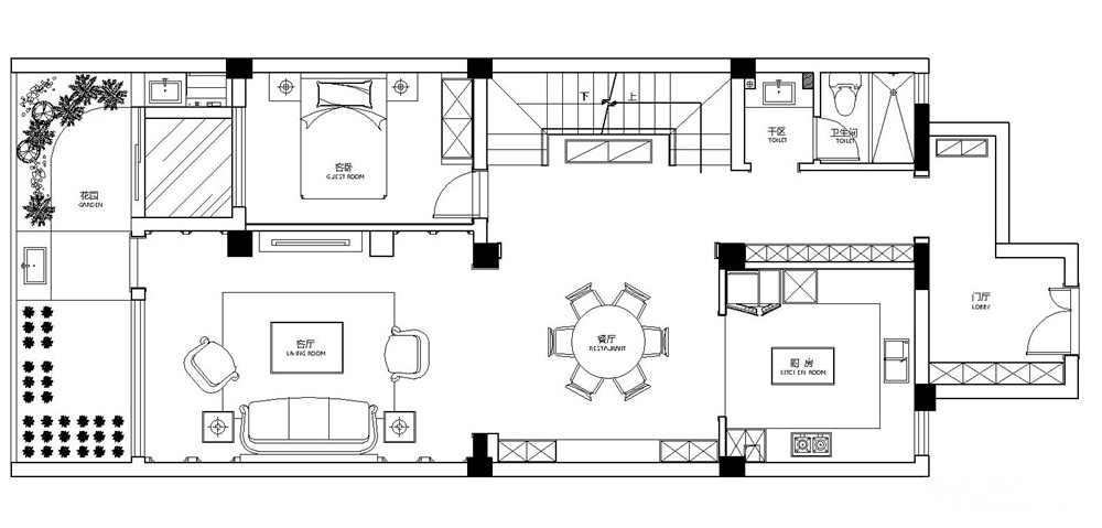
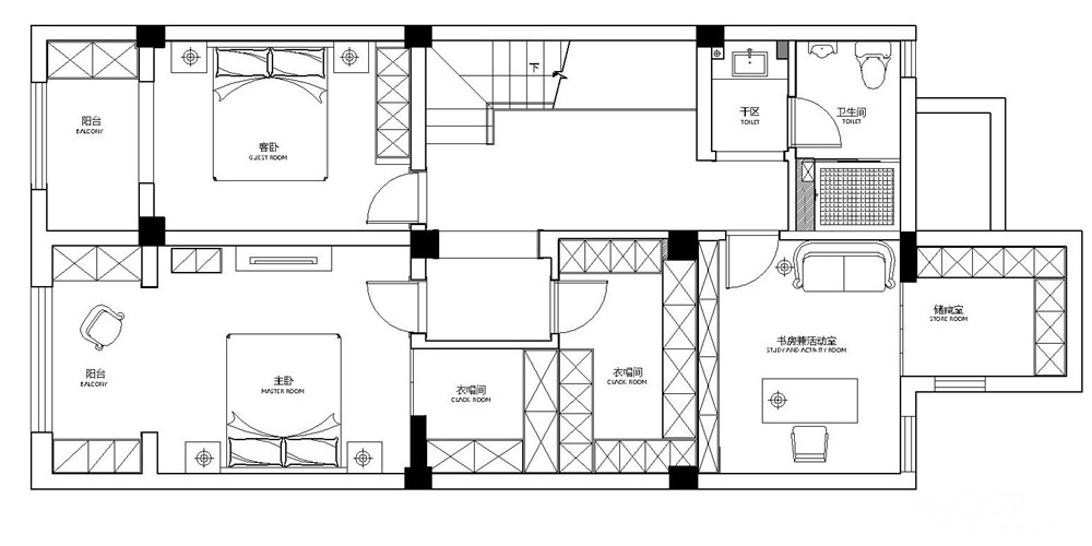
— 户型图 —



[ 本帖最后由 my0511唐老鸭 于 2020-1-19 13:40 编辑 ]


























